|
|
|
| Larry Stein Oklahoma County Assessor (405) 713-1200 - Public Access System |
|
|
|
|
|
|
| Real Property Display - Screen Produced 4/2/2026 8:30:56 PM | ||||
|---|---|---|---|---|
| Account: R148881160 | Type: Residential | Location: |
8109 NW 8TH ST |
|
| Building Name/Occupant: |
|
OKLAHOMA CITY |
||
| Owner Name 1: | TRAN SOI THI |
Parcel PIN#: |
2921-14-888-1160 |
|
| Owner Name 2: | 1/4 section #: |
2921 |
||
| Owner Name 3: | Parent Acct: |
|
||
| Billing Address: | 9117 SW 27TH ST | Tax District: |
|
|
| City, State, Zip | OKLAHOMA CITY, OK 73128-4940 | School System: |
Western Heights #41 |
|
|
Country: (If noted) |
Land Size: |
0.1033 Acres |
||
|
Land Value: 23,400 |
|
|||
|
Sect 31-T12N-R4W Qtr NE |
WESTWOOD VILLAGE ESTATES
Block
001
Lot
014
|
|||
| Full Legal Description: WESTWOOD VILLAGE ESTATES 001 014 |
| Photo & Sketch (if available) | Comp Sales (ordered by relevancy) |
|
||||||||||||||||||
|
||||||||||||||||||||
| Value History (*The County Treasurer 405-713-1300 posts & collects actual tax amounts. Contact information HERE) | |||||||||||||
|---|---|---|---|---|---|---|---|---|---|---|---|---|---|
| Year | Market Value | Taxable Mkt Value | Gross Assessed | Exemption | Net Assessed | Millage | Est. Tax | Tax Savings | |||||
|
2026 |
180,500 |
161,479 |
17,761 |
0 |
17,761 |
118.35 |
$2,102 |
$248 |
|||||
|
2025 |
180,500 |
153,790 |
16,916 |
0 |
16,916 |
118.35 |
$2,002 |
$348 |
|||||
|
2024 |
177,500 |
146,467 |
16,111 |
0 |
16,111 |
118.83 |
$1,915 |
$406 |
|||||
|
2023 |
167,500 |
139,493 |
15,343 |
0 |
15,343 |
116.69 |
$1,791 |
$359 |
|||||
|
2022 |
148,000 |
132,851 |
14,612 |
0 |
14,612 |
118.05 |
$1,725 |
$197 |
|||||
| Property Account Status/Adjustments/Exemptions | ||
|---|---|---|
| Account # | Exemption Description | Amount |
|
R148881160 |
5% Capped Account |
0 |
| Property Deed Transaction History (Recorded in the County Clerk's Office) | |||||||
|---|---|---|---|---|---|---|---|
| Date | Type | Book | Page | Price | Grantor | Grantee | |
|
4/7/2017 |
|
Deeds |
$107,000 |
SHEPPERD KRISTA N |
TRAN SOI THI |
||
|
6/15/2015 |
|
Hmstd Off & |
$0 |
SHEPPARD SHANE CAMERON |
SHEPPERD KRISTA N |
||
|
2/24/2011 |
|
Deeds |
$103,000 |
GOOD LYMAN M |
SHEPPERD KRISTA N |
||
|
7/7/1988 |
|
Historical |
$0 |
GOOD LYMAN M & JEANINE M |
GOOD LYMAN M |
||
|
1/1/1976 |
|
Historical |
$0 |
|
GOOD LYMAN M & JEANINE M |
||
| Last Mailed Notice of Value (N.O.V.) Information/History | ||||||||
|---|---|---|---|---|---|---|---|---|
| Year | Date | Market Value | Taxable Market Value | Gross Assessed | Exemption | Net Assessed | ||
|
2026 |
02/23/2026 |
180,500 |
161,479 |
17,761 |
0 |
17,761 |
||
|
2025 |
02/14/2025 |
180,500 |
153,790 |
16,916 |
0 |
16,916 |
||
|
2024 |
02/13/2024 |
177,500 |
146,467 |
16,111 |
0 |
16,111 |
||
|
2023 |
02/14/2023 |
167,500 |
139,493 |
15,343 |
0 |
15,343 |
||
|
2022 |
03/15/2022 |
148,000 |
132,851 |
14,612 |
0 |
14,612 |
||
| Property Building Permit History | |||||||||||
|---|---|---|---|---|---|---|---|---|---|---|---|
| Issued | Permit # | Provided by | Bldg # | Description | Est Construction Cost | Status | |||||
| No Building Permit records returned. | |||||||||||
| Click button on building number to access detailed information: | ||||||
|---|---|---|---|---|---|---|
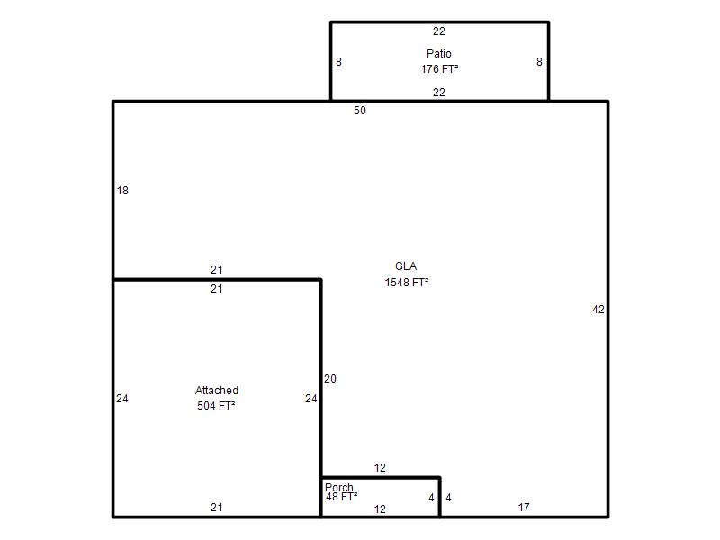
| Bldg # | Vacant/Improved Land | Bldg Description | Year Built | SqFt | # Stories | |
|
1 |
Improved |
Ranch 1 Story |
1974 |
1,548 |
1 Stories |
|