|
|
|
| Larry Stein Oklahoma County Assessor (405) 713-1200 - Public Access System |
|
|
|
|
|
|
| Real Property Display - Screen Produced 4/2/2026 4:10:21 PM | ||||
|---|---|---|---|---|
| Account: R148181330 | Type: Residential | Location: |
7428 NW 5TH TER |
|
| Building Name/Occupant: |
|
OKLAHOMA CITY |
||
| Owner Name 1: | VALENCIA ALEJANDRA |
Parcel PIN#: |
2925-14-818-1330 |
|
| Owner Name 2: | 1/4 section #: |
2925 |
||
| Owner Name 3: | Parent Acct: |
|
||
| Billing Address: | 4225 N BARR AVE | Tax District: |
|
|
| City, State, Zip | OKLAHOMA CITY, OK 73122 | School System: |
Western Heights #41 |
|
|
Country: (If noted) |
Land Size: |
0.1402 Acres |
||
|
Land Value: 17,094 |
|
|||
|
Sect 32-T12N-R4W Qtr NE |
WEST OAKS SEC 6
Block
012
Lot
023
|
|||
| Full Legal Description: WEST OAKS SEC 6 012 023 |
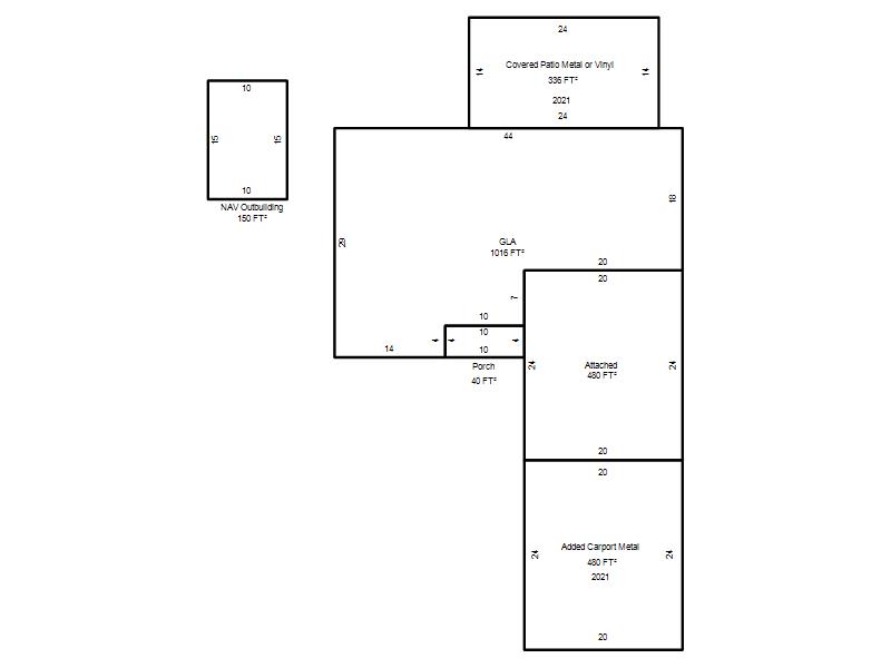
| Photo & Sketch (if available) | Comp Sales (ordered by relevancy) |
|
||||||||||||||||||
|
||||||||||||||||||||
| Value History (*The County Treasurer 405-713-1300 posts & collects actual tax amounts. Contact information HERE) | |||||||||||||
|---|---|---|---|---|---|---|---|---|---|---|---|---|---|
| Year | Market Value | Taxable Mkt Value | Gross Assessed | Exemption | Net Assessed | Millage | Est. Tax | Tax Savings | |||||
|
2026 |
143,000 |
115,477 |
12,701 |
0 |
12,701 |
118.35 |
$1,503 |
$358 |
|||||
|
2025 |
145,500 |
109,979 |
12,097 |
0 |
12,097 |
118.35 |
$1,432 |
$462 |
|||||
|
2024 |
135,500 |
104,742 |
11,521 |
0 |
11,521 |
118.83 |
$1,369 |
$402 |
|||||
|
2023 |
125,000 |
99,755 |
10,972 |
0 |
10,972 |
116.69 |
$1,280 |
$324 |
|||||
|
2022 |
110,500 |
95,005 |
10,449 |
0 |
10,449 |
118.05 |
$1,234 |
$201 |
|||||
| Property Account Status/Adjustments/Exemptions | ||
|---|---|---|
| Account # | Exemption Description | Amount |
|
R148181330 |
5% Capped Account |
0 |
| Property Deed Transaction History (Recorded in the County Clerk's Office) | |||||||
|---|---|---|---|---|---|---|---|
| Date | Type | Book | Page | Price | Grantor | Grantee | |
|
7/5/2012 |
|
Other |
$0 |
SECRETARY OF HOUSING & URBAN DEV |
VALENCIA ALEJANDRA |
||
|
1/31/2011 |
|
Hmstd Off & |
$0 |
GONKATE VINCENT J |
SECRETARY OF HOUSING & URBAN DEV |
||
|
10/26/2000 |
|
Deeds |
$53,499 |
SHADARAM HAMID |
GONKATE VINCENT J |
||
|
5/16/1996 |
|
Historical |
$0 |
SHADARAM HAMID & JANET L |
SHADARAM HAMID |
||
|
7/1/1978 |
|
Historical |
$0 |
|
SHADARAM HAMID & JANET |
||
| Last Mailed Notice of Value (N.O.V.) Information/History | ||||||||
|---|---|---|---|---|---|---|---|---|
| Year | Date | Market Value | Taxable Market Value | Gross Assessed | Exemption | Net Assessed | ||
|
2026 |
02/23/2026 |
143,000 |
115,477 |
12,701 |
0 |
12,701 |
||
|
2025 |
02/14/2025 |
145,500 |
109,979 |
12,097 |
0 |
12,097 |
||
|
2024 |
02/13/2024 |
135,500 |
104,742 |
11,521 |
0 |
11,521 |
||
|
2023 |
02/14/2023 |
125,000 |
99,755 |
10,972 |
0 |
10,972 |
||
|
2022 |
03/15/2022 |
110,500 |
95,005 |
10,449 |
0 |
10,449 |
||
| Property Building Permit History | |||||||||||
|---|---|---|---|---|---|---|---|---|---|---|---|
| Issued | Permit # | Provided by | Bldg # | Description | Est Construction Cost | Status | |||||
| No Building Permit records returned. | |||||||||||
| Click button on building number to access detailed information: | ||||||
|---|---|---|---|---|---|---|
| Bldg # | Vacant/Improved Land | Bldg Description | Year Built | SqFt | # Stories | |
|
1 |
Improved |
Ranch 1 Story |
1968 |
1,016 |
1 Stories |
|