|
|
|
| Larry Stein Oklahoma County Assessor (405) 713-1200 - Public Access System |
|
|
|
|
|
|
| Real Property Display - Screen Produced 3/14/2026 7:38:06 AM | ||||
|---|---|---|---|---|
| Account: R120781130 | Type: Residential | Location: |
21434 SE 15TH ST |
|
| Building Name/Occupant: |
|
UNINCORPORATED |
||
| Owner Name 1: | WILLIAMS SLAYDE HUNTER & CHELSEA |
Parcel PIN#: |
1048-12-078-1130 |
|
| Owner Name 2: | 1/4 section #: |
1048 |
||
| Owner Name 3: | Parent Acct: |
|
||
| Billing Address: | 21434 SE 15TH ST | Tax District: |
|
|
| City, State, Zip | HARRAH, OK 73045-6570 | School System: |
Harrah #7 |
|
|
Country: (If noted) |
Land Size: |
2.0900 Acres |
||
|
Land Value: 49,896 |
|
|||
|
Sect 12-T11N-R1E Qtr NW |
COPPER RIDGE NORTH
Block
001
Lot
015
|
|||
| Full Legal Description: COPPER RIDGE NORTH BLK 001 LOT 015 |
| Photo & Sketch (if available) | Comp Sales (ordered by relevancy) |
|
||||||||||||||||||
|
||||||||||||||||||||
| Value History (*The County Treasurer 405-713-1300 posts & collects actual tax amounts. Contact information HERE) | |||||||||||||
|---|---|---|---|---|---|---|---|---|---|---|---|---|---|
| Year | Market Value | Taxable Mkt Value | Gross Assessed | Exemption | Net Assessed | Millage | Est. Tax | Tax Savings | |||||
|
2025 |
329,000 |
265,486 |
29,202 |
0 |
29,202 |
107.54 |
$3,141 |
$751 |
|||||
|
2024 |
336,500 |
252,844 |
27,812 |
0 |
27,812 |
110.62 |
$3,077 |
$1,018 |
|||||
|
2023 |
308,000 |
240,804 |
26,488 |
0 |
26,488 |
97.88 |
$2,593 |
$723 |
|||||
|
2022 |
229,338 |
229,338 |
25,227 |
0 |
25,227 |
99.50 |
$2,510 |
$0 |
|||||
|
2021 |
198,530 |
198,530 |
21,838 |
0 |
21,838 |
99.52 |
$2,173 |
$0 |
|||||
| Property Account Status/Adjustments/Exemptions | ||||||
|---|---|---|---|---|---|---|
| Account # | Exemption Description | Amount | ||||
| No adjustment/exemption records returned. | ||||||
| Property Deed Transaction History (Recorded in the County Clerk's Office) | ||||||||||
|---|---|---|---|---|---|---|---|---|---|---|
| Date | Type | Book | Page | Price | Grantor | Grantee | ||||
|
3/26/2025 |
|
Deeds |
$300,000 |
HULL STEVEN JAY & SARAH NICHOLE |
WILLIAMS SLAYDE HUNTER & CHELSEA |
|||||
|
11/2/2021 |
|
Mult Parcel |
$260,000 |
PEYTON SARAH JANE & ERIC W |
HULL STEVEN JAY & SARAH NICHOLE |
|||||
|
9/29/2021 |
|
Hmstd Off & |
$ |
JOHNSON BILL TRS |
PEYTON SARAH JANE & ERIC W |
|||||
|
6/19/2020 |
|
Hmstd Off & |
$0 |
JOHNSON BRENDA JANE |
PEYTON SARAH JANE |
|||||
|
6/19/2020 |
|
Deeds |
$0 |
PEYTON SARAH JANE |
PEYTON SARAH JANE & ERIC W |
|||||
| Last Mailed Notice of Value (N.O.V.) Information/History | ||||||||
|---|---|---|---|---|---|---|---|---|
| Year | Date | Market Value | Taxable Market Value | Gross Assessed | Exemption | Net Assessed | ||
|
2025 |
01/31/2025 |
329,000 |
265,486 |
29,202 |
0 |
29,202 |
||
|
2024 |
01/22/2024 |
336,500 |
252,844 |
27,812 |
0 |
27,812 |
||
|
2023 |
01/23/2023 |
308,000 |
240,804 |
26,488 |
0 |
26,488 |
||
|
2022 |
02/22/2022 |
229,338 |
229,338 |
25,227 |
0 |
25,227 |
||
|
2021 |
02/24/2021 |
198,530 |
198,530 |
21,838 |
0 |
21,838 |
||
| Property Building Permit History | ||||||
|---|---|---|---|---|---|---|
| Issued | Permit # | Provided by | Bldg # | Description | Est Construction Cost | Status |
|
8/14/2024 |
BP-2024-248 |
|
1 |
Storage Buil |
10,000 |
Inactive |
|
1/1/2000 |
10206825 |
OKLAHOMA CITY |
|
Under Constr |
30,000 |
Inactive |
|
5/27/1999 |
10206828 |
HARRAH |
|
Main Dwellin |
49,000 |
Inactive |
| Click button on building number to access detailed information: | ||||||
|---|---|---|---|---|---|---|
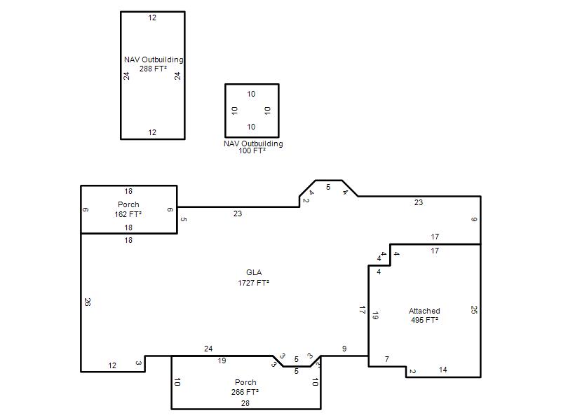
| Bldg # | Vacant/Improved Land | Bldg Description | Year Built | SqFt | # Stories | |
|
1 |
Improved |
Ranch 1 Story |
2001 |
1,727 |
1 Stories |
|