|
|
|
| Larry Stein Oklahoma County Assessor (405) 713-1200 - Public Access System |
|
|
|
|
|
|
| Real Property Display - Screen Produced 4/6/2026 8:24:57 AM | ||||
|---|---|---|---|---|
| Account: R145301760 | Type: Residential | Location: |
1029 N QUAPAH AVE |
|
| Building Name/Occupant: |
|
OKLAHOMA CITY |
||
| Owner Name 1: | SHOHEL MD |
Parcel PIN#: |
2937-14-530-1760 |
|
| Owner Name 2: | RAHMAN NARMEEN AFROZ | 1/4 section #: |
2937 |
|
| Owner Name 3: | Parent Acct: |
|
||
| Billing Address: | 12824 SUTTON HILL RD | Tax District: |
|
|
| City, State, Zip | OKLAHOMA CITY, OK 73142-6063 | School System: |
Putnam City #1 |
|
|
Country: (If noted) |
Land Size: |
0.1607 Acres |
||
|
Land Value: 9,520 |
|
|||
|
Sect 35-T12N-R4W Qtr NE |
TABORS SUB ADDITION
Block
002
Lot
004
|
|||
| Full Legal Description: TABORS SUB ADDITION 002 004 |
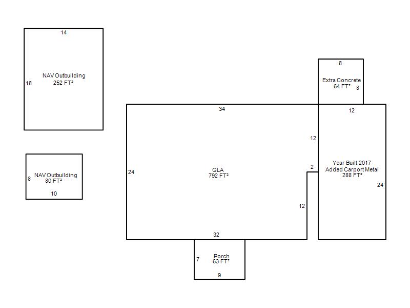
| Photo & Sketch (if available) | Comp Sales (ordered by relevancy) |
|
||||||||||||||||||
|
||||||||||||||||||||
| Value History (*The County Treasurer 405-713-1300 posts & collects actual tax amounts. Contact information HERE) | |||||||||||||
|---|---|---|---|---|---|---|---|---|---|---|---|---|---|
| Year | Market Value | Taxable Mkt Value | Gross Assessed | Exemption | Net Assessed | Millage | Est. Tax | Tax Savings | |||||
|
2026 |
118,500 |
117,075 |
12,878 |
0 |
12,878 |
123.17 |
$1,586 |
$19 |
|||||
|
2025 |
111,500 |
111,500 |
12,265 |
0 |
12,265 |
123.17 |
$1,511 |
$0 |
|||||
|
2024 |
109,000 |
109,000 |
11,990 |
0 |
11,990 |
122.30 |
$1,466 |
$0 |
|||||
|
2023 |
60,742 |
29,365 |
3,229 |
0 |
3,229 |
121.91 |
$394 |
$421 |
|||||
|
2022 |
59,004 |
27,967 |
3,075 |
0 |
3,075 |
123.41 |
$380 |
$421 |
|||||
| Property Account Status/Adjustments/Exemptions | ||
|---|---|---|
| Account # | Exemption Description | Amount |
|
R145301760 |
5% Capped Account |
0 |
| Property Deed Transaction History (Recorded in the County Clerk's Office) | ||||||||||
|---|---|---|---|---|---|---|---|---|---|---|
| Date | Type | Book | Page | Price | Grantor | Grantee | ||||
|
12/22/2023 |
|
Deeds |
$107,500 |
MIGUEL JUAN |
SHOHEL MD |
|||||
|
12/18/2023 |
|
Hmstd Off & |
$0 |
M & S OHANA PROPERTIES LLC |
MIGUEL JUAN |
|||||
|
8/6/2003 |
|
Other |
$0 |
METTENBRINK TODD M & CATHERINE S |
M & S OHANA PROPERTIES LLC |
|||||
|
9/7/2001 |
|
Deeds |
$12,000 |
FLESHMAN FAMILY INVESTMENTS INC |
METTENBRINK TODD M & CATHERINE S |
|||||
|
12/27/1988 |
|
Historical |
$0 |
FLESHMAN DEAN A TRS |
FLESHMAN FAMILY |
|||||
| Last Mailed Notice of Value (N.O.V.) Information/History | ||||||||
|---|---|---|---|---|---|---|---|---|
| Year | Date | Market Value | Taxable Market Value | Gross Assessed | Exemption | Net Assessed | ||
|
2026 |
02/23/2026 |
118,500 |
117,075 |
12,878 |
0 |
12,878 |
||
|
2025 |
02/14/2025 |
111,500 |
111,500 |
12,265 |
0 |
12,265 |
||
|
2024 |
02/13/2024 |
60,726 |
30,833 |
3,391 |
0 |
3,391 |
||
|
2024 |
03/01/2024 |
109,000 |
109,000 |
11,990 |
0 |
11,990 |
||
|
2023 |
02/14/2023 |
60,742 |
29,365 |
3,229 |
0 |
3,229 |
||
| Property Building Permit History | ||||||
|---|---|---|---|---|---|---|
| Issued | Permit # | Provided by | Bldg # | Description | Est Construction Cost | Status |
|
12/16/2004 |
10298288 |
OKLAHOMA CITY |
1 |
Fire Remodel |
2,005 |
Inactive |
|
7/14/2004 |
10294481 |
OKLAHOMA CITY |
1 |
Burn - Trip |
20,000 |
Inactive |
| Click button on building number to access detailed information: | ||||||
|---|---|---|---|---|---|---|
| Bldg # | Vacant/Improved Land | Bldg Description | Year Built | SqFt | # Stories | |
|
1 |
Improved |
Ranch 1 Story |
1944 |
792 |
1 Stories |
|