|
|
|
| Larry Stein Oklahoma County Assessor (405) 713-1200 - Public Access System |
|
|
|
|
|
|
| Real Property Display - Screen Produced 4/4/2026 5:36:01 AM | ||||
|---|---|---|---|---|
| Account: R145302450 | Type: Residential | Location: |
1021 N QUAPAH AVE |
|
| Building Name/Occupant: |
|
OKLAHOMA CITY |
||
| Owner Name 1: | CARRILLO BARRIOS ANGEL ALFONSO |
Parcel PIN#: |
2937-14-530-2450 |
|
| Owner Name 2: | RODAS SANTIZO CONSUELO ELISBETT | 1/4 section #: |
2937 |
|
| Owner Name 3: | Parent Acct: |
|
||
| Billing Address: | 1905 N COUNCIL RD | Tax District: |
|
|
| City, State, Zip | OKLAHOMA CITY , OK 73127 | School System: |
Putnam City #1 |
|
|
Country: (If noted) |
Land Size: |
0.1607 Acres |
||
|
Land Value: 9,520 |
|
|||
|
Sect 35-T12N-R4W Qtr NE |
TABORS SUB ADDITION
Block
002
Lot
006
|
|||
| Full Legal Description: TABORS SUB ADDITION 002 006 |
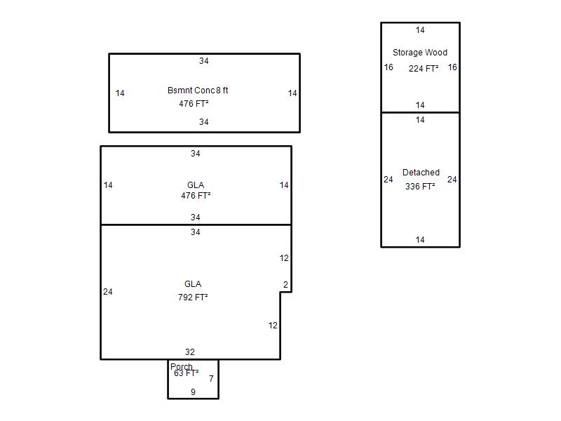
| Photo & Sketch (if available) | Comp Sales (ordered by relevancy) |
|
||||||||||||||||||
|
||||||||||||||||||||
| Value History (*The County Treasurer 405-713-1300 posts & collects actual tax amounts. Contact information HERE) | |||||||||||||
|---|---|---|---|---|---|---|---|---|---|---|---|---|---|
| Year | Market Value | Taxable Mkt Value | Gross Assessed | Exemption | Net Assessed | Millage | Est. Tax | Tax Savings | |||||
|
2026 |
120,000 |
87,104 |
9,581 |
0 |
9,581 |
123.17 |
$1,180 |
$446 |
|||||
|
2025 |
111,500 |
82,957 |
9,124 |
0 |
9,124 |
123.17 |
$1,124 |
$387 |
|||||
|
2024 |
108,500 |
79,007 |
8,689 |
0 |
8,689 |
122.30 |
$1,063 |
$397 |
|||||
|
2023 |
103,500 |
75,245 |
8,276 |
0 |
8,276 |
121.91 |
$1,009 |
$379 |
|||||
|
2022 |
89,000 |
71,662 |
7,882 |
0 |
7,882 |
123.41 |
$973 |
$235 |
|||||
| Property Account Status/Adjustments/Exemptions | ||
|---|---|---|
| Account # | Exemption Description | Amount |
|
R145302450 |
5% Capped Account |
0 |
| Property Deed Transaction History (Recorded in the County Clerk's Office) | |||||||
|---|---|---|---|---|---|---|---|
| Date | Type | Book | Page | Price | Grantor | Grantee | |
|
8/24/2018 |
|
Hmstd Off & |
$0 |
CARILLO VERONICA |
CARRILLO BARRIOS ANGEL ALFONSO |
||
|
12/17/2008 |
|
Hmstd Off & |
$0 |
CAMPBELL ROY H |
MEADOR JANICE PER REP EST OF ROY H CAMPBELL |
||
|
12/17/2008 |
|
Deeds |
$50,000 |
MEADOR JANICE PER REP EST OF ROY H CAMPBELL |
CARILLO VERONICA |
||
|
11/11/1911 |
|
Historical |
$0 |
|
CAMPBELL ROY H |
||
| Last Mailed Notice of Value (N.O.V.) Information/History | ||||||||
|---|---|---|---|---|---|---|---|---|
| Year | Date | Market Value | Taxable Market Value | Gross Assessed | Exemption | Net Assessed | ||
|
2026 |
02/23/2026 |
120,000 |
87,104 |
9,581 |
0 |
9,581 |
||
|
2025 |
02/14/2025 |
111,500 |
82,957 |
9,124 |
0 |
9,124 |
||
|
2024 |
02/13/2024 |
108,500 |
79,007 |
8,689 |
0 |
8,689 |
||
|
2023 |
02/14/2023 |
103,500 |
75,245 |
8,276 |
0 |
8,276 |
||
|
2022 |
03/15/2022 |
89,000 |
71,662 |
7,882 |
0 |
7,882 |
||
| Property Building Permit History | |||||||||||
|---|---|---|---|---|---|---|---|---|---|---|---|
| Issued | Permit # | Provided by | Bldg # | Description | Est Construction Cost | Status | |||||
| No Building Permit records returned. | |||||||||||
| Click button on building number to access detailed information: | ||||||
|---|---|---|---|---|---|---|
| Bldg # | Vacant/Improved Land | Bldg Description | Year Built | SqFt | # Stories | |
|
1 |
Improved |
Ranch 1 Story |
1944 |
1,268 |
1 Stories |
|