|
|
|
| Larry Stein Oklahoma County Assessor (405) 713-1200 - Public Access System |
|
|
|
|
|
|
| Real Property Display - Screen Produced 4/1/2026 10:32:24 AM | ||||
|---|---|---|---|---|
| Account: R258362050 | Type: Residential | Location: |
8784 N HARRAH RD |
|
| Building Name/Occupant: |
|
UNINCORPORATED |
||
| Owner Name 1: | PAYNE ERIN |
Parcel PIN#: |
3144-25-836-2050 |
|
| Owner Name 2: | MARTINEZ DREILING MICHAEL | 1/4 section #: |
3144 |
|
| Owner Name 3: | Parent Acct: |
|
||
| Billing Address: | 8784 N HARRAH RD | Tax District: |
|
|
| City, State, Zip | HARRAH, OK 73045-8820 | School System: |
Harrah #7 |
|
|
Country: (If noted) |
Land Size: |
10.0000 Acres |
||
|
Land Value: 53,678 |
|
|||
|
Sect 36-T13N-R1E Qtr NW |
DEWEY TOWNSHIP
Block
000
Lot
000
|
|||
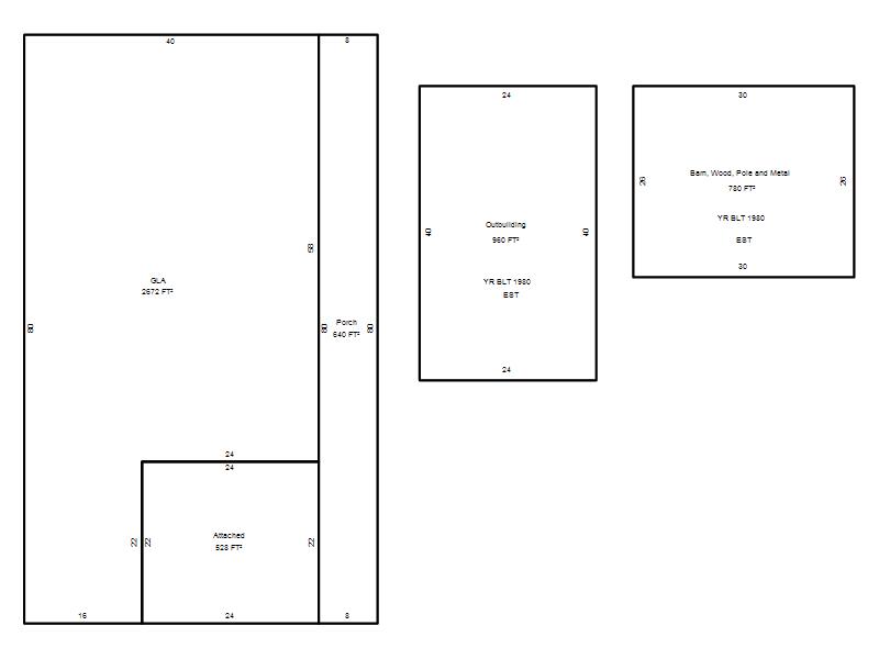
| Full Legal Description: DEWEY TOWNSHIP 000 000 PT NW4 SEC 36 13N 1E S 1/2 OF N 1/2 OF SW4 OF NW4 CONT 10ACRS |
| Photo & Sketch (if available) | Comp Sales (ordered by relevancy) |
|
||||||||||||||||||
|
||||||||||||||||||||
| Value History (*The County Treasurer 405-713-1300 posts & collects actual tax amounts. Contact information HERE) | |||||||||||||
|---|---|---|---|---|---|---|---|---|---|---|---|---|---|
| Year | Market Value | Taxable Mkt Value | Gross Assessed | Exemption | Net Assessed | Millage | Est. Tax | Tax Savings | |||||
|
2026 |
520,983 |
520,983 |
57,308 |
0 |
57,308 |
107.54 |
$6,163 |
$0 |
|||||
|
2025 |
432,747 |
432,747 |
47,602 |
0 |
47,602 |
107.54 |
$5,119 |
$0 |
|||||
|
2024 |
436,549 |
436,549 |
48,020 |
0 |
48,020 |
110.62 |
$5,312 |
$0 |
|||||
|
2023 |
436,600 |
428,827 |
47,170 |
0 |
47,170 |
97.88 |
$4,617 |
$84 |
|||||
|
2022 |
78,000 |
78,000 |
8,580 |
0 |
8,580 |
99.50 |
$854 |
$0 |
|||||
| Property Account Status/Adjustments/Exemptions | ||||||
|---|---|---|---|---|---|---|
| Account # | Exemption Description | Amount | ||||
| No adjustment/exemption records returned. | ||||||
| Property Deed Transaction History (Recorded in the County Clerk's Office) | ||||||||||
|---|---|---|---|---|---|---|---|---|---|---|
| Date | Type | Book | Page | Price | Grantor | Grantee | ||||
|
12/9/2025 |
|
Deeds |
$520,000 |
MORSE TIMOTHY R & KIMBERLY |
PAYNE ERIN |
|||||
|
6/25/2020 |
|
Deeds |
$78,000 |
PORTER KRISTA A & WILLIAM L |
MORSE TIMOTHY R & KIMBERLY |
|||||
|
11/22/2007 |
|
Deeds |
$89,000 |
EMC MORTGAGE CORPORATION |
PORTER KRISTA A & WILLIAM L |
|||||
|
2/20/2007 |
|
Other |
$0 |
SHERIFFS DEED |
EMC MORTGAGE CORPORATION |
|||||
|
7/15/2005 |
|
Deeds |
$210,000 |
MCREYNOLDS CECIL T |
FOSTER LANCE E |
|||||
| Last Mailed Notice of Value (N.O.V.) Information/History | ||||||||
|---|---|---|---|---|---|---|---|---|
| Year | Date | Market Value | Taxable Market Value | Gross Assessed | Exemption | Net Assessed | ||
|
2026 |
02/06/2026 |
520,983 |
520,983 |
57,308 |
0 |
57,308 |
||
|
2024 |
01/22/2024 |
436,549 |
436,549 |
48,020 |
0 |
48,020 |
||
|
2023 |
03/02/2023 |
436,600 |
428,827 |
47,170 |
0 |
47,170 |
||
|
2021 |
02/24/2021 |
78,000 |
78,000 |
8,580 |
0 |
8,580 |
||
|
2020 |
02/21/2020 |
43,652 |
35,126 |
3,863 |
0 |
3,863 |
||
| Property Building Permit History | ||||||
|---|---|---|---|---|---|---|
| Issued | Permit # | Provided by | Bldg # | Description | Est Construction Cost | Status |
|
4/13/2021 |
BP-2021-82 |
|
|
Main Dwellin |
180,000 |
Inactive |
|
5/13/2009 |
10378850 |
HARRAH |
|
Remodeled |
0 |
Inactive |
| Click button on building number to access detailed information: | ||||||
|---|---|---|---|---|---|---|
| Bldg # | Vacant/Improved Land | Bldg Description | Year Built | SqFt | # Stories | |
|
1 |
Improved |
Ranch 1 Story |
2021 |
2,672 |
1 Stories |
|