|
|
|
| Larry Stein Oklahoma County Assessor (405) 713-1200 - Public Access System |
|
|
|
|
|
|
| Real Property Display - Screen Produced 4/8/2026 6:18:47 AM | ||||
|---|---|---|---|---|
| Account: R190029070 | Type: Residential | Location: |
16001 ROLAND DR |
|
| Building Name/Occupant: |
|
OKLAHOMA CITY |
||
| Owner Name 1: | ROJAS JOSE |
Parcel PIN#: |
3208-19-002-9070 |
|
| Owner Name 2: | 1/4 section #: |
3208 |
||
| Owner Name 3: | Parent Acct: |
3208-16-869-0021 |
||
| Billing Address: | 16001 ROLAND DR | Tax District: |
|
|
| City, State, Zip | JONES, OK 73049-8903 | School System: |
Luther #3 |
|
|
Country: (If noted) |
Land Size: |
7.7300 Acres |
||
|
Land Value: 50,297 |
|
|||
|
Sect 2-T13N-R1W Qtr NW |
UNPLTD PT SEC 2 13N 1W
Block
000
Lot
000
|
|||
| Full Legal Description: UNPLTD PT SEC 2 13N 1W 000 000 PT OF NW4 SEC 2 13N 1W BEG 1338.34FT W & 2182FT S OF NE/C NW4 TH NE1365.69FT RIGHT ON CURVE SE104.89FT SW76.06FT SW1426.73FT N334.83FT TO BEG CONT 7.73ACRS MORE OR LESS AKA TR 9 FOXS OAKRIDGE STATES UNREC PLAT |
| No comparable sales report available. | ||||||||||||||||||||||
|
||||||||||||||||||||||
| Value History (*The County Treasurer 405-713-1300 posts & collects actual tax amounts. Contact information HERE) | |||||||||||||
|---|---|---|---|---|---|---|---|---|---|---|---|---|---|
| Year | Market Value | Taxable Mkt Value | Gross Assessed | Exemption | Net Assessed | Millage | Est. Tax | Tax Savings | |||||
|
2026 |
70,650 |
66,099 |
7,270 |
0 |
7,270 |
109.96 |
$800 |
$55 |
|||||
|
2025 |
65,455 |
60,775 |
6,684 |
0 |
6,684 |
109.96 |
$735 |
$57 |
|||||
|
2024 |
65,455 |
57,881 |
6,366 |
0 |
6,366 |
109.95 |
$700 |
$92 |
|||||
|
2023 |
65,960 |
55,125 |
6,063 |
0 |
6,063 |
105.74 |
$641 |
$126 |
|||||
|
2022 |
66,796 |
52,500 |
5,775 |
0 |
5,775 |
106.53 |
$615 |
$168 |
|||||
| Property Account Status/Adjustments/Exemptions | ||
|---|---|---|
| Account # | Exemption Description | Amount |
|
R190029070 |
5% Capped Account |
0 |
| Property Deed Transaction History (Recorded in the County Clerk's Office) | |||||||
|---|---|---|---|---|---|---|---|
| Date | Type | Book | Page | Price | Grantor | Grantee | |
|
10/9/2020 |
|
Deeds |
$50,000 |
WRIGHT KERRI & TOM L |
ROJAS JOSE |
||
|
5/9/2008 |
|
Deeds |
$23,500 |
FOX KAY L |
WRIGHT KERRI & TOM L |
||
|
4/13/2006 |
|
Other |
$0 |
FOXS OAKRIDGE ESTATES LLC |
FOX KAY L |
||
| Last Mailed Notice of Value (N.O.V.) Information/History | ||||||||
|---|---|---|---|---|---|---|---|---|
| Year | Date | Market Value | Taxable Market Value | Gross Assessed | Exemption | Net Assessed | ||
|
2026 |
03/30/2026 |
70,650 |
66,099 |
7,270 |
0 |
7,270 |
||
|
2025 |
01/31/2025 |
65,455 |
60,775 |
6,684 |
0 |
6,684 |
||
|
2024 |
01/22/2024 |
65,455 |
57,881 |
6,366 |
0 |
6,366 |
||
|
2023 |
01/23/2023 |
65,960 |
55,125 |
6,063 |
0 |
6,063 |
||
|
2022 |
02/22/2022 |
66,796 |
52,500 |
5,775 |
0 |
5,775 |
||
| Property Building Permit History | |||||||||||
|---|---|---|---|---|---|---|---|---|---|---|---|
| Issued | Permit # | Provided by | Bldg # | Description | Est Construction Cost | Status | |||||
| No Building Permit records returned. | |||||||||||
| Click button on building number to access detailed information: | ||||||
|---|---|---|---|---|---|---|
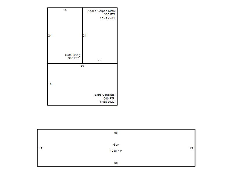
| Bldg # | Vacant/Improved Land | Bldg Description | Year Built | SqFt | # Stories | |
|
1 |
Improved |
Single Wide |
2000 |
1,088 |
1 Stories |
|