|
|
|
| Larry Stein Oklahoma County Assessor (405) 713-1200 - Public Access System |
|
|
|
|
|
|
| Real Property Display - Screen Produced 4/9/2026 10:14:37 AM | ||||
|---|---|---|---|---|
| Account: R143485350 | Type: Residential | Location: |
11601 NE 141ST ST |
|
| Building Name/Occupant: |
|
OKLAHOMA CITY |
||
| Owner Name 1: | EDDINGS CATHARINE L |
Parcel PIN#: |
3230-14-348-5350 |
|
| Owner Name 2: | 1/4 section #: |
3230 |
||
| Owner Name 3: | Parent Acct: |
|
||
| Billing Address: | 11601 NE 141ST ST | Tax District: |
|
|
| City, State, Zip | JONES, OK 73049-8736 | School System: |
Jones #9 |
|
|
Country: (If noted) |
Land Size: |
5.0200 Acres |
||
|
Land Value: 32,961 |
|
|||
|
Sect 8-T13N-R1W Qtr SE |
UNPLTD PT SEC 08 13N 1W
Block
000
Lot
000
|
|||
| Full Legal Description: UNPLTD PT SEC 08 13N 1W 000 000 PT N 1/2 SE4 SEC 8 13N 1W BEG 658.30FT S & 663.50FT W & 218.50FT S & 999.94FT W NE/C SD N 1/2 SE4 TH W499.97FT N437.36FT E499.94FT S437.71FT TO BEG CONT 5.02ACRS MORE OR LESS |
| No comparable sales report available. | ||||||||||||||||||||||
|
||||||||||||||||||||||
| Value History (*The County Treasurer 405-713-1300 posts & collects actual tax amounts. Contact information HERE) | |||||||||||||
|---|---|---|---|---|---|---|---|---|---|---|---|---|---|
| Year | Market Value | Taxable Mkt Value | Gross Assessed | Exemption | Net Assessed | Millage | Est. Tax | Tax Savings | |||||
|
2026 |
52,199 |
18,497 |
2,034 |
2,000 |
34 |
130.05 |
$5 |
$742 |
|||||
|
2025 |
51,389 |
18,497 |
2,034 |
2,000 |
34 |
130.05 |
$5 |
$731 |
|||||
|
2024 |
51,389 |
18,497 |
2,034 |
1,000 |
1,034 |
130.24 |
$135 |
$601 |
|||||
|
2023 |
51,389 |
18,497 |
2,034 |
1,000 |
1,034 |
127.43 |
$132 |
$588 |
|||||
|
2022 |
51,389 |
18,497 |
2,034 |
1,000 |
1,034 |
124.39 |
$129 |
$574 |
|||||
| Property Account Status/Adjustments/Exemptions | ||
|---|---|---|
| Account # | Exemption Description | Amount |
|
R143485350 |
Senior Additional Homestead |
1,000 |
|
R143485350 |
Freeze Senior Valuation |
0 |
|
R143485350 |
3% Cap Homestead |
0 |
|
R143485350 |
Homestead |
1,000 |
| Property Deed Transaction History (Recorded in the County Clerk's Office) | ||||||||||
|---|---|---|---|---|---|---|---|---|---|---|
| Date | Type | Book | Page | Price | Grantor | Grantee | ||||
|
4/2/2001 |
|
Deeds |
$23,500 |
HOWARD PAUL & ALMA |
EDDINGS CATHARINE L |
|||||
|
9/1/1998 |
|
Deeds |
$4,000 |
RAINS JANA K |
HOWARD PAUL & ALMA |
|||||
|
9/1/1998 |
|
Deeds |
$4,000 |
RAINS NOLAN M JR |
HOWARD PAUL & ALMA |
|||||
|
8/16/1988 |
|
Historical |
$0 |
HOWARD PAUL & ALMA |
RAINS NOLAN H JR & JANA K |
|||||
|
2/1/1988 |
|
Historical |
$0 |
MARTIN WESLEY GENE & RACHEL E |
HOWARD PAUL & ALMA |
|||||
| Last Mailed Notice of Value (N.O.V.) Information/History | ||||||||
|---|---|---|---|---|---|---|---|---|
| Year | Date | Market Value | Taxable Market Value | Gross Assessed | Exemption | Net Assessed | ||
|
2026 |
02/06/2026 |
52,199 |
18,497 |
2,034 |
2,000 |
34 |
||
|
2021 |
02/24/2021 |
51,389 |
18,497 |
2,034 |
1,000 |
1,034 |
||
|
2020 |
02/21/2020 |
51,389 |
17,959 |
1,975 |
1,000 |
975 |
||
|
2019 |
02/26/2019 |
51,389 |
17,437 |
1,918 |
1,000 |
918 |
||
|
2018 |
04/09/2018 |
51,389 |
16,929 |
1,862 |
1,000 |
862 |
||
| Property Building Permit History | |||||||||||
|---|---|---|---|---|---|---|---|---|---|---|---|
| Issued | Permit # | Provided by | Bldg # | Description | Est Construction Cost | Status | |||||
| No Building Permit records returned. | |||||||||||
| Click button on building number to access detailed information: | ||||||
|---|---|---|---|---|---|---|
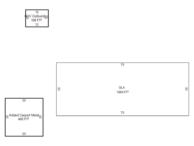
| Bldg # | Vacant/Improved Land | Bldg Description | Year Built | SqFt | # Stories | |
|
1 |
Improved |
Double Wide |
1997 |
1,960 |
1 Stories |
|