|
|
|
| Larry Stein Oklahoma County Assessor (405) 713-1200 - Public Access System |
|
|
|
|
|
|
| Real Property Display - Screen Produced 4/2/2026 3:13:04 PM | ||||
|---|---|---|---|---|
| Account: R143994085 | Type: Residential | Location: |
14501 ROUNDUP T RD |
|
| Building Name/Occupant: |
|
OKLAHOMA CITY |
||
| Owner Name 1: | SMITH CARL W |
Parcel PIN#: |
3233-14-399-4085 |
|
| Owner Name 2: | 1/4 section #: |
3233 |
||
| Owner Name 3: | Parent Acct: |
|
||
| Billing Address: | 14501 ROUNDUP T RD | Tax District: |
|
|
| City, State, Zip | JONES, OK 73049 | School System: |
Jones #9 |
|
|
Country: (If noted) |
UNITED STATES |
Land Size: |
5.0900 Acres |
|
|
Land Value: 110,500 |
|
|||
|
Sect 9-T13N-R1W Qtr NE |
UNPLTD PT SEC 09 13N 1W
Block
000
Lot
000
|
|||
| Full Legal Description: UNPLTD PT N 1/2 SEC 9 13N 1W BEG 1650FT N & 795FT W & 65FT S SE/C N 1/2 SD SEC TH W875.61FT NELY 308.64FT E735.92FT S275FT TO BEG CONT 5.09ACRS MORE OR LESS AKA TR 68 EDMOND RANCH UNREC |
| No comparable sales report available. | ||||||||||||||||||||||
|
||||||||||||||||||||||
| Value History (*The County Treasurer 405-713-1300 posts & collects actual tax amounts. Contact information HERE) | |||||||||||||
|---|---|---|---|---|---|---|---|---|---|---|---|---|---|
| Year | Market Value | Taxable Mkt Value | Gross Assessed | Exemption | Net Assessed | Millage | Est. Tax | Tax Savings | |||||
|
2026 |
130,948 |
130,948 |
14,404 |
2,000 |
12,404 |
130.05 |
$1,613 |
$260 |
|||||
|
2025 |
130,948 |
130,948 |
14,404 |
1,000 |
13,404 |
130.05 |
$1,743 |
$130 |
|||||
|
2024 |
131,154 |
131,154 |
14,426 |
0 |
14,426 |
130.24 |
$1,879 |
$0 |
|||||
|
2023 |
110,500 |
110,500 |
12,155 |
0 |
12,155 |
127.43 |
$1,549 |
$0 |
|||||
|
2022 |
37,870 |
26,994 |
2,968 |
0 |
2,968 |
124.39 |
$369 |
$149 |
|||||
| Property Account Status/Adjustments/Exemptions | ||
|---|---|---|
| Account # | Exemption Description | Amount |
|
R143994085 |
Additional Homestead |
1,000 |
|
R143994085 |
Homestead |
1,000 |
|
R143994085 |
3% Cap Homestead |
0 |
| Property Deed Transaction History (Recorded in the County Clerk's Office) | ||||||||||
|---|---|---|---|---|---|---|---|---|---|---|
| Date | Type | Book | Page | Price | Grantor | Grantee | ||||
|
5/23/2022 |
|
Deeds |
$110,500 |
GRIFFY JAMES C |
SMITH CARL W |
|||||
|
4/1/2022 |
|
Deeds |
$50,000 |
MCMAHAN JOHN |
GRIFFY JAMES C |
|||||
|
4/1/2022 |
|
Deeds |
$0 |
MCMAHAN JOHN C |
GRIFFY JAMES C |
|||||
|
7/17/2005 |
|
Deeds |
$24,000 |
CDR LAND AN OKLAHOMA GENERAL PARTNERSHIP |
MCMAHAN JOHN |
|||||
|
9/30/2003 |
|
Mult Parcel |
$84,000 |
LEOMA INVESTMENTS INC |
CDR LAND AN OKLAHOMA GENERAL PARTNERSHIP |
|||||
| Last Mailed Notice of Value (N.O.V.) Information/History | ||||||||
|---|---|---|---|---|---|---|---|---|
| Year | Date | Market Value | Taxable Market Value | Gross Assessed | Exemption | Net Assessed | ||
|
2024 |
03/01/2024 |
131,154 |
131,154 |
14,426 |
0 |
14,426 |
||
|
2023 |
01/23/2023 |
110,500 |
110,500 |
12,155 |
0 |
12,155 |
||
|
2022 |
02/22/2022 |
37,870 |
26,994 |
2,968 |
0 |
2,968 |
||
|
2015 |
03/09/2015 |
26,353 |
26,353 |
2,898 |
0 |
2,898 |
||
|
2013 |
03/27/2013 |
26,298 |
26,298 |
2,892 |
0 |
2,892 |
||
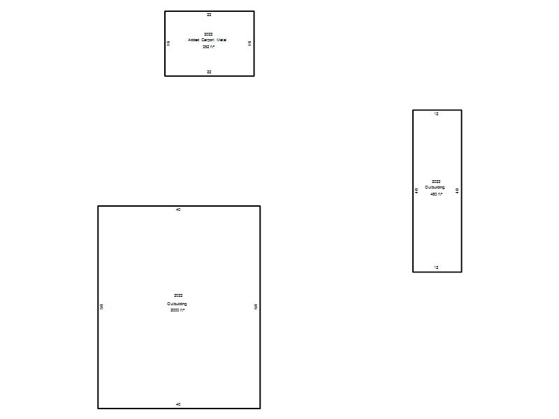
| Property Building Permit History | ||||||
|---|---|---|---|---|---|---|
| Issued | Permit # | Provided by | Bldg # | Description | Est Construction Cost | Status |
|
5/11/2023 |
BLDR-2023-01445 |
|
|
Storage Buil |
48,000 |
Inactive |
| Click button on building number to access detailed information: | ||||||
|---|---|---|---|---|---|---|
| Bldg # | Vacant/Improved Land | Bldg Description | Year Built | SqFt | # Stories | |
|
1 |
Improved |
Misc Imp - Res |
2023 |
|
|
|