|
|
|
| Larry Stein Oklahoma County Assessor (405) 713-1200 - Public Access System |
|
|
|
|
|
|
| Real Property Display - Screen Produced 4/2/2026 3:13:04 PM | ||||
|---|---|---|---|---|
| Account: R143993865 | Type: Residential | Location: |
12400 WAGON WHEEL CT |
|
| Building Name/Occupant: |
|
OKLAHOMA CITY |
||
| Owner Name 1: | DEAN BILL V JR & CHRISTINE P |
Parcel PIN#: |
3235-14-399-3865 |
|
| Owner Name 2: | 1/4 section #: |
3235 |
||
| Owner Name 3: | Parent Acct: |
|
||
| Billing Address: | PO BOX 1060 | Tax District: |
|
|
| City, State, Zip | JONES, OK 73049-1060 | School System: |
Jones #9 |
|
|
Country: (If noted) |
Land Size: |
5.3300 Acres |
||
|
Land Value: 74,620 |
|
|||
|
Sect 9-T13N-R1W Qtr SW |
UNPLTD PT SEC 09 13N 1W
Block
000
Lot
000
|
|||
| Full Legal Description: UNPLTD PT SEC 09 13N 1W 000 000 PT SW4 SEC 9 13N 1W BEG 1092FT N & 600FT E & 513FT N & 1229.65FT NELY & 250FT N & 417.18FT E OF SW/C SW4 TH E300FT S704.51FT SWLY 330.68FT N843.27FT TO BEG AKA TR 23 EDMOND RANCH UNREC CONT 5.33ACRS MORE OR LESS |
| No comparable sales report available. | ||||||||||||||||||||||
|
||||||||||||||||||||||
| Value History (*The County Treasurer 405-713-1300 posts & collects actual tax amounts. Contact information HERE) | |||||||||||||
|---|---|---|---|---|---|---|---|---|---|---|---|---|---|
| Year | Market Value | Taxable Mkt Value | Gross Assessed | Exemption | Net Assessed | Millage | Est. Tax | Tax Savings | |||||
|
2026 |
107,653 |
48,569 |
5,342 |
0 |
5,342 |
130.05 |
$695 |
$845 |
|||||
|
2025 |
107,331 |
46,257 |
5,088 |
0 |
5,088 |
130.05 |
$662 |
$874 |
|||||
|
2024 |
72,426 |
44,055 |
4,845 |
0 |
4,845 |
130.24 |
$631 |
$406 |
|||||
|
2023 |
72,490 |
41,958 |
4,614 |
0 |
4,614 |
127.43 |
$588 |
$428 |
|||||
|
2022 |
72,476 |
39,960 |
4,395 |
0 |
4,395 |
124.39 |
$547 |
$445 |
|||||
| Property Account Status/Adjustments/Exemptions | ||
|---|---|---|
| Account # | Exemption Description | Amount |
|
R143993865 |
5% Capped Account |
0 |
| Property Deed Transaction History (Recorded in the County Clerk's Office) | |||||||
|---|---|---|---|---|---|---|---|
| Date | Type | Book | Page | Price | Grantor | Grantee | |
|
8/13/2012 |
|
Other |
$0 |
SHERIFFS DEED |
DEAN BILL V JR & CHRISTINE P |
||
|
5/12/2004 |
|
Other |
$0 |
HERBERT WAYLAND C |
HARRIS MICHAEL & BRENDA |
||
|
7/25/1988 |
|
Historical |
$0 |
JDB LAND |
HERBERT WAYLAND C |
||
|
2/10/1988 |
|
Historical |
$0 |
CRAWFORD VIRGIL E JR |
JDB LAND |
||
|
11/1/1985 |
|
Historical |
$0 |
|
CRAWFORD VIRGIL E JR |
||
| Last Mailed Notice of Value (N.O.V.) Information/History | ||||||||
|---|---|---|---|---|---|---|---|---|
| Year | Date | Market Value | Taxable Market Value | Gross Assessed | Exemption | Net Assessed | ||
|
2026 |
02/06/2026 |
107,653 |
48,569 |
5,342 |
0 |
5,342 |
||
|
2025 |
01/31/2025 |
107,331 |
46,257 |
5,088 |
0 |
5,088 |
||
|
2024 |
01/22/2024 |
72,426 |
44,055 |
4,845 |
0 |
4,845 |
||
|
2023 |
01/23/2023 |
72,490 |
41,958 |
4,614 |
0 |
4,614 |
||
|
2022 |
02/22/2022 |
72,476 |
39,960 |
4,395 |
0 |
4,395 |
||
| Property Building Permit History | |||||||||||
|---|---|---|---|---|---|---|---|---|---|---|---|
| Issued | Permit # | Provided by | Bldg # | Description | Est Construction Cost | Status | |||||
| No Building Permit records returned. | |||||||||||
| Click button on building number to access detailed information: | ||||||
|---|---|---|---|---|---|---|
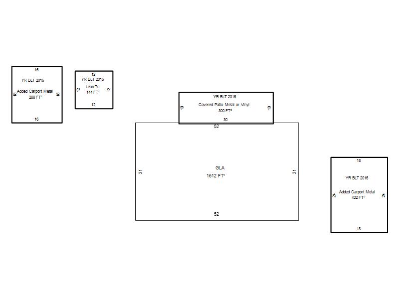
| Bldg # | Vacant/Improved Land | Bldg Description | Year Built | SqFt | # Stories | |
|
1 |
Improved |
Double Wide |
1999 |
1,612 |
1 Stories |
|