|
|
|
| Larry Stein Oklahoma County Assessor (405) 713-1200 - Public Access System |
|
|
|
|
|
|
| Real Property Display - Screen Produced 4/2/2026 3:13:04 PM | ||||
|---|---|---|---|---|
| Account: R143995035 | Type: Residential | Location: |
12416 WAGON WHEEL CT |
|
| Building Name/Occupant: |
|
OKLAHOMA CITY |
||
| Owner Name 1: | COWDREY GRADY E & PATRICIA F FORD |
Parcel PIN#: |
3235-14-399-5035 |
|
| Owner Name 2: | THOMAS DANIEL FORD | 1/4 section #: |
3235 |
|
| Owner Name 3: | Parent Acct: |
|
||
| Billing Address: | 12416 WAGON WHEEL CT | Tax District: |
|
|
| City, State, Zip | JONES, OK 73049-8837 | School System: |
Jones #9 |
|
|
Country: (If noted) |
Land Size: |
5.1400 Acres |
||
|
Land Value: 71,960 |
|
|||
|
Sect 9-T13N-R1W Qtr SW |
UNPLTD PT SEC 09 13N 1W
Block
000
Lot
000
|
|||
| Full Legal Description: UNPLTD PT SEC 09 13N 1W 000 000 PT SW4 SEC 9 13N 1W BEG 1092FT N & 600FT E & 513FT N & 1229.65FT NE & 250FT N & 717.18FT E OF SW/C SW4 TH E360FT S537.83FT SW397.22FT N704.51FT TO BEG CONT 5.14ACRS MORE OR LESS SUBJ TO ESMTS OF RECORD AKA LOT 24 EDMOND RANCH UNREC |
| No comparable sales report available. | ||||||||||||||||||||||
|
||||||||||||||||||||||
| Value History (*The County Treasurer 405-713-1300 posts & collects actual tax amounts. Contact information HERE) | |||||||||||||
|---|---|---|---|---|---|---|---|---|---|---|---|---|---|
| Year | Market Value | Taxable Mkt Value | Gross Assessed | Exemption | Net Assessed | Millage | Est. Tax | Tax Savings | |||||
|
2026 |
83,712 |
32,861 |
3,614 |
1,000 |
2,614 |
130.05 |
$340 |
$857 |
|||||
|
2025 |
83,576 |
31,904 |
3,509 |
1,000 |
2,509 |
130.05 |
$326 |
$869 |
|||||
|
2024 |
49,880 |
30,975 |
3,407 |
1,000 |
2,407 |
130.24 |
$314 |
$401 |
|||||
|
2023 |
49,902 |
30,073 |
3,307 |
1,000 |
2,307 |
127.43 |
$294 |
$405 |
|||||
|
2022 |
49,505 |
29,198 |
3,211 |
1,000 |
2,211 |
124.39 |
$275 |
$402 |
|||||
| Property Account Status/Adjustments/Exemptions | ||
|---|---|---|
| Account # | Exemption Description | Amount |
|
R143995035 |
3% Cap Homestead |
0 |
|
R143995035 |
Homestead |
1,000 |
| Property Deed Transaction History (Recorded in the County Clerk's Office) | |||||||
|---|---|---|---|---|---|---|---|
| Date | Type | Book | Page | Price | Grantor | Grantee | |
|
12/30/2014 |
|
Deeds |
$0 |
COWDREY GRADY E FORD PATRICIA F |
COWDREY GRADY E & PATRICIA F FORD |
||
|
10/1/1991 |
|
Historical |
$0 |
|
COWDREY GRADY E |
||
| Last Mailed Notice of Value (N.O.V.) Information/History | ||||||||
|---|---|---|---|---|---|---|---|---|
| Year | Date | Market Value | Taxable Market Value | Gross Assessed | Exemption | Net Assessed | ||
|
2026 |
02/06/2026 |
83,712 |
32,861 |
3,614 |
1,000 |
2,614 |
||
|
2025 |
01/31/2025 |
83,576 |
31,904 |
3,509 |
1,000 |
2,509 |
||
|
2024 |
01/22/2024 |
49,880 |
30,975 |
3,407 |
1,000 |
2,407 |
||
|
2023 |
01/23/2023 |
49,902 |
30,073 |
3,307 |
1,000 |
2,307 |
||
|
2022 |
02/22/2022 |
49,505 |
29,198 |
3,211 |
1,000 |
2,211 |
||
| Property Building Permit History | |||||||||||
|---|---|---|---|---|---|---|---|---|---|---|---|
| Issued | Permit # | Provided by | Bldg # | Description | Est Construction Cost | Status | |||||
| No Building Permit records returned. | |||||||||||
| Click button on building number to access detailed information: | ||||||
|---|---|---|---|---|---|---|
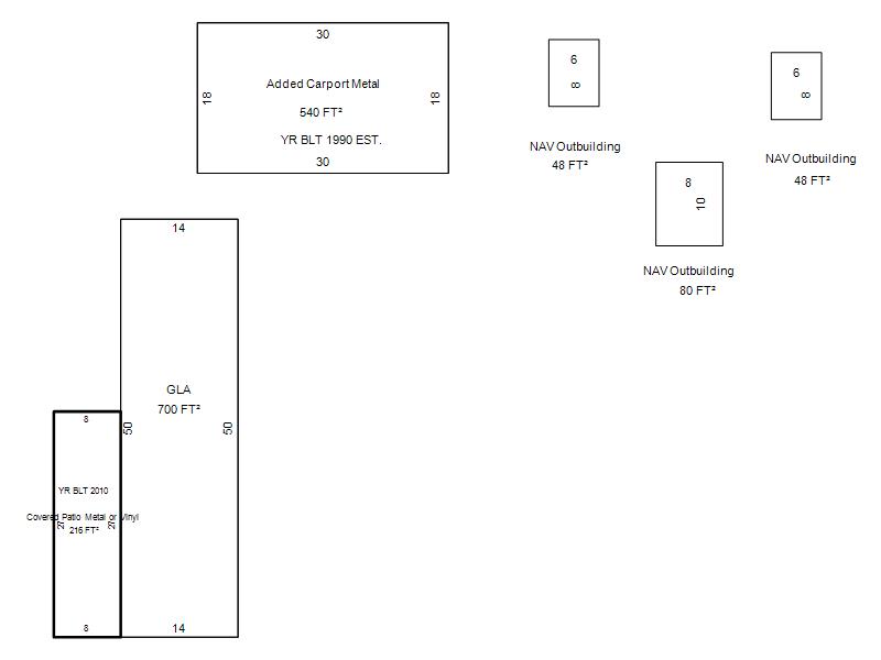
| Bldg # | Vacant/Improved Land | Bldg Description | Year Built | SqFt | # Stories | |
|
1 |
Improved |
Single Wide |
1982 |
700 |
1 Stories |
|