|
|
|
| Larry Stein Oklahoma County Assessor (405) 713-1200 - Public Access System |
|
|
|
|
|
|
| Real Property Display - Screen Produced 4/2/2026 10:00:01 AM | ||||
|---|---|---|---|---|
| Account: R193996190 | Type: Residential | Location: |
12201 E BRITTON RD |
|
| Building Name/Occupant: |
|
JONES |
||
| Owner Name 1: | RICE TERRY L TRS |
Parcel PIN#: |
3311-19-399-6190 |
|
| Owner Name 2: | RICE TERRY L REV LIV TRUST | 1/4 section #: |
3311 |
|
| Owner Name 3: | Parent Acct: |
|
||
| Billing Address: | 12101 E BRITTON RD | Tax District: |
|
|
| City, State, Zip | JONES, OK 73049 | School System: |
Jones #9 |
|
|
Country: (If noted) |
Land Size: |
0.6700 Acres |
||
|
Land Value: 11,122 |
|
|||
|
Sect 28-T13N-R1W Qtr SW |
UNPLTD PT SEC 28 13N 1W
Block
000
Lot
000
|
|||
| Full Legal Description: UNPLTD PT OF SW4 SEC 28 13N 1W BEG 250FT W OF SE/C OF W 1/2 OF SW4 TH W84FT N348FT E84FT S348FT TO BEG |
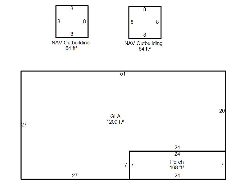
| Photo & Sketch (if available) | Comp Sales (ordered by relevancy) |
|
||||||||||||||||||
|
||||||||||||||||||||
| Value History (*The County Treasurer 405-713-1300 posts & collects actual tax amounts. Contact information HERE) | |||||||||||||
|---|---|---|---|---|---|---|---|---|---|---|---|---|---|
| Year | Market Value | Taxable Mkt Value | Gross Assessed | Exemption | Net Assessed | Millage | Est. Tax | Tax Savings | |||||
|
2026 |
149,500 |
85,084 |
9,358 |
0 |
9,358 |
114.89 |
$1,075 |
$814 |
|||||
|
2025 |
144,000 |
81,033 |
8,913 |
0 |
8,913 |
114.89 |
$1,024 |
$796 |
|||||
|
2024 |
140,000 |
77,175 |
8,489 |
0 |
8,489 |
115.31 |
$979 |
$797 |
|||||
|
2023 |
128,000 |
73,500 |
8,085 |
0 |
8,085 |
112.65 |
$911 |
$675 |
|||||
|
2022 |
70,000 |
70,000 |
7,700 |
0 |
7,700 |
108.93 |
$839 |
$0 |
|||||
| Property Account Status/Adjustments/Exemptions | ||
|---|---|---|
| Account # | Exemption Description | Amount |
|
R193996190 |
5% Capped Account |
0 |
| Property Deed Transaction History (Recorded in the County Clerk's Office) | ||||||||||
|---|---|---|---|---|---|---|---|---|---|---|
| Date | Type | Book | Page | Price | Grantor | Grantee | ||||
|
5/21/2024 |
|
Deeds |
$0 |
RICE TERRY |
RICE TERRY L TRS |
|||||
|
1/10/2020 |
|
Deeds |
$0 |
JACQUEMIN HENRY N |
JACQUEMIN JANE H |
|||||
|
1/8/2020 |
|
Deeds |
$70,000 |
JACQUEMIN JANE H |
RICE TERRY |
|||||
|
12/20/2019 |
|
Deeds |
$0 |
JUDGMENT |
JACQUEMIN HENRY N & JANE H |
|||||
|
12/27/1990 |
|
Historical |
$0 |
STEGER WILLELLA A |
JACQUEMIN HENRY N & JANE H |
|||||
| Last Mailed Notice of Value (N.O.V.) Information/History | ||||||||
|---|---|---|---|---|---|---|---|---|
| Year | Date | Market Value | Taxable Market Value | Gross Assessed | Exemption | Net Assessed | ||
|
2026 |
03/30/2026 |
149,500 |
85,084 |
9,358 |
0 |
9,358 |
||
|
2025 |
03/28/2025 |
144,000 |
81,033 |
8,913 |
0 |
8,913 |
||
|
2024 |
01/22/2024 |
140,000 |
77,175 |
8,489 |
0 |
8,489 |
||
|
2023 |
01/23/2023 |
128,000 |
73,500 |
8,085 |
0 |
8,085 |
||
|
2021 |
02/24/2021 |
70,000 |
70,000 |
7,700 |
0 |
7,700 |
||
| Property Building Permit History | ||||||
|---|---|---|---|---|---|---|
| Issued | Permit # | Provided by | Bldg # | Description | Est Construction Cost | Status |
|
5/10/2004 |
10291135 |
OKLAHOMA CITY |
1 |
Remodeled |
0 |
Inactive |
|
8/23/2002 |
10262237 |
JONES |
1 |
Burn - Trip |
15,000 |
Inactive |
| Click button on building number to access detailed information: | ||||||
|---|---|---|---|---|---|---|
| Bldg # | Vacant/Improved Land | Bldg Description | Year Built | SqFt | # Stories | |
|
1 |
Improved |
Ranch 1 Story |
1958 |
1,209 |
1 Stories |
|