|
|
|
| Larry Stein Oklahoma County Assessor (405) 713-1200 - Public Access System |
|
|
|
|
|
|
| Real Property Display - Screen Produced 3/20/2026 6:32:37 PM | ||||
|---|---|---|---|---|
| Account: R188071020 | Type: Residential | Location: |
14313 SCOTT ST |
|
| Building Name/Occupant: |
|
OKLAHOMA CITY |
||
| Owner Name 1: | QUIGLEY LARRY THOMAS |
Parcel PIN#: |
3426-18-807-1020 |
|
| Owner Name 2: | 1/4 section #: |
3426 |
||
| Owner Name 3: | Parent Acct: |
|
||
| Billing Address: | 14313 SCOTT ST | Tax District: |
|
|
| City, State, Zip | EDMOND, OK 73013 | School System: |
Edmond #12 |
|
|
Country: (If noted) |
Land Size: |
0.1567 Acres |
||
|
Land Value: 36,514 |
|
|||
|
Sect 7-T13N-R2W Qtr SE |
CAPITOL VIEW PARK
Block
001
Lot
003
|
|||
| Full Legal Description: CAPITOL VIEW PARK 001 003 |
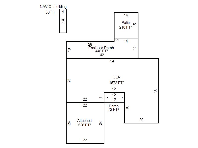
| Photo & Sketch (if available) | Comp Sales (ordered by relevancy) |
|
||||||||||||||||||
|
||||||||||||||||||||
| Value History (*The County Treasurer 405-713-1300 posts & collects actual tax amounts. Contact information HERE) | |||||||||||||
|---|---|---|---|---|---|---|---|---|---|---|---|---|---|
| Year | Market Value | Taxable Mkt Value | Gross Assessed | Exemption | Net Assessed | Millage | Est. Tax | Tax Savings | |||||
|
2025 |
240,000 |
196,000 |
21,560 |
1,000 |
20,560 |
120.32 |
$2,474 |
$703 |
|||||
|
2024 |
234,000 |
196,000 |
21,560 |
1,000 |
20,560 |
119.96 |
$2,466 |
$621 |
|||||
|
2023 |
223,000 |
196,000 |
21,560 |
1,000 |
20,560 |
119.02 |
$2,447 |
$473 |
|||||
|
2022 |
196,000 |
196,000 |
21,560 |
1,000 |
20,560 |
120.10 |
$2,469 |
$120 |
|||||
|
2021 |
173,500 |
157,204 |
17,291 |
1,000 |
16,291 |
118.88 |
$1,937 |
$332 |
|||||
| Property Account Status/Adjustments/Exemptions | ||
|---|---|---|
| Account # | Exemption Description | Amount |
|
R188071020 |
3% Cap Homestead |
0 |
|
R188071020 |
Freeze Senior Valuation |
0 |
|
R188071020 |
Homestead |
1,000 |
| Property Deed Transaction History (Recorded in the County Clerk's Office) | |||||||
|---|---|---|---|---|---|---|---|
| Date | Type | Book | Page | Price | Grantor | Grantee | |
|
12/23/2021 |
|
Deeds |
$208,000 |
STEWART SHARON S |
QUIGLEY LARRY THOMAS |
||
|
11/14/2012 |
|
Deeds |
$127,000 |
SOULE JUDITH C TRS SOULE JUDITH RESIDENCE TRUST |
STEWART SHARON S |
||
|
8/3/2006 |
|
Deeds |
$0 |
SOULE JUDITH CHRISTINE |
SOULE JUDITH C TRS SOULE JUDITH RESIDENCE TRUST |
||
|
2/1/1985 |
|
Historical |
$0 |
|
SOULE JUDITH CHRISTINE |
||
| Last Mailed Notice of Value (N.O.V.) Information/History | ||||||||
|---|---|---|---|---|---|---|---|---|
| Year | Date | Market Value | Taxable Market Value | Gross Assessed | Exemption | Net Assessed | ||
|
2026 |
02/06/2026 |
243,500 |
196,000 |
21,560 |
1,000 |
20,560 |
||
|
2025 |
01/31/2025 |
240,000 |
196,000 |
21,560 |
1,000 |
20,560 |
||
|
2024 |
01/22/2024 |
234,000 |
196,000 |
21,560 |
1,000 |
20,560 |
||
|
2023 |
01/23/2023 |
223,000 |
196,000 |
21,560 |
1,000 |
20,560 |
||
|
2022 |
02/22/2022 |
196,000 |
196,000 |
21,560 |
0 |
21,560 |
||
| Property Building Permit History | |||||||||||
|---|---|---|---|---|---|---|---|---|---|---|---|
| Issued | Permit # | Provided by | Bldg # | Description | Est Construction Cost | Status | |||||
| No Building Permit records returned. | |||||||||||
| Click button on building number to access detailed information: | ||||||
|---|---|---|---|---|---|---|
| Bldg # | Vacant/Improved Land | Bldg Description | Year Built | SqFt | # Stories | |
|
1 |
Improved |
Ranch 1 Story |
1976 |
1,572 |
1 Stories |
|