|
|
|
| Larry Stein Oklahoma County Assessor (405) 713-1200 - Public Access System |
|
|
|
|
|
|
| Real Property Display - Screen Produced 3/22/2026 10:46:55 AM | ||||
|---|---|---|---|---|
| Account: R151330140 | Type: Residential | Location: |
3924 TEAL DR |
|
| Building Name/Occupant: |
|
DEL CITY |
||
| Owner Name 1: | R A BUILDER LLC |
Parcel PIN#: |
1425-15-133-0140 |
|
| Owner Name 2: | 1/4 section #: |
1425 |
||
| Owner Name 3: | Parent Acct: |
|
||
| Billing Address: | 3924 TEAL DR | Tax District: |
|
|
| City, State, Zip | DEL CITY, OK 73115-2440 | School System: |
Mid-Del #52 |
|
|
Country: (If noted) |
Land Size: |
0.1515 Acres |
||
|
Land Value: 18,150 |
|
|||
|
Sect 7-T11N-R2W Qtr NE |
CARTER PARK SECOND
Block
001
Lot
014
|
|||
| Full Legal Description: CARTER PARK SECOND 001 014 |
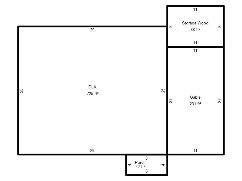
| Photo & Sketch (if available) | Comp Sales (ordered by relevancy) |
|
||||||||||||||||||
|
||||||||||||||||||||
| Value History (*The County Treasurer 405-713-1300 posts & collects actual tax amounts. Contact information HERE) | |||||||||||||
|---|---|---|---|---|---|---|---|---|---|---|---|---|---|
| Year | Market Value | Taxable Mkt Value | Gross Assessed | Exemption | Net Assessed | Millage | Est. Tax | Tax Savings | |||||
|
2025 |
89,000 |
80,325 |
8,835 |
0 |
8,835 |
114.72 |
$1,014 |
$109 |
|||||
|
2024 |
76,500 |
76,500 |
8,415 |
0 |
8,415 |
117.21 |
$986 |
$0 |
|||||
|
2023 |
76,000 |
76,000 |
8,360 |
0 |
8,360 |
112.46 |
$940 |
$0 |
|||||
|
2022 |
76,000 |
76,000 |
8,360 |
0 |
8,360 |
110.76 |
$926 |
$0 |
|||||
|
2021 |
54,500 |
54,500 |
5,995 |
0 |
5,995 |
114.70 |
$688 |
$0 |
|||||
| Property Account Status/Adjustments/Exemptions | ||||||
|---|---|---|---|---|---|---|
| Account # | Exemption Description | Amount | ||||
| No adjustment/exemption records returned. | ||||||
| Property Deed Transaction History (Recorded in the County Clerk's Office) | ||||||||||
|---|---|---|---|---|---|---|---|---|---|---|
| Date | Type | Book | Page | Price | Grantor | Grantee | ||||
|
8/21/2025 |
|
Deeds |
$62,000 |
TNT REALTY OHIO LLC |
R A BUILDER LLC |
|||||
|
10/8/2022 |
|
Hmstd Off & |
$0 |
TRUONG TODD |
TNT REALTY OHIO LLC |
|||||
|
7/20/2021 |
|
Deeds |
$80,000 |
BOWMAN ROSS |
TRUONG TODD |
|||||
|
1/10/2020 |
|
Deeds |
$57,000 |
ELDO PROPERTIES LLC |
BOWMAN ROSS |
|||||
|
5/8/2019 |
|
Deeds |
$42,000 |
JLB INVESTMENTS LLC |
ELDO PROPERTIES LLC |
|||||
| Last Mailed Notice of Value (N.O.V.) Information/History | ||||||||
|---|---|---|---|---|---|---|---|---|
| Year | Date | Market Value | Taxable Market Value | Gross Assessed | Exemption | Net Assessed | ||
|
2026 |
02/06/2026 |
88,000 |
88,000 |
9,680 |
0 |
9,680 |
||
|
2025 |
01/31/2025 |
89,000 |
80,325 |
8,835 |
0 |
8,835 |
||
|
2024 |
01/22/2024 |
76,500 |
76,500 |
8,415 |
0 |
8,415 |
||
|
2022 |
02/22/2022 |
76,000 |
76,000 |
8,360 |
0 |
8,360 |
||
|
2021 |
02/24/2021 |
54,500 |
54,500 |
5,995 |
0 |
5,995 |
||
| Property Building Permit History | |||||||||||
|---|---|---|---|---|---|---|---|---|---|---|---|
| Issued | Permit # | Provided by | Bldg # | Description | Est Construction Cost | Status | |||||
| No Building Permit records returned. | |||||||||||
| Click button on building number to access detailed information: | ||||||
|---|---|---|---|---|---|---|
| Bldg # | Vacant/Improved Land | Bldg Description | Year Built | SqFt | # Stories | |
|
1 |
Improved |
Ranch 1 Story |
1949 |
725 |
1 Stories |
|