|
|
|
| Larry Stein Oklahoma County Assessor (405) 713-1200 - Public Access System |
|
|
|
|
|
|
| Real Property Display - Screen Produced 3/22/2026 10:47:31 AM | ||||
|---|---|---|---|---|
| Account: R151330220 | Type: Residential | Location: |
3917 THOMAS AVE |
|
| Building Name/Occupant: |
|
DEL CITY |
||
| Owner Name 1: | TYRA FAMILY INVESTMENTS LLC |
Parcel PIN#: |
1425-15-133-0220 |
|
| Owner Name 2: | 1/4 section #: |
1425 |
||
| Owner Name 3: | Parent Acct: |
|
||
| Billing Address: | 11101 SE 29TH ST | Tax District: |
|
|
| City, State, Zip | MIDWEST CITY, OK 73130 | School System: |
Mid-Del #52 |
|
|
Country: (If noted) |
UNITED STATES |
Land Size: |
0.1503 Acres |
|
|
Land Value: 17,999 |
|
|||
|
Sect 7-T11N-R2W Qtr NE |
CARTER PARK SECOND
Block
001
Lot
022
|
|||
| Full Legal Description: CARTER PARK SECOND 001 022 |
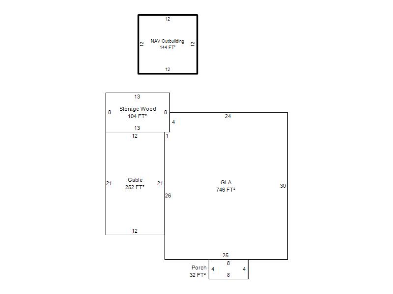
| Photo & Sketch (if available) | Comp Sales (ordered by relevancy) |
|
||||||||||||||||||
|
||||||||||||||||||||
| Value History (*The County Treasurer 405-713-1300 posts & collects actual tax amounts. Contact information HERE) | |||||||||||||
|---|---|---|---|---|---|---|---|---|---|---|---|---|---|
| Year | Market Value | Taxable Mkt Value | Gross Assessed | Exemption | Net Assessed | Millage | Est. Tax | Tax Savings | |||||
|
2025 |
79,000 |
47,859 |
5,263 |
0 |
5,263 |
114.72 |
$604 |
$393 |
|||||
|
2024 |
68,500 |
45,580 |
5,013 |
0 |
5,013 |
117.21 |
$588 |
$296 |
|||||
|
2023 |
58,500 |
43,410 |
4,774 |
0 |
4,774 |
112.46 |
$537 |
$187 |
|||||
|
2022 |
51,000 |
41,343 |
4,547 |
0 |
4,547 |
110.76 |
$504 |
$118 |
|||||
|
2021 |
42,000 |
39,375 |
4,331 |
0 |
4,331 |
114.70 |
$497 |
$33 |
|||||
| Property Account Status/Adjustments/Exemptions | ||
|---|---|---|
| Account # | Exemption Description | Amount |
|
R151330220 |
5% Capped Account |
0 |
| Property Deed Transaction History (Recorded in the County Clerk's Office) | |||||||
|---|---|---|---|---|---|---|---|
| Date | Type | Book | Page | Price | Grantor | Grantee | |
|
5/14/2019 |
|
Deeds |
$32,500 |
BREEDEN RAYMOND |
TYRA FAMILY INVESTMENTS LLC |
||
|
5/14/2019 |
|
Deeds |
$32,500 |
BREEDEN RAYMON LEE PER REP |
TYRA FAMILY INVESTMENTS LLC |
||
|
2/5/2019 |
|
Hmstd Off & |
$0 |
BREEDEN ELMER |
BREEDEN RAYMOND |
||
|
6/1/1975 |
|
Historical |
$0 |
|
BREEDEN ELMER |
||
| Last Mailed Notice of Value (N.O.V.) Information/History | ||||||||
|---|---|---|---|---|---|---|---|---|
| Year | Date | Market Value | Taxable Market Value | Gross Assessed | Exemption | Net Assessed | ||
|
2026 |
02/06/2026 |
78,500 |
50,251 |
5,527 |
0 |
5,527 |
||
|
2025 |
01/31/2025 |
79,000 |
47,859 |
5,263 |
0 |
5,263 |
||
|
2024 |
01/22/2024 |
68,500 |
45,580 |
5,013 |
0 |
5,013 |
||
|
2023 |
01/23/2023 |
58,500 |
43,410 |
4,774 |
0 |
4,774 |
||
|
2022 |
02/22/2022 |
51,000 |
41,343 |
4,547 |
0 |
4,547 |
||
| Property Building Permit History | |||||||||||
|---|---|---|---|---|---|---|---|---|---|---|---|
| Issued | Permit # | Provided by | Bldg # | Description | Est Construction Cost | Status | |||||
| No Building Permit records returned. | |||||||||||
| Click button on building number to access detailed information: | ||||||
|---|---|---|---|---|---|---|
| Bldg # | Vacant/Improved Land | Bldg Description | Year Built | SqFt | # Stories | |
|
1 |
Improved |
Ranch 1 Story |
1949 |
746 |
1 Stories |
|