|
|
|
| Larry Stein Oklahoma County Assessor (405) 713-1200 - Public Access System |
|
|
|
|
|
|
| Real Property Display - Screen Produced 3/22/2026 10:48:43 AM | ||||
|---|---|---|---|---|
| Account: R151330300 | Type: Residential | Location: |
4009 THOMAS AVE |
|
| Building Name/Occupant: |
|
DEL CITY |
||
| Owner Name 1: | FAULKNER KIMBERLY M |
Parcel PIN#: |
1425-15-133-0300 |
|
| Owner Name 2: | 1/4 section #: |
1425 |
||
| Owner Name 3: | Parent Acct: |
|
||
| Billing Address: | 1401 MORNING STAR | Tax District: |
|
|
| City, State, Zip | EDMOND, OK 73034 | School System: |
Mid-Del #52 |
|
|
Country: (If noted) |
UNITED STATES |
Land Size: |
0.1515 Acres |
|
|
Land Value: 18,150 |
|
|||
|
Sect 7-T11N-R2W Qtr NE |
CARTER PARK SECOND
Block
001
Lot
030
|
|||
| Full Legal Description: CARTER PARK SECOND 001 030 |
| Photo & Sketch (if available) | Comp Sales (ordered by relevancy) |
|
||||||||||||||||||
|
||||||||||||||||||||
| Value History (*The County Treasurer 405-713-1300 posts & collects actual tax amounts. Contact information HERE) | |||||||||||||
|---|---|---|---|---|---|---|---|---|---|---|---|---|---|
| Year | Market Value | Taxable Mkt Value | Gross Assessed | Exemption | Net Assessed | Millage | Est. Tax | Tax Savings | |||||
|
2025 |
120,000 |
79,128 |
8,703 |
0 |
8,703 |
114.72 |
$999 |
$516 |
|||||
|
2024 |
107,500 |
75,360 |
8,288 |
0 |
8,288 |
117.21 |
$972 |
$414 |
|||||
|
2023 |
96,500 |
71,772 |
7,894 |
0 |
7,894 |
112.46 |
$888 |
$306 |
|||||
|
2022 |
85,000 |
68,355 |
7,519 |
0 |
7,519 |
110.76 |
$833 |
$203 |
|||||
|
2021 |
69,500 |
65,100 |
7,161 |
0 |
7,161 |
114.70 |
$821 |
$56 |
|||||
| Property Account Status/Adjustments/Exemptions | ||
|---|---|---|
| Account # | Exemption Description | Amount |
|
R151330300 |
5% Capped Account |
0 |
| Property Deed Transaction History (Recorded in the County Clerk's Office) | ||||||||||
|---|---|---|---|---|---|---|---|---|---|---|
| Date | Type | Book | Page | Price | Grantor | Grantee | ||||
|
8/17/2007 |
|
Deeds |
$41,000 |
HOGUE LISA M & DANNY LEE |
FAULKNER KIMBERLY M |
|||||
|
3/1/2004 |
|
Deeds |
$0 |
HOGUE DANNY LEE |
HOGUE LISA M & DANNY LEE |
|||||
|
2/16/2004 |
|
Deeds |
$0 |
HOGUE MELISSA |
HOGUE DANNY LEE |
|||||
|
12/2/1998 |
|
Historical |
$0 |
HOGUE DANNY L & MELISSA |
HOGUE DANNY L |
|||||
|
10/31/1994 |
|
Historical |
$0 |
SECRETARY OF VETERANS AFFAIRS |
HOGUE DANNY L & MELISSA |
|||||
| Last Mailed Notice of Value (N.O.V.) Information/History | ||||||||
|---|---|---|---|---|---|---|---|---|
| Year | Date | Market Value | Taxable Market Value | Gross Assessed | Exemption | Net Assessed | ||
|
2026 |
02/06/2026 |
119,500 |
83,084 |
9,139 |
0 |
9,139 |
||
|
2025 |
01/31/2025 |
120,000 |
79,128 |
8,703 |
0 |
8,703 |
||
|
2024 |
01/22/2024 |
107,500 |
75,360 |
8,288 |
0 |
8,288 |
||
|
2023 |
01/23/2023 |
96,500 |
71,772 |
7,894 |
0 |
7,894 |
||
|
2022 |
02/22/2022 |
85,000 |
68,355 |
7,519 |
0 |
7,519 |
||
| Property Building Permit History | |||||||||||
|---|---|---|---|---|---|---|---|---|---|---|---|
| Issued | Permit # | Provided by | Bldg # | Description | Est Construction Cost | Status | |||||
| No Building Permit records returned. | |||||||||||
| Click button on building number to access detailed information: | ||||||
|---|---|---|---|---|---|---|
| Bldg # | Vacant/Improved Land | Bldg Description | Year Built | SqFt | # Stories | |
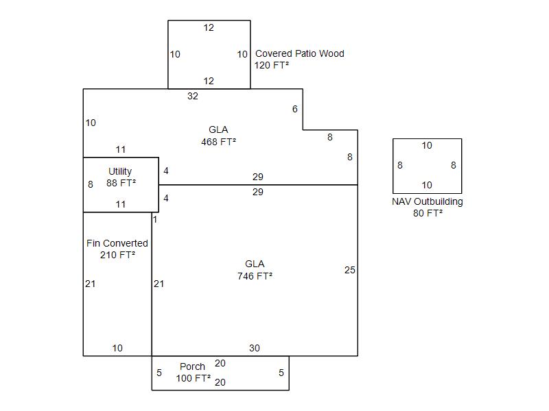
|
1 |
Improved |
Ranch 1 Story |
1949 |
1,214 |
1 Stories |
|