|
|
|
| Larry Stein Oklahoma County Assessor (405) 713-1200 - Public Access System |
|
|
|
|
|
|
| Real Property Display - Screen Produced 3/22/2026 10:46:55 AM | ||||
|---|---|---|---|---|
| Account: R151330380 | Type: Residential | Location: |
4036 THOMAS AVE |
|
| Building Name/Occupant: |
|
DEL CITY |
||
| Owner Name 1: | MADDUX MARVIN LEE |
Parcel PIN#: |
1425-15-133-0380 |
|
| Owner Name 2: | 1/4 section #: |
1425 |
||
| Owner Name 3: | Parent Acct: |
|
||
| Billing Address: | 4036 THOMAS AVE | Tax District: |
|
|
| City, State, Zip | DEL CITY, OK 73115 | School System: |
Mid-Del #52 |
|
|
Country: (If noted) |
Land Size: |
0.1818 Acres |
||
|
Land Value: 21,780 |
|
|||
|
Sect 7-T11N-R2W Qtr NE |
CARTER PARK SECOND
Block
002
Lot
001
|
|||
| Full Legal Description: CARTER PARK SECOND 002 001 |
| Photo & Sketch (if available) | Comp Sales (ordered by relevancy) |
|
||||||||||||||||||
|
||||||||||||||||||||
| Value History (*The County Treasurer 405-713-1300 posts & collects actual tax amounts. Contact information HERE) | |||||||||||||
|---|---|---|---|---|---|---|---|---|---|---|---|---|---|
| Year | Market Value | Taxable Mkt Value | Gross Assessed | Exemption | Net Assessed | Millage | Est. Tax | Tax Savings | |||||
|
2025 |
82,500 |
46,948 |
5,163 |
1,000 |
4,163 |
114.72 |
$478 |
$563 |
|||||
|
2024 |
74,000 |
45,581 |
5,013 |
1,000 |
4,013 |
117.21 |
$470 |
$484 |
|||||
|
2023 |
63,500 |
44,254 |
4,867 |
1,000 |
3,867 |
112.46 |
$435 |
$351 |
|||||
|
2022 |
56,000 |
42,966 |
4,725 |
1,000 |
3,725 |
110.76 |
$413 |
$270 |
|||||
|
2021 |
45,000 |
41,715 |
4,588 |
1,000 |
3,588 |
114.70 |
$412 |
$156 |
|||||
| Property Account Status/Adjustments/Exemptions | ||
|---|---|---|
| Account # | Exemption Description | Amount |
|
R151330380 |
3% Cap Homestead |
0 |
|
R151330380 |
Homestead |
1,000 |
| Property Deed Transaction History (Recorded in the County Clerk's Office) | |||||||
|---|---|---|---|---|---|---|---|
| Date | Type | Book | Page | Price | Grantor | Grantee | |
|
12/27/2017 |
|
Deeds |
$39,500 |
RENEWAL PROPERTIES LLC |
MADDUX MARVIN LEE |
||
|
6/18/2007 |
|
Deeds |
$34,500 |
GRAHAM PROPERTIES & INVESTMENTS INC |
RENEWAL PROPERTIES LLC |
||
|
7/19/2002 |
|
Deeds |
$25,000 |
KELLEY BRIAN D |
GRAHAM PROPERTIES & INVESTMENTS INC |
||
|
2/1/1983 |
|
Historical |
$0 |
|
KELLEY BRIAN D |
||
| Last Mailed Notice of Value (N.O.V.) Information/History | ||||||||
|---|---|---|---|---|---|---|---|---|
| Year | Date | Market Value | Taxable Market Value | Gross Assessed | Exemption | Net Assessed | ||
|
2026 |
02/06/2026 |
82,500 |
48,356 |
5,318 |
1,000 |
4,318 |
||
|
2025 |
01/31/2025 |
82,500 |
46,948 |
5,163 |
1,000 |
4,163 |
||
|
2024 |
01/22/2024 |
74,000 |
45,581 |
5,013 |
1,000 |
4,013 |
||
|
2023 |
01/23/2023 |
63,500 |
44,254 |
4,867 |
1,000 |
3,867 |
||
|
2022 |
02/22/2022 |
56,000 |
42,966 |
4,725 |
1,000 |
3,725 |
||
| Property Building Permit History | ||||||
|---|---|---|---|---|---|---|
| Issued | Permit # | Provided by | Bldg # | Description | Est Construction Cost | Status |
|
7/15/1996 |
10248581 |
DEL CITY |
1 |
Other |
1,855 |
Inactive |
| Click button on building number to access detailed information: | ||||||
|---|---|---|---|---|---|---|
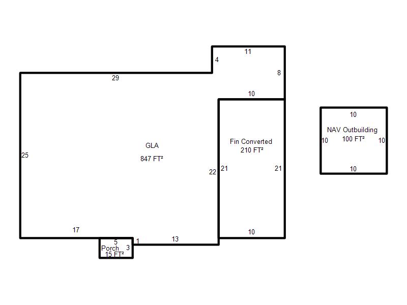
| Bldg # | Vacant/Improved Land | Bldg Description | Year Built | SqFt | # Stories | |
|
1 |
Improved |
Ranch 1 Story |
1949 |
847 |
1 Stories |
|