|
|
|
| Larry Stein Oklahoma County Assessor (405) 713-1200 - Public Access System |
|
|
|
|
|
|
| Real Property Display - Screen Produced 3/22/2026 10:45:42 AM | ||||
|---|---|---|---|---|
| Account: R151330400 | Type: Residential | Location: |
4028 THOMAS AVE |
|
| Building Name/Occupant: |
|
DEL CITY |
||
| Owner Name 1: | MADDUX MARVIN LEE |
Parcel PIN#: |
1425-15-133-0400 |
|
| Owner Name 2: | 1/4 section #: |
1425 |
||
| Owner Name 3: | Parent Acct: |
|
||
| Billing Address: | 4036 THOMAS AVE | Tax District: |
|
|
| City, State, Zip | DEL CITY, OK 73115 | School System: |
Mid-Del #52 |
|
|
Country: (If noted) |
Land Size: |
0.1515 Acres |
||
|
Land Value: 18,150 |
|
|||
|
Sect 7-T11N-R2W Qtr NE |
CARTER PARK SECOND
Block
002
Lot
003
|
|||
| Full Legal Description: CARTER PARK SECOND 002 003 |
| Photo & Sketch (if available) | Comp Sales (ordered by relevancy) |
|
||||||||||||||||||
|
||||||||||||||||||||
| Value History (*The County Treasurer 405-713-1300 posts & collects actual tax amounts. Contact information HERE) | |||||||||||||
|---|---|---|---|---|---|---|---|---|---|---|---|---|---|
| Year | Market Value | Taxable Mkt Value | Gross Assessed | Exemption | Net Assessed | Millage | Est. Tax | Tax Savings | |||||
|
2025 |
84,000 |
50,715 |
5,578 |
0 |
5,578 |
114.72 |
$640 |
$420 |
|||||
|
2024 |
72,000 |
48,300 |
5,313 |
0 |
5,313 |
117.21 |
$623 |
$306 |
|||||
|
2023 |
46,000 |
46,000 |
5,060 |
0 |
5,060 |
112.46 |
$569 |
$0 |
|||||
|
2022 |
46,000 |
46,000 |
5,060 |
0 |
5,060 |
110.76 |
$560 |
$0 |
|||||
|
2021 |
44,500 |
42,000 |
4,620 |
0 |
4,620 |
114.70 |
$530 |
$32 |
|||||
| Property Account Status/Adjustments/Exemptions | ||
|---|---|---|
| Account # | Exemption Description | Amount |
|
R151330400 |
5% Capped Account |
0 |
| Property Deed Transaction History (Recorded in the County Clerk's Office) | |||||||
|---|---|---|---|---|---|---|---|
| Date | Type | Book | Page | Price | Grantor | Grantee | |
|
9/9/2021 |
|
Deeds |
$45,000 |
OKC HOME STARTERS LLC |
MADDUX MARVIN LEE |
||
|
5/14/2018 |
|
Deeds |
$0 |
BRADLEY BOB & SHIRLEY A CO TRS |
BRADLEY BOB TRS |
||
|
5/14/2018 |
|
Deeds |
$32,000 |
BRADLEY BOB TRS |
OKC HOME STARTERS LLC |
||
|
2/4/1998 |
|
Historical |
$0 |
BRADLEY ROBERT O & SHIRLEY A |
BRADLEY BOB & SHIRLEY A CO TRS |
||
|
4/1/1983 |
|
Historical |
$0 |
|
BRADLEY ROBERT O & SHIRLEY A |
||
| Last Mailed Notice of Value (N.O.V.) Information/History | ||||||||
|---|---|---|---|---|---|---|---|---|
| Year | Date | Market Value | Taxable Market Value | Gross Assessed | Exemption | Net Assessed | ||
|
2026 |
02/06/2026 |
84,000 |
53,250 |
5,856 |
0 |
5,856 |
||
|
2025 |
01/31/2025 |
84,000 |
50,715 |
5,578 |
0 |
5,578 |
||
|
2024 |
01/22/2024 |
72,000 |
48,300 |
5,313 |
0 |
5,313 |
||
|
2022 |
02/22/2022 |
46,000 |
46,000 |
5,060 |
0 |
5,060 |
||
|
2021 |
02/24/2021 |
44,500 |
42,000 |
4,620 |
0 |
4,620 |
||
| Property Building Permit History | |||||||||||
|---|---|---|---|---|---|---|---|---|---|---|---|
| Issued | Permit # | Provided by | Bldg # | Description | Est Construction Cost | Status | |||||
| No Building Permit records returned. | |||||||||||
| Click button on building number to access detailed information: | ||||||
|---|---|---|---|---|---|---|
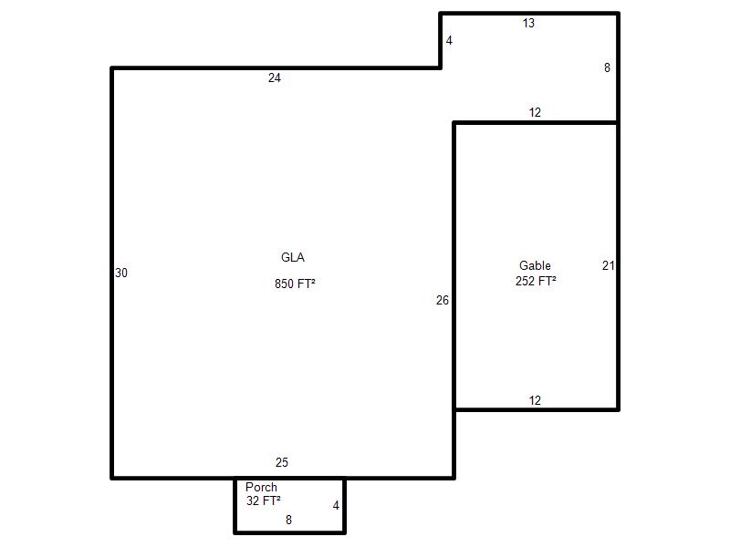
| Bldg # | Vacant/Improved Land | Bldg Description | Year Built | SqFt | # Stories | |
|
1 |
Improved |
Ranch 1 Story |
1949 |
850 |
1 Stories |
|