|
|
|
| Larry Stein Oklahoma County Assessor (405) 713-1200 - Public Access System |
|
|
|
|
|
|
| Real Property Display - Screen Produced 3/22/2026 10:46:50 AM | ||||
|---|---|---|---|---|
| Account: R151330520 | Type: Residential | Location: |
3920 THOMAS AVE |
|
| Building Name/Occupant: |
|
DEL CITY |
||
| Owner Name 1: | PRAIRIE PROPERTY SOLUTIONS LLC |
Parcel PIN#: |
1425-15-133-0520 |
|
| Owner Name 2: | 1/4 section #: |
1425 |
||
| Owner Name 3: | Parent Acct: |
|
||
| Billing Address: | PO BOX 515 | Tax District: |
|
|
| City, State, Zip | OKLAHOMA CITY, OK 73101 | School System: |
Mid-Del #52 |
|
|
Country: (If noted) |
Land Size: |
0.1515 Acres |
||
|
Land Value: 18,150 |
|
|||
|
Sect 7-T11N-R2W Qtr NE |
CARTER PARK SECOND
Block
002
Lot
015
|
|||
| Full Legal Description: CARTER PARK SECOND 002 015 |
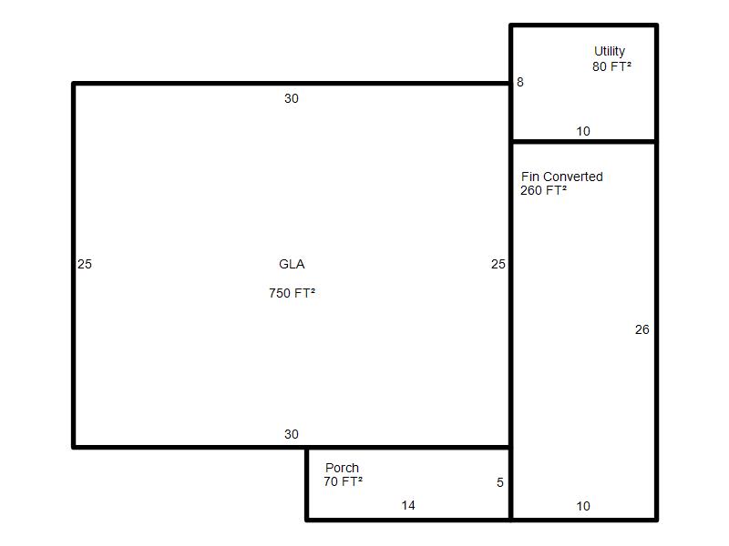
| Photo & Sketch (if available) | Comp Sales (ordered by relevancy) |
|
||||||||||||||||||
|
||||||||||||||||||||
| Value History (*The County Treasurer 405-713-1300 posts & collects actual tax amounts. Contact information HERE) | |||||||||||||
|---|---|---|---|---|---|---|---|---|---|---|---|---|---|
| Year | Market Value | Taxable Mkt Value | Gross Assessed | Exemption | Net Assessed | Millage | Est. Tax | Tax Savings | |||||
|
2025 |
105,500 |
92,058 |
10,126 |
0 |
10,126 |
114.72 |
$1,162 |
$170 |
|||||
|
2024 |
96,500 |
87,675 |
9,644 |
0 |
9,644 |
117.21 |
$1,130 |
$114 |
|||||
|
2023 |
83,500 |
83,500 |
9,185 |
0 |
9,185 |
112.46 |
$1,033 |
$0 |
|||||
|
2022 |
60,500 |
47,407 |
5,214 |
0 |
5,214 |
110.76 |
$578 |
$160 |
|||||
|
2021 |
49,000 |
45,150 |
4,966 |
0 |
4,966 |
114.70 |
$570 |
$49 |
|||||
| Property Account Status/Adjustments/Exemptions | ||
|---|---|---|
| Account # | Exemption Description | Amount |
|
R151330520 |
5% Capped Account |
0 |
| Property Deed Transaction History (Recorded in the County Clerk's Office) | ||||||||||
|---|---|---|---|---|---|---|---|---|---|---|
| Date | Type | Book | Page | Price | Grantor | Grantee | ||||
|
6/22/2022 |
|
Deeds |
$83,000 |
RAK PROPERTIES INC |
PRAIRIE PROPERTY SOLUTIONS LLC |
|||||
|
11/28/2007 |
|
Deeds |
$32,000 |
GRIFFITH JOHN |
RAK PROPERTIES INC |
|||||
|
4/27/2007 |
|
Deeds |
$20,000 |
HURST LOVELL W |
GRIFFITH JOHN |
|||||
|
7/15/1991 |
|
Historical |
$0 |
PARSONS DAVID E & TAMARA L |
HURST LOVELL W |
|||||
|
12/11/1990 |
|
Historical |
$0 |
GOVERNMENT NATIONAL |
PARSONS DAVID E & TAMARA L |
|||||
| Last Mailed Notice of Value (N.O.V.) Information/History | ||||||||
|---|---|---|---|---|---|---|---|---|
| Year | Date | Market Value | Taxable Market Value | Gross Assessed | Exemption | Net Assessed | ||
|
2026 |
02/06/2026 |
103,000 |
96,660 |
10,632 |
0 |
10,632 |
||
|
2025 |
01/31/2025 |
105,500 |
92,058 |
10,126 |
0 |
10,126 |
||
|
2024 |
01/22/2024 |
96,500 |
87,675 |
9,644 |
0 |
9,644 |
||
|
2023 |
01/23/2023 |
83,500 |
83,500 |
9,185 |
0 |
9,185 |
||
|
2022 |
02/22/2022 |
60,500 |
47,407 |
5,214 |
0 |
5,214 |
||
| Property Building Permit History | |||||||||||
|---|---|---|---|---|---|---|---|---|---|---|---|
| Issued | Permit # | Provided by | Bldg # | Description | Est Construction Cost | Status | |||||
| No Building Permit records returned. | |||||||||||
| Click button on building number to access detailed information: | ||||||
|---|---|---|---|---|---|---|
| Bldg # | Vacant/Improved Land | Bldg Description | Year Built | SqFt | # Stories | |
|
1 |
Improved |
Ranch 1 Story |
1949 |
750 |
1 Stories |
|