|
|
|
| Larry Stein Oklahoma County Assessor (405) 713-1200 - Public Access System |
|
|
|
|
|
|
| Real Property Display - Screen Produced 3/22/2026 10:46:50 AM | ||||
|---|---|---|---|---|
| Account: R151330730 | Type: Residential | Location: |
4021 PINE AVE |
|
| Building Name/Occupant: |
|
DEL CITY |
||
| Owner Name 1: | AGUINAGA DANIEL G |
Parcel PIN#: |
1425-15-133-0730 |
|
| Owner Name 2: | NAJERA NANCY M | 1/4 section #: |
1425 |
|
| Owner Name 3: | Parent Acct: |
|
||
| Billing Address: | 4021 PINE AVE | Tax District: |
|
|
| City, State, Zip | DEL CITY, OK 73115-2437 | School System: |
Mid-Del #52 |
|
|
Country: (If noted) |
Land Size: |
0.1515 Acres |
||
|
Land Value: 18,150 |
|
|||
|
Sect 7-T11N-R2W Qtr NE |
CARTER PARK SECOND
Block
002
Lot
036
|
|||
| Full Legal Description: CARTER PARK SECOND 002 036 |
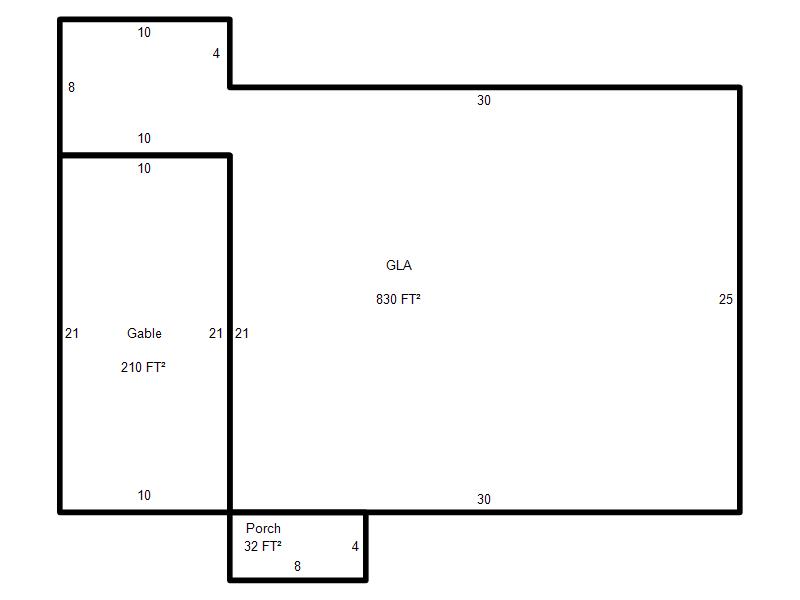
| Photo & Sketch (if available) | Comp Sales (ordered by relevancy) |
|
||||||||||||||||||
|
||||||||||||||||||||
| Value History (*The County Treasurer 405-713-1300 posts & collects actual tax amounts. Contact information HERE) | |||||||||||||
|---|---|---|---|---|---|---|---|---|---|---|---|---|---|
| Year | Market Value | Taxable Mkt Value | Gross Assessed | Exemption | Net Assessed | Millage | Est. Tax | Tax Savings | |||||
|
2025 |
123,500 |
115,500 |
12,705 |
0 |
12,705 |
114.72 |
$1,458 |
$101 |
|||||
|
2024 |
110,000 |
110,000 |
12,100 |
0 |
12,100 |
117.21 |
$1,418 |
$0 |
|||||
|
2023 |
60,500 |
31,269 |
3,438 |
0 |
3,438 |
112.46 |
$387 |
$362 |
|||||
|
2022 |
53,000 |
29,780 |
3,275 |
2,000 |
1,275 |
110.76 |
$141 |
$504 |
|||||
|
2021 |
43,000 |
29,780 |
3,275 |
2,000 |
1,275 |
114.70 |
$146 |
$396 |
|||||
| Property Account Status/Adjustments/Exemptions | ||
|---|---|---|
| Account # | Exemption Description | Amount |
|
R151330730 |
5% Capped Account |
0 |
| Property Deed Transaction History (Recorded in the County Clerk's Office) | ||||||||||
|---|---|---|---|---|---|---|---|---|---|---|
| Date | Type | Book | Page | Price | Grantor | Grantee | ||||
|
11/8/2023 |
|
Deeds |
$130,000 |
NOLEN PROPERTIES LLC |
AGUINAGA DANIEL G |
|||||
|
8/11/2023 |
|
Deeds |
$49,000 |
DILL JERRY EUGENE |
NOLEN PROPERTIES LLC |
|||||
|
8/16/2002 |
|
Hmstd Off & |
$0 |
DILL JACQULINE CHRISTINE |
DILL JERRY EUGENE |
|||||
|
9/6/2001 |
|
Hmstd Off & |
$0 |
DILL JERRY E & DOROTHY A |
DILL JACQULINE CHRISTINE |
|||||
|
6/9/1997 |
|
Historical |
$20,000 |
LARSEN JAMES A |
DILL JERRY E & DOROTHY A |
|||||
| Last Mailed Notice of Value (N.O.V.) Information/History | ||||||||
|---|---|---|---|---|---|---|---|---|
| Year | Date | Market Value | Taxable Market Value | Gross Assessed | Exemption | Net Assessed | ||
|
2026 |
02/06/2026 |
121,500 |
121,275 |
13,340 |
0 |
13,340 |
||
|
2025 |
01/31/2025 |
123,500 |
115,500 |
12,705 |
0 |
12,705 |
||
|
2024 |
01/22/2024 |
110,000 |
110,000 |
12,100 |
0 |
12,100 |
||
|
2023 |
01/23/2023 |
60,500 |
29,780 |
3,275 |
2,000 |
1,275 |
||
|
2022 |
02/22/2022 |
53,000 |
29,780 |
3,275 |
2,000 |
1,275 |
||
| Property Building Permit History | |||||||||||
|---|---|---|---|---|---|---|---|---|---|---|---|
| Issued | Permit # | Provided by | Bldg # | Description | Est Construction Cost | Status | |||||
| No Building Permit records returned. | |||||||||||
| Click button on building number to access detailed information: | ||||||
|---|---|---|---|---|---|---|
| Bldg # | Vacant/Improved Land | Bldg Description | Year Built | SqFt | # Stories | |
|
1 |
Improved |
Ranch 1 Story |
1950 |
830 |
1 Stories |
|