|
|
|
| Larry Stein Oklahoma County Assessor (405) 713-1200 - Public Access System |
|
|
|
|
|
|
| Real Property Display - Screen Produced 3/22/2026 10:46:50 AM | ||||
|---|---|---|---|---|
| Account: R151330740 | Type: Residential | Location: |
4025 PINE AVE |
|
| Building Name/Occupant: |
|
DEL CITY |
||
| Owner Name 1: | MCCOSH SHANA M |
Parcel PIN#: |
1425-15-133-0740 |
|
| Owner Name 2: | 1/4 section #: |
1425 |
||
| Owner Name 3: | Parent Acct: |
|
||
| Billing Address: | 3221 NW 192ND TER | Tax District: |
|
|
| City, State, Zip | EDMOND, OK 73012-9093 | School System: |
Mid-Del #52 |
|
|
Country: (If noted) |
Land Size: |
0.1515 Acres |
||
|
Land Value: 18,150 |
|
|||
|
Sect 7-T11N-R2W Qtr NE |
CARTER PARK SECOND
Block
002
Lot
037
|
|||
| Full Legal Description: CARTER PARK SECOND 002 037 |
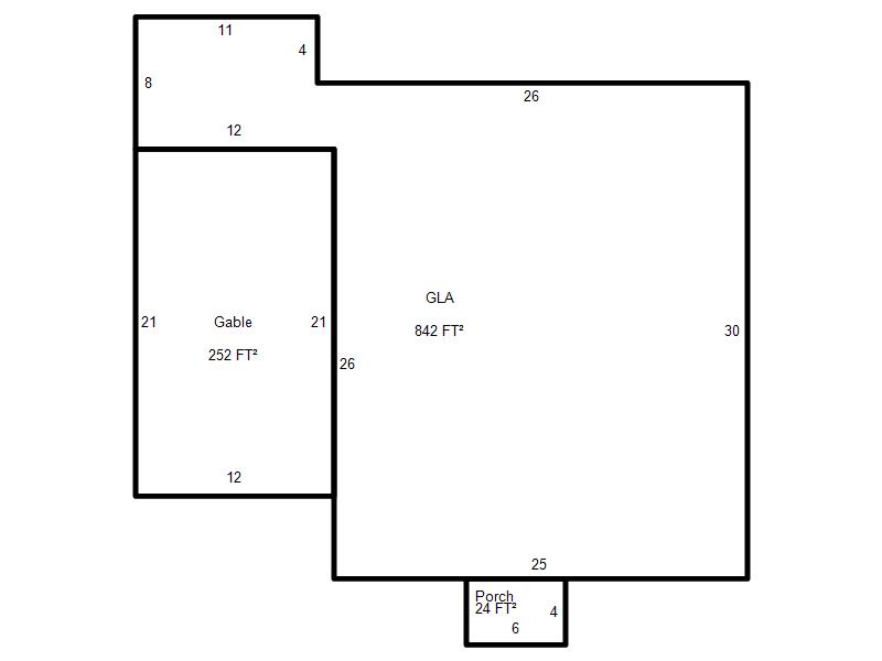
| Photo & Sketch (if available) | Comp Sales (ordered by relevancy) |
|
||||||||||||||||||
|
||||||||||||||||||||
| Value History (*The County Treasurer 405-713-1300 posts & collects actual tax amounts. Contact information HERE) | |||||||||||||
|---|---|---|---|---|---|---|---|---|---|---|---|---|---|
| Year | Market Value | Taxable Mkt Value | Gross Assessed | Exemption | Net Assessed | Millage | Est. Tax | Tax Savings | |||||
|
2025 |
85,000 |
57,430 |
6,316 |
0 |
6,316 |
114.72 |
$725 |
$348 |
|||||
|
2024 |
74,500 |
54,696 |
6,016 |
0 |
6,016 |
117.21 |
$705 |
$255 |
|||||
|
2023 |
66,000 |
52,092 |
5,729 |
0 |
5,729 |
112.46 |
$644 |
$172 |
|||||
|
2022 |
59,000 |
49,612 |
5,456 |
0 |
5,456 |
110.76 |
$604 |
$114 |
|||||
|
2021 |
49,000 |
47,250 |
5,197 |
0 |
5,197 |
114.70 |
$596 |
$22 |
|||||
| Property Account Status/Adjustments/Exemptions | ||
|---|---|---|
| Account # | Exemption Description | Amount |
|
R151330740 |
5% Capped Account |
0 |
| Property Deed Transaction History (Recorded in the County Clerk's Office) | ||||||||||
|---|---|---|---|---|---|---|---|---|---|---|
| Date | Type | Book | Page | Price | Grantor | Grantee | ||||
|
8/25/2016 |
|
Deeds |
$0 |
MCCOSH JOHN D & SHANA M |
MCCOSH SHANA M |
|||||
|
3/14/2014 |
|
Deeds |
$42,000 |
GOWER DAVID CLARK JARY L |
MCCOSH JOHN D & SHANA M |
|||||
|
1/9/2008 |
|
Hmstd Off & |
$0 |
LEPISTO SHARON |
CITY EQUITY FUNDING LLC |
|||||
|
12/21/2007 |
|
Deeds |
$44,000 |
CITY EQUITY FUNDING LLC |
LEPISTO SHARON |
|||||
|
7/26/2007 |
|
Deeds |
$20,000 |
WHITEHOUSE WANDA THETFORD |
LEPISTO SHARON |
|||||
| Last Mailed Notice of Value (N.O.V.) Information/History | ||||||||
|---|---|---|---|---|---|---|---|---|
| Year | Date | Market Value | Taxable Market Value | Gross Assessed | Exemption | Net Assessed | ||
|
2026 |
02/06/2026 |
83,500 |
60,301 |
6,632 |
0 |
6,632 |
||
|
2025 |
01/31/2025 |
85,000 |
57,430 |
6,316 |
0 |
6,316 |
||
|
2024 |
01/22/2024 |
74,500 |
54,696 |
6,016 |
0 |
6,016 |
||
|
2023 |
01/23/2023 |
66,000 |
52,092 |
5,729 |
0 |
5,729 |
||
|
2022 |
02/22/2022 |
59,000 |
49,612 |
5,456 |
0 |
5,456 |
||
| Property Building Permit History | |||||||||||
|---|---|---|---|---|---|---|---|---|---|---|---|
| Issued | Permit # | Provided by | Bldg # | Description | Est Construction Cost | Status | |||||
| No Building Permit records returned. | |||||||||||
| Click button on building number to access detailed information: | ||||||
|---|---|---|---|---|---|---|
| Bldg # | Vacant/Improved Land | Bldg Description | Year Built | SqFt | # Stories | |
|
1 |
Improved |
Ranch 1 Story |
1950 |
842 |
1 Stories |
|