|
|
|
| Larry Stein Oklahoma County Assessor (405) 713-1200 - Public Access System |
|
|
|
|
|
|
| Real Property Display - Screen Produced 4/6/2026 5:44:49 AM | ||||
|---|---|---|---|---|
| Account: R121001070 | Type: Residential | Location: |
3720 HARRIS DR |
|
| Building Name/Occupant: |
|
EDMOND |
||
| Owner Name 1: | BURNS BRADY |
Parcel PIN#: |
3432-12-100-1070 |
|
| Owner Name 2: | ALLISON BRITTANY | 1/4 section #: |
3432 |
|
| Owner Name 3: | Parent Acct: |
|
||
| Billing Address: | 3720 HARRIS DR | Tax District: |
|
|
| City, State, Zip | EDMOND, OK 73013-8076 | School System: |
Edmond #12 |
|
|
Country: (If noted) |
Land Size: |
0.5200 Acres |
||
|
Land Value: 114,400 |
|
|||
|
Sect 8-T13N-R2W Qtr NW |
HARRIS TALL OAKS SEC 5
Block
007
Lot
008
|
|||
| Full Legal Description: HARRIS TALL OAKS SEC 5 007 008 |
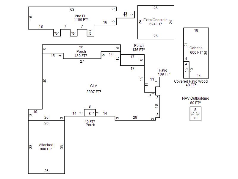
| Photo & Sketch (if available) | Comp Sales (ordered by relevancy) |
|
||||||||||||||||||
|
||||||||||||||||||||
| Value History (*The County Treasurer 405-713-1300 posts & collects actual tax amounts. Contact information HERE) | |||||||||||||
|---|---|---|---|---|---|---|---|---|---|---|---|---|---|
| Year | Market Value | Taxable Mkt Value | Gross Assessed | Exemption | Net Assessed | Millage | Est. Tax | Tax Savings | |||||
|
2026 |
899,000 |
899,000 |
98,890 |
0 |
98,890 |
105.16 |
$10,399 |
$0 |
|||||
|
2025 |
931,500 |
931,500 |
102,465 |
0 |
102,465 |
105.16 |
$10,775 |
$0 |
|||||
|
2024 |
872,000 |
644,914 |
70,940 |
1,000 |
69,940 |
105.03 |
$7,346 |
$2,729 |
|||||
|
2023 |
855,500 |
626,131 |
68,874 |
1,000 |
67,874 |
104.24 |
$7,075 |
$2,734 |
|||||
|
2022 |
700,000 |
607,895 |
66,867 |
1,000 |
65,867 |
104.64 |
$6,892 |
$1,165 |
|||||
| Property Account Status/Adjustments/Exemptions | ||
|---|---|---|
| Account # | Exemption Description | Amount |
|
R121001070 |
5% Capped Account |
0 |
| Property Deed Transaction History (Recorded in the County Clerk's Office) | ||||||||||
|---|---|---|---|---|---|---|---|---|---|---|
| Date | Type | Book | Page | Price | Grantor | Grantee | ||||
|
8/14/2024 |
|
Deeds |
$875,000 |
LEATON JOHN R & ERMA R TRS |
BURNS BRADY |
|||||
|
8/13/2020 |
|
Deeds |
$0 |
LEATON JOHN R & ERMA R |
LEATON JOHN R & ERMA R TRS |
|||||
|
1/31/2007 |
|
Deeds |
$510,000 |
JURRENS RICK T TRS JURRENS RICK T LIV TRUST |
LEATON JOHN R & ERMA R |
|||||
|
11/12/2004 |
|
Deeds |
$0 |
JURRENS RICK T TRS JURRENS RICK T LIV TRUST |
JURRENS RICK T & JEANITA M |
|||||
|
11/12/2004 |
|
Deeds |
$0 |
JURRENS RICK T & JEANITA M |
JURRENS RICK T TRS JURRENS RICK T LIV TRUST |
|||||
| Last Mailed Notice of Value (N.O.V.) Information/History | ||||||||
|---|---|---|---|---|---|---|---|---|
| Year | Date | Market Value | Taxable Market Value | Gross Assessed | Exemption | Net Assessed | ||
|
2025 |
01/31/2025 |
931,500 |
931,500 |
102,465 |
0 |
102,465 |
||
|
2024 |
01/22/2024 |
872,000 |
644,914 |
70,940 |
1,000 |
69,940 |
||
|
2023 |
01/23/2023 |
855,500 |
626,131 |
68,874 |
1,000 |
67,874 |
||
|
2022 |
02/22/2022 |
700,000 |
607,895 |
66,867 |
1,000 |
65,867 |
||
|
2021 |
02/24/2021 |
627,500 |
590,190 |
64,920 |
1,000 |
63,920 |
||
| Property Building Permit History | |||||||||||
|---|---|---|---|---|---|---|---|---|---|---|---|
| Issued | Permit # | Provided by | Bldg # | Description | Est Construction Cost | Status | |||||
| No Building Permit records returned. | |||||||||||
| Click button on building number to access detailed information: | ||||||
|---|---|---|---|---|---|---|
| Bldg # | Vacant/Improved Land | Bldg Description | Year Built | SqFt | # Stories | |
|
1 |
Improved |
1½ Story Fin |
1983 |
4,497 |
1.5 Stories |
|