|
|
|
| Larry Stein Oklahoma County Assessor (405) 713-1200 - Public Access System |
|
|
|
|
|
|
| Real Property Display - Screen Produced 4/4/2026 7:35:35 AM | ||||
|---|---|---|---|---|
| Account: R141581055 | Type: Residential | Location: |
7727 NE 102ND ST |
|
| Building Name/Occupant: |
|
OKLAHOMA CITY |
||
| Owner Name 1: | THOMASON FAMILY TRUST |
Parcel PIN#: |
3505-14-158-1055 |
|
| Owner Name 2: | 1/4 section #: |
3505 |
||
| Owner Name 3: | Parent Acct: |
|
||
| Billing Address: | 7727 NE 102ND ST | Tax District: |
|
|
| City, State, Zip | JONES, OK 73049 | School System: |
Jones #9 |
|
|
Country: (If noted) |
Land Size: |
5.0400 Acres |
||
|
Land Value: 60,530 |
|
|||
|
Sect 27-T13N-R2W Qtr NE |
UNPLTD PT SEC 27 13N 2W
Block
000
Lot
000
|
|||
| Full Legal Description: UNPLTD PT OF NE4 SEC 27 13N 2W BEG 1079FT W OF NE/C OF S 1/2 OF NE4 TH S635.54FT W346FT N635.54FT E346FT TO BEG OR TR 4 MIDWEST ACRES UNREC |
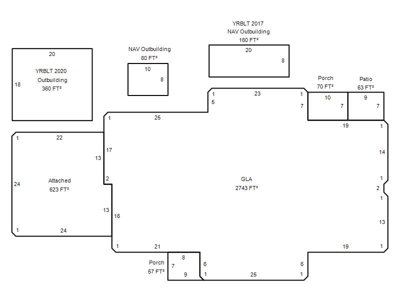
| Photo & Sketch (if available) | Comp Sales (ordered by relevancy) |
|
||||||||||||||||||
|
||||||||||||||||||||
| Value History (*The County Treasurer 405-713-1300 posts & collects actual tax amounts. Contact information HERE) | |||||||||||||
|---|---|---|---|---|---|---|---|---|---|---|---|---|---|
| Year | Market Value | Taxable Mkt Value | Gross Assessed | Exemption | Net Assessed | Millage | Est. Tax | Tax Savings | |||||
|
2026 |
460,500 |
282,535 |
31,078 |
1,000 |
30,078 |
130.05 |
$3,912 |
$2,676 |
|||||
|
2025 |
495,500 |
274,306 |
30,172 |
1,000 |
29,172 |
130.05 |
$3,794 |
$3,294 |
|||||
|
2024 |
475,000 |
266,317 |
29,294 |
1,000 |
28,294 |
130.24 |
$3,685 |
$3,120 |
|||||
|
2023 |
444,000 |
258,561 |
28,441 |
1,000 |
27,441 |
127.43 |
$3,497 |
$2,727 |
|||||
|
2022 |
392,500 |
251,031 |
27,613 |
1,000 |
26,613 |
124.39 |
$3,310 |
$2,060 |
|||||
| Property Account Status/Adjustments/Exemptions | ||
|---|---|---|
| Account # | Exemption Description | Amount |
|
R141581055 |
Freeze Senior Valuation |
0 |
|
R141581055 |
Homestead |
1,000 |
|
R141581055 |
3% Cap Homestead |
0 |
| Property Deed Transaction History (Recorded in the County Clerk's Office) | |||||||
|---|---|---|---|---|---|---|---|
| Date | Type | Book | Page | Price | Grantor | Grantee | |
|
10/4/2021 |
|
Hmstd Off & |
$0 |
THOMASON JANA D TRS |
THOMASON FAMILY TRUST |
||
|
12/16/2020 |
|
Deeds |
$0 |
FEARNOW WILLIAM R & BEVERLY J |
THOMASON JANA D TRS |
||
|
9/25/1997 |
|
Hmstd Off & |
$0 |
THOMASON MARTY D & JANA D |
FEARNOW WILLIAM R & BEVERLY J |
||
|
2/10/1993 |
|
Historical |
$0 |
HAMMER LOIS M |
THOMASON MARTY D & JANA D |
||
|
11/11/1911 |
|
Historical |
$0 |
|
HAMMER LOIS M |
||
| Last Mailed Notice of Value (N.O.V.) Information/History | ||||||||
|---|---|---|---|---|---|---|---|---|
| Year | Date | Market Value | Taxable Market Value | Gross Assessed | Exemption | Net Assessed | ||
|
2026 |
02/06/2026 |
460,500 |
282,535 |
31,078 |
1,000 |
30,078 |
||
|
2025 |
01/31/2025 |
495,500 |
274,306 |
30,172 |
1,000 |
29,172 |
||
|
2024 |
01/22/2024 |
475,000 |
266,317 |
29,294 |
1,000 |
28,294 |
||
|
2023 |
01/23/2023 |
444,000 |
258,561 |
28,441 |
1,000 |
27,441 |
||
|
2022 |
02/22/2022 |
392,500 |
255,906 |
28,149 |
0 |
28,149 |
||
| Property Building Permit History | ||||||
|---|---|---|---|---|---|---|
| Issued | Permit # | Provided by | Bldg # | Description | Est Construction Cost | Status |
|
9/17/1999 |
10234712 |
OKLAHOMA CITY |
1 |
Main Dwellin |
150,000 |
Inactive |
| Click button on building number to access detailed information: | ||||||
|---|---|---|---|---|---|---|
| Bldg # | Vacant/Improved Land | Bldg Description | Year Built | SqFt | # Stories | |
|
1 |
Improved |
Ranch 1 Story |
2001 |
2,743 |
1 Stories |
|