|
|
|
| Larry Stein Oklahoma County Assessor (405) 713-1200 - Public Access System |
|
|
|
|
|
|
| Real Property Display - Screen Produced 4/1/2026 9:57:45 PM | ||||
|---|---|---|---|---|
| Account: R182011130 | Type: Residential | Location: |
209 ELWOOD DR |
|
| Building Name/Occupant: |
|
EDMOND |
||
| Owner Name 1: | GIEGER HARRISON |
Parcel PIN#: |
3603-18-201-1130 |
|
| Owner Name 2: | GIEGER VIVIAN | 1/4 section #: |
3603 |
|
| Owner Name 3: | Parent Acct: |
|
||
| Billing Address: | 209 ELWOOD DR | Tax District: |
|
|
| City, State, Zip | EDMOND, OK 73013 | School System: |
Edmond #12 |
|
|
Country: (If noted) |
Land Size: |
0.1708 Acres |
||
|
Land Value: 24,180 |
|
|||
|
Sect 1-T13N-R3W Qtr SW |
BAKER
Block
001
Lot
014
|
|||
| Full Legal Description: BAKER 001 014 |
| Photo & Sketch (if available) | Comp Sales (ordered by relevancy) |
|
||||||||||||||||||
|
||||||||||||||||||||
| Value History (*The County Treasurer 405-713-1300 posts & collects actual tax amounts. Contact information HERE) | |||||||||||||
|---|---|---|---|---|---|---|---|---|---|---|---|---|---|
| Year | Market Value | Taxable Mkt Value | Gross Assessed | Exemption | Net Assessed | Millage | Est. Tax | Tax Savings | |||||
|
2026 |
223,500 |
193,901 |
21,328 |
0 |
21,328 |
105.16 |
$2,243 |
$342 |
|||||
|
2025 |
222,500 |
184,668 |
20,313 |
0 |
20,313 |
105.16 |
$2,136 |
$438 |
|||||
|
2024 |
214,000 |
175,875 |
19,346 |
0 |
19,346 |
105.03 |
$2,032 |
$440 |
|||||
|
2023 |
167,500 |
167,500 |
18,425 |
0 |
18,425 |
104.24 |
$1,921 |
$0 |
|||||
|
2022 |
177,500 |
114,601 |
12,606 |
2,000 |
10,606 |
104.64 |
$1,110 |
$933 |
|||||
| Property Account Status/Adjustments/Exemptions | ||
|---|---|---|
| Account # | Exemption Description | Amount |
|
R182011130 |
5% Capped Account |
0 |
| Property Deed Transaction History (Recorded in the County Clerk's Office) | |||||||
|---|---|---|---|---|---|---|---|
| Date | Type | Book | Page | Price | Grantor | Grantee | |
|
9/9/2022 |
|
Hmstd Off & |
$0 |
GREEN CAROLYN F TRS |
GREEN JEFFREY C SUCC TRS |
||
|
9/9/2022 |
|
Deeds |
$165,000 |
GREEN JEFFREY C SUCC TRS |
GIEGER HARRISON |
||
|
9/21/2004 |
|
Deeds |
$0 |
GREEN CAROLYN F |
GREEN CAROLYN F TRS |
||
|
1/15/2003 |
|
Deeds |
$0 |
GREEN GEORGE F & CAROLYN F |
GREEN CAROLYN F |
||
|
8/9/1974 |
|
Historical |
$0 |
L & W HOMES INC |
GREEN GEORGE F & CAROLYN F |
||
| Last Mailed Notice of Value (N.O.V.) Information/History | ||||||||
|---|---|---|---|---|---|---|---|---|
| Year | Date | Market Value | Taxable Market Value | Gross Assessed | Exemption | Net Assessed | ||
|
2026 |
02/23/2026 |
223,500 |
193,901 |
21,328 |
0 |
21,328 |
||
|
2025 |
02/14/2025 |
222,500 |
184,668 |
20,313 |
0 |
20,313 |
||
|
2024 |
02/13/2024 |
214,000 |
175,875 |
19,346 |
0 |
19,346 |
||
|
2023 |
02/14/2023 |
167,500 |
167,500 |
18,425 |
0 |
18,425 |
||
|
2022 |
03/15/2022 |
177,500 |
114,601 |
12,606 |
2,000 |
10,606 |
||
| Property Building Permit History | |||||||||||
|---|---|---|---|---|---|---|---|---|---|---|---|
| Issued | Permit # | Provided by | Bldg # | Description | Est Construction Cost | Status | |||||
| No Building Permit records returned. | |||||||||||
| Click button on building number to access detailed information: | ||||||
|---|---|---|---|---|---|---|
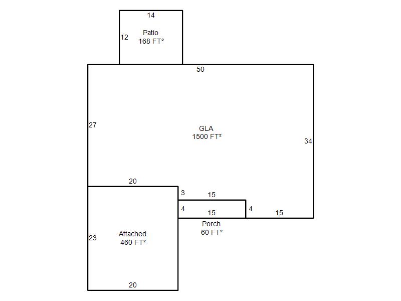
| Bldg # | Vacant/Improved Land | Bldg Description | Year Built | SqFt | # Stories | |
|
1 |
Improved |
Ranch 1 Story |
1974 |
1,500 |
1 Stories |
|