|
|
|
| Larry Stein Oklahoma County Assessor (405) 713-1200 - Public Access System |
|
|
|
|
|
|
| Real Property Display - Screen Produced 4/4/2026 3:04:26 AM | ||||
|---|---|---|---|---|
| Account: R182451155 | Type: Residential | Location: |
1825 KINGS RD |
|
| Building Name/Occupant: |
|
EDMOND |
||
| Owner Name 1: | SALDIVAR DENISE LARISA SERRANO |
Parcel PIN#: |
3605-18-245-1155 |
|
| Owner Name 2: | SOERENSEN TYLER | 1/4 section #: |
3605 |
|
| Owner Name 3: | Parent Acct: |
|
||
| Billing Address: | 1825 KINGS RD | Tax District: |
|
|
| City, State, Zip | EDMOND, OK 73013-4327 | School System: |
Edmond #12 |
|
|
Country: (If noted) |
Land Size: |
0.2514 Acres |
||
|
Land Value: 36,135 |
|
|||
|
Sect 2-T13N-R3W Qtr NE |
SOUTHWINDS
Block
005
Lot
004
|
|||
| Full Legal Description: SOUTHWINDS 005 004 |
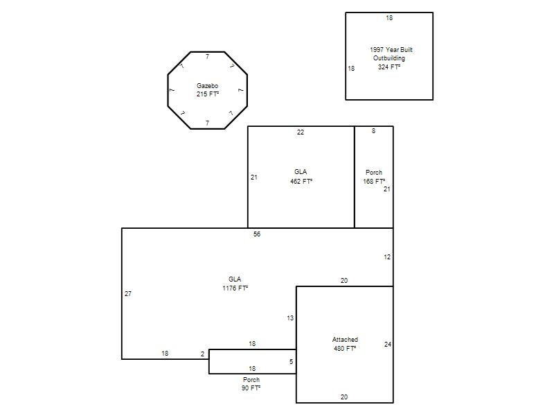
| Photo & Sketch (if available) | Comp Sales (ordered by relevancy) |
|
||||||||||||||||||
|
||||||||||||||||||||
| Value History (*The County Treasurer 405-713-1300 posts & collects actual tax amounts. Contact information HERE) | |||||||||||||
|---|---|---|---|---|---|---|---|---|---|---|---|---|---|
| Year | Market Value | Taxable Mkt Value | Gross Assessed | Exemption | Net Assessed | Millage | Est. Tax | Tax Savings | |||||
|
2026 |
233,500 |
233,500 |
25,685 |
1,000 |
24,685 |
105.16 |
$2,596 |
$105 |
|||||
|
2025 |
227,500 |
226,740 |
24,940 |
1,000 |
23,940 |
105.16 |
$2,518 |
$114 |
|||||
|
2024 |
223,000 |
220,136 |
24,214 |
1,000 |
23,214 |
105.03 |
$2,438 |
$138 |
|||||
|
2023 |
217,000 |
213,725 |
23,509 |
1,000 |
22,509 |
104.24 |
$2,346 |
$142 |
|||||
|
2022 |
207,500 |
207,500 |
22,825 |
1,000 |
21,825 |
104.64 |
$2,284 |
$105 |
|||||
| Property Account Status/Adjustments/Exemptions | ||
|---|---|---|
| Account # | Exemption Description | Amount |
|
R182451155 |
Homestead |
1,000 |
| Property Deed Transaction History (Recorded in the County Clerk's Office) | ||||||||||
|---|---|---|---|---|---|---|---|---|---|---|
| Date | Type | Book | Page | Price | Grantor | Grantee | ||||
|
7/31/2025 |
|
Deeds |
$240,000 |
MASSIMINI WILLIAM NICHOLAS |
SALDIVAR DENISE LARISA SERRANO |
|||||
|
6/3/2021 |
|
Deeds |
$210,000 |
NICKLAS GABRIELLE & RYAN |
MASSIMINI WILLIAM NICHOLAS |
|||||
|
8/28/2020 |
|
Deeds |
$186,000 |
DYKES DIANA K & ROBERT W |
NICKLAS GABRIELLE & RYAN |
|||||
|
8/13/2018 |
|
Deeds |
$0 |
DYKES DIANA K |
DYKES DIANA K & ROBERT W |
|||||
|
8/28/2003 |
|
Deeds |
$101,500 |
HUDMAN WILLIAM E & HELEN D TRS HUDMAN BILL & DOLORES REV TRU |
DYKES DIANA K |
|||||
| Last Mailed Notice of Value (N.O.V.) Information/History | ||||||||
|---|---|---|---|---|---|---|---|---|
| Year | Date | Market Value | Taxable Market Value | Gross Assessed | Exemption | Net Assessed | ||
|
2026 |
02/23/2026 |
233,500 |
233,500 |
25,685 |
0 |
25,685 |
||
|
2025 |
02/14/2025 |
227,500 |
226,740 |
24,940 |
1,000 |
23,940 |
||
|
2024 |
02/13/2024 |
223,000 |
220,136 |
24,214 |
1,000 |
23,214 |
||
|
2023 |
02/14/2023 |
217,000 |
213,725 |
23,509 |
1,000 |
22,509 |
||
|
2022 |
03/15/2022 |
207,500 |
207,500 |
22,825 |
1,000 |
21,825 |
||
| Property Building Permit History | |||||||||||
|---|---|---|---|---|---|---|---|---|---|---|---|
| Issued | Permit # | Provided by | Bldg # | Description | Est Construction Cost | Status | |||||
| No Building Permit records returned. | |||||||||||
| Click button on building number to access detailed information: | ||||||
|---|---|---|---|---|---|---|
| Bldg # | Vacant/Improved Land | Bldg Description | Year Built | SqFt | # Stories | |
|
1 |
Improved |
Ranch 1 Story |
1963 |
1,638 |
1 Stories |
|