|
|
|
| Larry Stein Oklahoma County Assessor (405) 713-1200 - Public Access System |
|
|
|
|
|
|
| Real Property Display - Screen Produced 4/4/2026 7:29:12 AM | ||||
|---|---|---|---|---|
| Account: R206441020 | Type: Residential | Location: |
1403 CONEFLOWER RD |
|
| Building Name/Occupant: |
|
EDMOND |
||
| Owner Name 1: | MAYHUE JOHN L |
Parcel PIN#: |
3610-20-644-1020 |
|
| Owner Name 2: | 1/4 section #: |
3610 |
||
| Owner Name 3: | Parent Acct: |
3610-16-851-1310 |
||
| Billing Address: | PO BOX 31652 | Tax District: |
|
|
| City, State, Zip | EDMOND, OK 73003 | School System: |
Edmond #12 |
|
|
Country: (If noted) |
Land Size: |
0.1980 Acres |
||
|
Land Value: 49,594 |
|
|||
|
Sect 3-T13N-R3W Qtr SE |
HIDDEN PRAIRIE AT KELLEY POINTE
Block
001
Lot
003
|
|||
| Full Legal Description: HIDDEN PRAIRIE AT KELLEY POINTE 001 003 |
| Photo & Sketch (if available) | Comp Sales (ordered by relevancy) |
|
||||||||||||||||||
|
||||||||||||||||||||
| Value History (*The County Treasurer 405-713-1300 posts & collects actual tax amounts. Contact information HERE) | |||||||||||||
|---|---|---|---|---|---|---|---|---|---|---|---|---|---|
| Year | Market Value | Taxable Mkt Value | Gross Assessed | Exemption | Net Assessed | Millage | Est. Tax | Tax Savings | |||||
|
2026 |
355,500 |
323,535 |
35,588 |
0 |
35,588 |
105.16 |
$3,743 |
$370 |
|||||
|
2025 |
363,000 |
308,129 |
33,894 |
0 |
33,894 |
105.16 |
$3,564 |
$635 |
|||||
|
2024 |
348,500 |
293,457 |
32,280 |
0 |
32,280 |
105.03 |
$3,390 |
$636 |
|||||
|
2023 |
349,000 |
279,483 |
30,742 |
0 |
30,742 |
104.24 |
$3,205 |
$797 |
|||||
|
2022 |
285,500 |
266,175 |
29,279 |
0 |
29,279 |
104.64 |
$3,064 |
$222 |
|||||
| Property Account Status/Adjustments/Exemptions | ||
|---|---|---|
| Account # | Exemption Description | Amount |
|
R206441020 |
5% Capped Account |
0 |
| Property Deed Transaction History (Recorded in the County Clerk's Office) | |||||||
|---|---|---|---|---|---|---|---|
| Date | Type | Book | Page | Price | Grantor | Grantee | |
|
10/14/2014 |
|
Deeds |
$197,500 |
TURNER TIMOTHY G & MELISSA A |
MAYHUE JOHN L |
||
|
7/24/2009 |
|
Hmstd Off & |
$0 |
FIRST STAR HOMES INC |
TURNER TIMOTHY G & MELISSA A |
||
|
11/20/2007 |
|
Mult Parcel |
$152,000 |
KELLEY POINTE DEV CO INC |
FIRST STAR HOMES INC |
||
| Last Mailed Notice of Value (N.O.V.) Information/History | ||||||||
|---|---|---|---|---|---|---|---|---|
| Year | Date | Market Value | Taxable Market Value | Gross Assessed | Exemption | Net Assessed | ||
|
2026 |
02/23/2026 |
355,500 |
323,535 |
35,588 |
0 |
35,588 |
||
|
2025 |
02/14/2025 |
363,000 |
308,129 |
33,894 |
0 |
33,894 |
||
|
2024 |
02/13/2024 |
348,500 |
293,457 |
32,280 |
0 |
32,280 |
||
|
2023 |
02/14/2023 |
349,000 |
279,483 |
30,742 |
0 |
30,742 |
||
|
2022 |
03/15/2022 |
285,500 |
266,175 |
29,279 |
0 |
29,279 |
||
| Property Building Permit History | ||||||
|---|---|---|---|---|---|---|
| Issued | Permit # | Provided by | Bldg # | Description | Est Construction Cost | Status |
|
8/30/2009 |
10385640 |
EDMOND |
1 |
Main Dwellin |
230,000 |
Inactive |
| Click button on building number to access detailed information: | ||||||
|---|---|---|---|---|---|---|
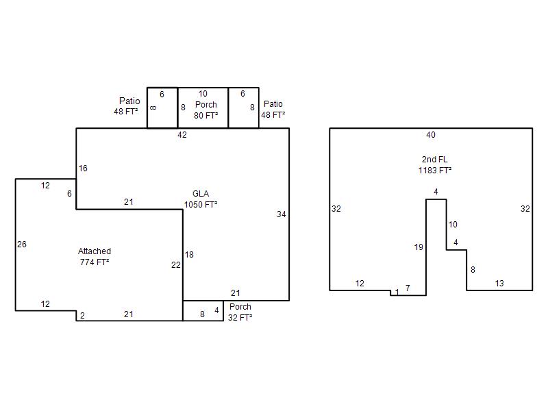
| Bldg # | Vacant/Improved Land | Bldg Description | Year Built | SqFt | # Stories | |
|
1 |
Improved |
2 Story |
2009 |
2,233 |
2 Stories |
|