|
|
|
| Larry Stein Oklahoma County Assessor (405) 713-1200 - Public Access System |
|
|
|
|
|
|
| Real Property Display - Screen Produced 4/25/2026 1:37:05 PM | ||||
|---|---|---|---|---|
| Account: R267141000 | Type: Commercial | Location: |
20912 SE 29TH ST |
|
| Building Name/Occupant: |
LAKEPOINT PLAZA |
HARRAH |
||
| Owner Name 1: | GSM PROPERTIES LLC |
Parcel PIN#: |
1053-26-714-1000 |
|
| Owner Name 2: | 1/4 section #: |
1053 |
||
| Owner Name 3: | Parent Acct: |
|
||
| Billing Address: | PO BOX 1161 | Tax District: |
|
|
| City, State, Zip | MCLOUD, OK 74851 | School System: |
Harrah #7 |
|
|
Country: (If noted) |
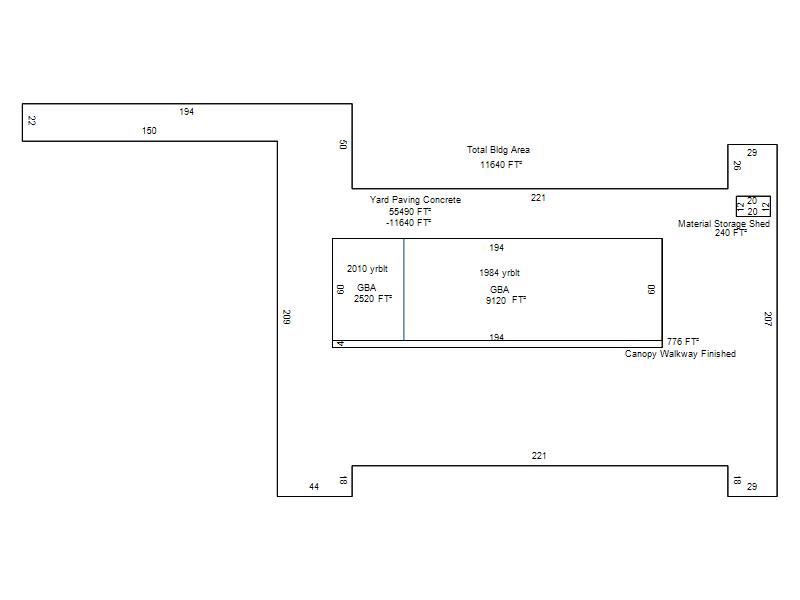
Land Size: |
53,989.0000 Square Feet |
||
|
Land Value: 170,065 |
|
|||
|
Sect 14-T11N-R1E Qtr NE |
POTTAWATOMIE TOWNSHIP
Block
000
Lot
000
|
|||
| Full Legal Description: POTTAWATOMIE TOWNSHIP PT NE4 SEC 14 11N 1E BEG 200FT W OF NE/C NE4 TH W299.94FT S220FT E299.94FT N220FT TO BEG SUBJ TO ESMTS OF RECORD |
| No comparable sales report available. | ||||||||||||||||||||||
|
||||||||||||||||||||||
| Value History (*The County Treasurer 405-713-1300 posts & collects actual tax amounts. Contact information HERE) | |||||||||||||
|---|---|---|---|---|---|---|---|---|---|---|---|---|---|
| Year | Market Value | Taxable Mkt Value | Gross Assessed | Exemption | Net Assessed | Millage | Est. Tax | Tax Savings | |||||
|
2026 |
1,153,000 |
418,742 |
46,061 |
0 |
46,061 |
107.54 |
$4,953 |
$8,686 |
|||||
|
2025 |
691,733 |
398,802 |
43,867 |
0 |
43,867 |
107.54 |
$4,718 |
$3,465 |
|||||
|
2024 |
691,733 |
379,812 |
41,778 |
0 |
41,778 |
110.62 |
$4,622 |
$3,796 |
|||||
| Property Account Status/Adjustments/Exemptions | ||
|---|---|---|
| Account # | Exemption Description | Amount |
|
R267141000 |
5% Capped Account |
0 |
| Property Deed Transaction History (Recorded in the County Clerk's Office) | |||||||
|---|---|---|---|---|---|---|---|
| Date | Type | Book | Page | Price | Grantor | Grantee | |
|
6/9/2004 |
|
Deeds |
$550,000 |
GERS PATTYE OWEN HARRISON |
GSM PROPERTIES LLC |
||
|
5/7/1996 |
|
Historical |
$0 |
GERS JACK L |
GERS PATTYE OWEN HARRISON |
||
|
4/1/1986 |
|
Historical |
$0 |
|
GERS JACK L |
||
| Last Mailed Notice of Value (N.O.V.) Information/History | ||||||||
|---|---|---|---|---|---|---|---|---|
| Year | Date | Market Value | Taxable Market Value | Gross Assessed | Exemption | Net Assessed | ||
|
2026 |
03/23/2026 |
1,153,000 |
418,742 |
46,061 |
0 |
46,061 |
||
|
2025 |
03/14/2025 |
691,733 |
398,802 |
43,867 |
0 |
43,867 |
||
|
2024 |
03/12/2024 |
691,733 |
379,812 |
41,778 |
0 |
41,778 |
||
| Property Building Permit History | ||||||
|---|---|---|---|---|---|---|
| Issued | Permit # | Provided by | Bldg # | Description | Est Construction Cost | Status |
|
7/26/2010 |
10406013 |
HARRAH |
1 |
Remodeled |
20,000 |
Inactive |
|
1/23/2009 |
10371920 |
HARRAH |
1 |
Add On |
230,000 |
Inactive |
| Click button below to access detailed information and additional property photos: | ||||||
|---|---|---|---|---|---|---|
| Bldg # | Vacant/Improved Land | Bldg Description | Year Built | SqFt | # Stories | |
|
1 |
Improved |
Neighborhood Shopping Center |
1986 |
11,640 |
1 Stories |
|