|
|
|
| Larry Stein Oklahoma County Assessor (405) 713-1200 - Public Access System |
|
|
|
|
|
|
| Real Property Display - Screen Produced 4/2/2026 7:17:53 AM | ||||
|---|---|---|---|---|
| Account: R123701200 | Type: Residential | Location: |
2209 SUMMER HOLLOW LN |
|
| Building Name/Occupant: |
|
EDMOND |
||
| Owner Name 1: | POWELL WESTON A |
Parcel PIN#: |
3611-12-370-1200 |
|
| Owner Name 2: | 1/4 section #: |
3611 |
||
| Owner Name 3: | Parent Acct: |
|
||
| Billing Address: | 2209 SUMMER HOLLOW LN | Tax District: |
|
|
| City, State, Zip | EDMOND , OK 73013 | School System: |
Edmond #12 |
|
|
Country: (If noted) |
Land Size: |
0.1507 Acres |
||
|
Land Value: 35,779 |
|
|||
|
Sect 3-T13N-R3W Qtr SW |
SUMMER OAKS 2ND
Block
006
Lot
021
|
|||
| Full Legal Description: SUMMER OAKS 2ND 006 021 |
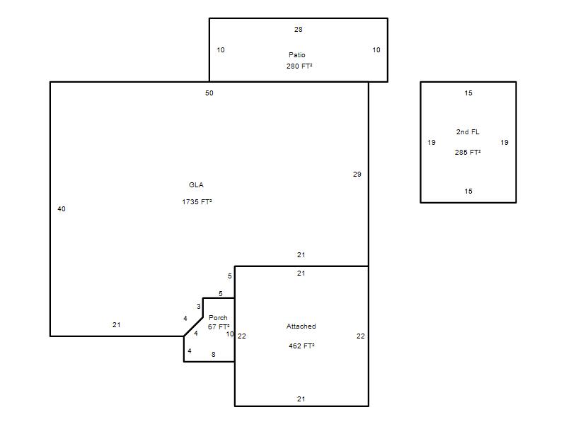
| Photo & Sketch (if available) | Comp Sales (ordered by relevancy) |
|
||||||||||||||||||
|
||||||||||||||||||||
| Value History (*The County Treasurer 405-713-1300 posts & collects actual tax amounts. Contact information HERE) | |||||||||||||
|---|---|---|---|---|---|---|---|---|---|---|---|---|---|
| Year | Market Value | Taxable Mkt Value | Gross Assessed | Exemption | Net Assessed | Millage | Est. Tax | Tax Savings | |||||
|
2026 |
266,000 |
246,746 |
27,141 |
0 |
27,141 |
105.16 |
$2,854 |
$223 |
|||||
|
2025 |
260,500 |
234,997 |
25,848 |
0 |
25,848 |
105.16 |
$2,718 |
$295 |
|||||
|
2024 |
255,500 |
223,807 |
24,618 |
0 |
24,618 |
105.03 |
$2,586 |
$366 |
|||||
|
2023 |
242,500 |
213,150 |
23,446 |
0 |
23,446 |
104.24 |
$2,444 |
$337 |
|||||
|
2022 |
203,000 |
203,000 |
22,330 |
0 |
22,330 |
104.64 |
$2,337 |
$0 |
|||||
| Property Account Status/Adjustments/Exemptions | ||
|---|---|---|
| Account # | Exemption Description | Amount |
|
R123701200 |
5% Capped Account |
0 |
| Property Deed Transaction History (Recorded in the County Clerk's Office) | ||||||||||
|---|---|---|---|---|---|---|---|---|---|---|
| Date | Type | Book | Page | Price | Grantor | Grantee | ||||
|
8/28/2020 |
|
Deeds |
$202,000 |
COMMERCE COMET LLC |
POWELL WESTON A |
|||||
|
5/22/2015 |
|
Mult Parcel |
$318,000 |
ARA LP |
COMMERCE COMET LLC |
|||||
|
12/31/2002 |
|
Other |
$0 |
ANDERSON RICHARD T & IMOZELLE F |
ARA LP |
|||||
|
12/18/2001 |
|
Deeds |
$114,000 |
VANHORN GARY A & JANICE S |
ANDERSON RICHARD T & IMOZELLE F |
|||||
|
8/31/2001 |
|
Deeds |
$87,000 |
CASTLEBERRY SALLY H |
VANHORN GARY A & JANICE S |
|||||
| Last Mailed Notice of Value (N.O.V.) Information/History | ||||||||
|---|---|---|---|---|---|---|---|---|
| Year | Date | Market Value | Taxable Market Value | Gross Assessed | Exemption | Net Assessed | ||
|
2026 |
02/23/2026 |
266,000 |
246,746 |
27,141 |
0 |
27,141 |
||
|
2025 |
02/14/2025 |
260,500 |
234,997 |
25,848 |
0 |
25,848 |
||
|
2024 |
02/13/2024 |
255,500 |
223,807 |
24,618 |
0 |
24,618 |
||
|
2023 |
02/14/2023 |
242,500 |
213,150 |
23,446 |
0 |
23,446 |
||
|
2022 |
03/15/2022 |
203,000 |
203,000 |
22,330 |
0 |
22,330 |
||
| Property Building Permit History | |||||||||||
|---|---|---|---|---|---|---|---|---|---|---|---|
| Issued | Permit # | Provided by | Bldg # | Description | Est Construction Cost | Status | |||||
| No Building Permit records returned. | |||||||||||
| Click button on building number to access detailed information: | ||||||
|---|---|---|---|---|---|---|
| Bldg # | Vacant/Improved Land | Bldg Description | Year Built | SqFt | # Stories | |
|
1 |
Improved |
1½ Story Fin |
1989 |
2,020 |
1.5 Stories |
|