|
|
|
| Larry Stein Oklahoma County Assessor (405) 713-1200 - Public Access System |
|
|
|
|
|
|
| Real Property Display - Screen Produced 4/9/2026 8:00:39 AM | ||||
|---|---|---|---|---|
| Account: R123701560 | Type: Residential | Location: |
2004 SAGEWOOD DR |
|
| Building Name/Occupant: |
|
EDMOND |
||
| Owner Name 1: | ALFARO JOHJAN MAYEN |
Parcel PIN#: |
3611-12-370-1560 |
|
| Owner Name 2: | MAYEN KRYSTAL | 1/4 section #: |
3611 |
|
| Owner Name 3: | MORALES SALVADOR DAVILA | Parent Acct: |
|
|
| Billing Address: | 2004 SAGEWOOD DR | Tax District: |
|
|
| City, State, Zip | EDMOND, OK 73013-2830 | School System: |
Edmond #12 |
|
|
Country: (If noted) |
Land Size: |
0.1627 Acres |
||
|
Land Value: 38,613 |
|
|||
|
Sect 3-T13N-R3W Qtr SW |
SUMMER OAKS 2ND
Block
009
Lot
005
|
|||
| Full Legal Description: SUMMER OAKS 2ND 009 005 |
| Photo & Sketch (if available) | Comp Sales (ordered by relevancy) |
|
||||||||||||||||||
|
||||||||||||||||||||
| Value History (*The County Treasurer 405-713-1300 posts & collects actual tax amounts. Contact information HERE) | |||||||||||||
|---|---|---|---|---|---|---|---|---|---|---|---|---|---|
| Year | Market Value | Taxable Mkt Value | Gross Assessed | Exemption | Net Assessed | Millage | Est. Tax | Tax Savings | |||||
|
2026 |
254,500 |
254,500 |
27,995 |
0 |
27,995 |
105.16 |
$2,944 |
$0 |
|||||
|
2025 |
250,000 |
206,635 |
22,729 |
0 |
22,729 |
105.16 |
$2,390 |
$502 |
|||||
|
2024 |
245,000 |
196,796 |
21,646 |
0 |
21,646 |
105.03 |
$2,274 |
$557 |
|||||
|
2023 |
233,000 |
187,425 |
20,616 |
0 |
20,616 |
104.24 |
$2,149 |
$523 |
|||||
|
2022 |
196,000 |
178,500 |
19,635 |
0 |
19,635 |
104.64 |
$2,055 |
$201 |
|||||
| Property Account Status/Adjustments/Exemptions | ||||||
|---|---|---|---|---|---|---|
| Account # | Exemption Description | Amount | ||||
| No adjustment/exemption records returned. | ||||||
| Property Deed Transaction History (Recorded in the County Clerk's Office) | ||||||||||
|---|---|---|---|---|---|---|---|---|---|---|
| Date | Type | Book | Page | Price | Grantor | Grantee | ||||
|
6/17/2025 |
|
Deeds |
$255,000 |
SMITH STEPHEN K & CNTHIA K REV TRUST |
ALFARO JOHJAN MAYEN |
|||||
|
4/1/2019 |
|
Hmstd Off & |
$0 |
SMITH STEVE |
SMITH STEPHEN K & CNTHIA K REV TRUST |
|||||
|
10/30/2018 |
|
Deeds |
$151,000 |
OK HOME RENTALS A SERIES LLC |
SMITH STEVE |
|||||
|
12/9/2011 |
|
Hmstd Off & |
$0 |
OK RENTALS |
OK HOME RENTALS A SERIES LLC |
|||||
|
8/24/2006 |
|
Other |
$0 |
PANDO GERALD O |
OK RENTALS |
|||||
| Last Mailed Notice of Value (N.O.V.) Information/History | ||||||||
|---|---|---|---|---|---|---|---|---|
| Year | Date | Market Value | Taxable Market Value | Gross Assessed | Exemption | Net Assessed | ||
|
2026 |
02/23/2026 |
254,500 |
254,500 |
27,995 |
0 |
27,995 |
||
|
2025 |
02/14/2025 |
250,000 |
206,635 |
22,729 |
0 |
22,729 |
||
|
2024 |
02/13/2024 |
245,000 |
196,796 |
21,646 |
0 |
21,646 |
||
|
2023 |
02/14/2023 |
233,000 |
187,425 |
20,616 |
0 |
20,616 |
||
|
2022 |
03/15/2022 |
196,000 |
178,500 |
19,635 |
0 |
19,635 |
||
| Property Building Permit History | ||||||
|---|---|---|---|---|---|---|
| Issued | Permit # | Provided by | Bldg # | Description | Est Construction Cost | Status |
|
9/1/1996 |
10210500 |
EDMOND |
1 |
Main Dwellin |
97,000 |
Inactive |
| Click button on building number to access detailed information: | ||||||
|---|---|---|---|---|---|---|
| Bldg # | Vacant/Improved Land | Bldg Description | Year Built | SqFt | # Stories | |
|
1 |
Improved |
Ranch 1 Story |
1997 |
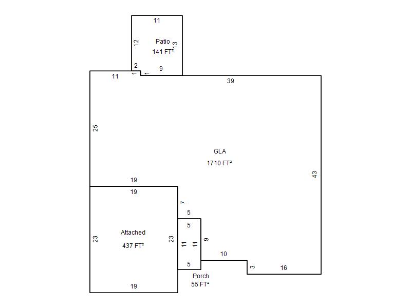
1,710 |
1 Stories |
|