|
|
|
| Larry Stein Oklahoma County Assessor (405) 713-1200 - Public Access System |
|
|
|
|
|
|
| Real Property Display - Screen Produced 4/2/2026 10:00:01 AM | ||||
|---|---|---|---|---|
| Account: R205311270 | Type: Residential | Location: |
15816 SAN NICOLAS DR |
|
| Building Name/Occupant: |
|
OKLAHOMA CITY |
||
| Owner Name 1: | STRINGER JERALD D & JOANN TRS |
Parcel PIN#: |
3620-20-531-1270 |
|
| Owner Name 2: | STRINGER FAMILY TRUST | 1/4 section #: |
3620 |
|
| Owner Name 3: | Parent Acct: |
3620-14-400-5015 |
||
| Billing Address: | 1008 MAC DR | Tax District: |
|
|
| City, State, Zip | ELK CITY , OK 73644 | School System: |
Edmond #12 |
|
|
Country: (If noted) |
Land Size: |
0.1338 Acres |
||
|
Land Value: 48,389 |
|
|||
|
Sect 5-T13N-R3W Qtr NW |
SONOMA LAKE PHASE II
Block
005
Lot
028
|
|||
| Full Legal Description: SONOMA LAKE PHASE II 005 028 |
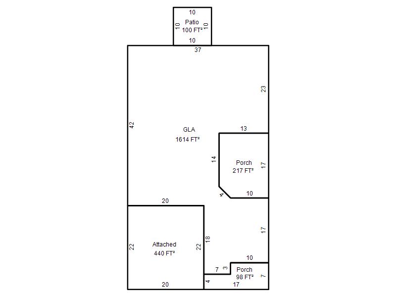
| Photo & Sketch (if available) | Comp Sales (ordered by relevancy) |
|
||||||||||||||||||
|
||||||||||||||||||||
| Value History (*The County Treasurer 405-713-1300 posts & collects actual tax amounts. Contact information HERE) | |||||||||||||
|---|---|---|---|---|---|---|---|---|---|---|---|---|---|
| Year | Market Value | Taxable Mkt Value | Gross Assessed | Exemption | Net Assessed | Millage | Est. Tax | Tax Savings | |||||
|
2026 |
273,500 |
245,045 |
26,954 |
0 |
26,954 |
120.32 |
$3,243 |
$377 |
|||||
|
2025 |
266,000 |
233,377 |
25,671 |
0 |
25,671 |
120.32 |
$3,089 |
$432 |
|||||
|
2024 |
261,500 |
222,264 |
24,448 |
0 |
24,448 |
119.96 |
$2,933 |
$518 |
|||||
|
2023 |
249,500 |
211,680 |
23,284 |
0 |
23,284 |
119.02 |
$2,771 |
$495 |
|||||
|
2022 |
220,000 |
201,600 |
22,176 |
0 |
22,176 |
120.10 |
$2,663 |
$243 |
|||||
| Property Account Status/Adjustments/Exemptions | ||
|---|---|---|
| Account # | Exemption Description | Amount |
|
R205311270 |
5% Capped Account |
0 |
| Property Deed Transaction History (Recorded in the County Clerk's Office) | |||||||
|---|---|---|---|---|---|---|---|
| Date | Type | Book | Page | Price | Grantor | Grantee | |
|
8/20/2019 |
|
Hmstd Off & |
$0 |
STRINGER JERALD D & JO ANN |
STRINGER JERALD D & JOANN TRS |
||
|
2/24/2017 |
|
Deeds |
$175,000 |
JERNIGAN CLAUDIA |
STRINGER JERALD D & JO ANN |
||
|
6/26/2013 |
|
Deeds |
$168,000 |
KELLER SANDRA |
JERNIGAN CLAUDIA |
||
|
10/31/2005 |
|
Deeds |
$164,500 |
BRIDGEPORT DEVELOPMENT GROUP LLC |
KELLER SANDRA |
||
|
6/14/2005 |
|
Deeds |
$26,500 |
SONOMA LAKE LLC MURRAY DONNA TRS |
BRIDGEPORT DEVELOPMENT GROUP LLC |
||
| Last Mailed Notice of Value (N.O.V.) Information/History | ||||||||
|---|---|---|---|---|---|---|---|---|
| Year | Date | Market Value | Taxable Market Value | Gross Assessed | Exemption | Net Assessed | ||
|
2026 |
02/23/2026 |
273,500 |
245,045 |
26,954 |
0 |
26,954 |
||
|
2025 |
02/14/2025 |
266,000 |
233,377 |
25,671 |
0 |
25,671 |
||
|
2024 |
02/13/2024 |
261,500 |
222,264 |
24,448 |
0 |
24,448 |
||
|
2023 |
02/14/2023 |
249,500 |
211,680 |
23,284 |
0 |
23,284 |
||
|
2022 |
03/15/2022 |
220,000 |
201,600 |
22,176 |
0 |
22,176 |
||
| Property Building Permit History | ||||||
|---|---|---|---|---|---|---|
| Issued | Permit # | Provided by | Bldg # | Description | Est Construction Cost | Status |
|
6/9/2005 |
10308648 |
OKLAHOMA CITY |
1 |
Main Dwellin |
165,000 |
Inactive |
| Click button on building number to access detailed information: | ||||||
|---|---|---|---|---|---|---|
| Bldg # | Vacant/Improved Land | Bldg Description | Year Built | SqFt | # Stories | |
|
1 |
Improved |
Ranch 1 Story |
2005 |
1,614 |
1 Stories |
|