|
|
|
| Larry Stein Oklahoma County Assessor (405) 713-1200 - Public Access System |
|
|
|
|
|
|
| Real Property Display - Screen Produced 4/4/2026 5:36:02 AM | ||||
|---|---|---|---|---|
| Account: R202271610 | Type: Residential | Location: |
2420 NW 162ND ST |
|
| Building Name/Occupant: |
|
OKLAHOMA CITY |
||
| Owner Name 1: | MOHAMADI REAL ESTATE INVESTMENTS LLC |
Parcel PIN#: |
3621-20-227-1610 |
|
| Owner Name 2: | 1/4 section #: |
3621 |
||
| Owner Name 3: | Parent Acct: |
3621-14-053-3010 |
||
| Billing Address: | 6715 NW GRAND BLVD | Tax District: |
|
|
| City, State, Zip | NICHOLS HILLS, OK 73116-6014 | School System: |
Edmond #12 |
|
|
Country: (If noted) |
Land Size: |
0.1389 Acres |
||
|
Land Value: 32,368 |
|
|||
|
Sect 6-T13N-R3W Qtr NE |
SEMINOLE POINTE SEC 9
Block
043
Lot
004
|
|||
| Full Legal Description: SEMINOLE POINTE SEC 9 043 004 |
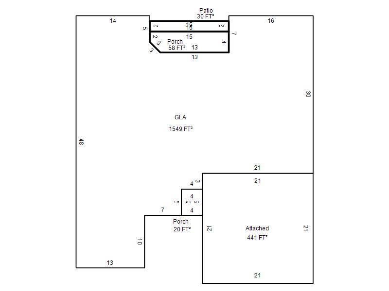
| Photo & Sketch (if available) | Comp Sales (ordered by relevancy) |
|
||||||||||||||||||
|
||||||||||||||||||||
| Value History (*The County Treasurer 405-713-1300 posts & collects actual tax amounts. Contact information HERE) | |||||||||||||
|---|---|---|---|---|---|---|---|---|---|---|---|---|---|
| Year | Market Value | Taxable Mkt Value | Gross Assessed | Exemption | Net Assessed | Millage | Est. Tax | Tax Savings | |||||
|
2026 |
245,000 |
207,042 |
22,774 |
0 |
22,774 |
120.32 |
$2,740 |
$502 |
|||||
|
2025 |
240,500 |
197,183 |
21,689 |
0 |
21,689 |
120.32 |
$2,610 |
$573 |
|||||
|
2024 |
236,500 |
187,794 |
20,656 |
0 |
20,656 |
119.96 |
$2,478 |
$643 |
|||||
|
2023 |
223,000 |
178,852 |
19,672 |
0 |
19,672 |
119.02 |
$2,342 |
$578 |
|||||
|
2022 |
203,000 |
170,336 |
18,736 |
0 |
18,736 |
120.10 |
$2,250 |
$432 |
|||||
| Property Account Status/Adjustments/Exemptions | ||
|---|---|---|
| Account # | Exemption Description | Amount |
|
R202271610 |
5% Capped Account |
0 |
| Property Deed Transaction History (Recorded in the County Clerk's Office) | ||||||||||
|---|---|---|---|---|---|---|---|---|---|---|
| Date | Type | Book | Page | Price | Grantor | Grantee | ||||
|
2/24/2016 |
|
Hmstd Off & |
$0 |
MOHAMADI MONIREH |
MOHAMADI REAL ESTATE INVESTMENTS LLC |
|||||
|
11/19/2014 |
|
Deeds |
$158,500 |
OSHIRO KAMI |
MOHAMADI MONIREH |
|||||
|
2/26/2010 |
|
Deeds |
$147,500 |
CROTTS JUSTIN M & CASSANDRA |
OSHIRO KAMI |
|||||
|
4/14/2006 |
|
Deeds |
$138,000 |
FARMER STEPHEN K |
CROTTS JUSTIN M & CASSANDRA |
|||||
|
8/24/2005 |
|
Deeds |
$134,000 |
SOULEK BRENT J & CASEY M |
FARMER STEPHEN K |
|||||
| Last Mailed Notice of Value (N.O.V.) Information/History | ||||||||
|---|---|---|---|---|---|---|---|---|
| Year | Date | Market Value | Taxable Market Value | Gross Assessed | Exemption | Net Assessed | ||
|
2026 |
02/23/2026 |
245,000 |
207,042 |
22,774 |
0 |
22,774 |
||
|
2025 |
02/14/2025 |
240,500 |
197,183 |
21,689 |
0 |
21,689 |
||
|
2024 |
02/13/2024 |
236,500 |
187,794 |
20,656 |
0 |
20,656 |
||
|
2023 |
02/14/2023 |
223,000 |
178,852 |
19,672 |
0 |
19,672 |
||
|
2022 |
03/15/2022 |
203,000 |
170,336 |
18,736 |
0 |
18,736 |
||
| Property Building Permit History | ||||||
|---|---|---|---|---|---|---|
| Issued | Permit # | Provided by | Bldg # | Description | Est Construction Cost | Status |
|
1/7/2002 |
10273732 |
OKLAHOMA CITY |
1 |
Main Dwellin |
94,000 |
Inactive |
| Click button on building number to access detailed information: | ||||||
|---|---|---|---|---|---|---|
| Bldg # | Vacant/Improved Land | Bldg Description | Year Built | SqFt | # Stories | |
|
1 |
Improved |
Ranch 1 Story |
2002 |
1,549 |
1 Stories |
|