|
|
|
| Larry Stein Oklahoma County Assessor (405) 713-1200 - Public Access System |
|
|
|
|
|
|
| Real Property Display - Screen Produced 4/4/2026 11:17:42 AM | ||||
|---|---|---|---|---|
| Account: R208281110 | Type: Residential | Location: |
2333 NW 158TH ST |
|
| Building Name/Occupant: |
|
OKLAHOMA CITY |
||
| Owner Name 1: | COOPER FREDERICK L |
Parcel PIN#: |
3621-20-828-1110 |
|
| Owner Name 2: | 1/4 section #: |
3621 |
||
| Owner Name 3: | Parent Acct: |
3622-14-053-3950 |
||
| Billing Address: | 2333 NW 158TH ST | Tax District: |
|
|
| City, State, Zip | EDMOND, OK 73013-9764 | School System: |
Edmond #12 |
|
|
Country: (If noted) |
Land Size: |
0.1515 Acres |
||
|
Land Value: 34,980 |
|
|||
|
Sect 6-T13N-R3W Qtr NE |
NORTHAMPTON SEC II
Block
006
Lot
012
|
|||
| Full Legal Description: NORTHAMPTON SEC II 006 012 |
| Photo & Sketch (if available) | Comp Sales (ordered by relevancy) |
|
||||||||||||||||||
|
||||||||||||||||||||
| Value History (*The County Treasurer 405-713-1300 posts & collects actual tax amounts. Contact information HERE) | |||||||||||||
|---|---|---|---|---|---|---|---|---|---|---|---|---|---|
| Year | Market Value | Taxable Mkt Value | Gross Assessed | Exemption | Net Assessed | Millage | Est. Tax | Tax Savings | |||||
|
2026 |
255,500 |
205,374 |
22,590 |
1,000 |
21,590 |
120.32 |
$2,598 |
$784 |
|||||
|
2025 |
251,500 |
199,393 |
21,932 |
1,000 |
20,932 |
120.32 |
$2,519 |
$810 |
|||||
|
2024 |
247,500 |
193,586 |
21,294 |
1,000 |
20,294 |
119.96 |
$2,435 |
$831 |
|||||
|
2023 |
238,500 |
187,948 |
20,674 |
1,000 |
19,674 |
119.02 |
$2,342 |
$781 |
|||||
|
2022 |
208,500 |
182,474 |
20,071 |
1,000 |
19,071 |
120.10 |
$2,291 |
$464 |
|||||
| Property Account Status/Adjustments/Exemptions | ||
|---|---|---|
| Account # | Exemption Description | Amount |
|
R208281110 |
3% Cap Homestead |
0 |
|
R208281110 |
Homestead |
1,000 |
| Property Deed Transaction History (Recorded in the County Clerk's Office) | |||||||
|---|---|---|---|---|---|---|---|
| Date | Type | Book | Page | Price | Grantor | Grantee | |
|
3/30/2016 |
|
Deeds |
$183,000 |
MOLL JOSHUA CAIRNS HEATH K SR |
COOPER FREDERICK L |
||
|
6/30/2008 |
|
Deeds |
$145,500 |
D R HORTON TEXAS LTD |
MOLL JOSHUA CAIRNS HEATH K SR |
||
|
1/28/2008 |
|
Mult Parcel |
$223,500 |
MCMD LLC |
D R HORTON TEXAS LTD |
||
| Last Mailed Notice of Value (N.O.V.) Information/History | ||||||||
|---|---|---|---|---|---|---|---|---|
| Year | Date | Market Value | Taxable Market Value | Gross Assessed | Exemption | Net Assessed | ||
|
2026 |
02/23/2026 |
255,500 |
205,374 |
22,590 |
1,000 |
21,590 |
||
|
2025 |
02/14/2025 |
251,500 |
199,393 |
21,932 |
1,000 |
20,932 |
||
|
2024 |
02/13/2024 |
247,500 |
193,586 |
21,294 |
1,000 |
20,294 |
||
|
2023 |
02/14/2023 |
238,500 |
187,948 |
20,674 |
1,000 |
19,674 |
||
|
2022 |
03/15/2022 |
208,500 |
182,474 |
20,071 |
1,000 |
19,071 |
||
| Property Building Permit History | ||||||
|---|---|---|---|---|---|---|
| Issued | Permit # | Provided by | Bldg # | Description | Est Construction Cost | Status |
|
2/29/2008 |
10352689 |
MIDWEST CITY |
1 |
Main Dwellin |
147,000 |
Inactive |
| Click button on building number to access detailed information: | ||||||
|---|---|---|---|---|---|---|
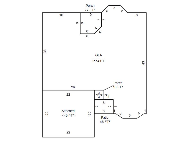
| Bldg # | Vacant/Improved Land | Bldg Description | Year Built | SqFt | # Stories | |
|
1 |
Improved |
Ranch 1 Story |
2008 |
1,574 |
1 Stories |
|