|
|
|
| Larry Stein Oklahoma County Assessor (405) 713-1200 - Public Access System |
|
|
|
|
|
|
| Real Property Display - Screen Produced 4/5/2026 4:41:55 AM | ||||
|---|---|---|---|---|
| Account: R201331220 | Type: Residential | Location: |
15812 HIMALAYA RDG |
|
| Building Name/Occupant: |
|
OKLAHOMA CITY |
||
| Owner Name 1: | STRONG LESIA G |
Parcel PIN#: |
3623-20-133-1220 |
|
| Owner Name 2: | 1/4 section #: |
3623 |
||
| Owner Name 3: | Parent Acct: |
3623-14-053-6300 |
||
| Billing Address: | 15812 HIMALAYA RDG | Tax District: |
|
|
| City, State, Zip | EDMOND, OK 73013-8882 | School System: |
Edmond #12 |
|
|
Country: (If noted) |
Land Size: |
0.2542 Acres |
||
|
Land Value: 52,440 |
|
|||
|
Sect 6-T13N-R3W Qtr SW |
BLUE QUAIL RIDGE 3RD
Block
016
Lot
003
|
|||
| Full Legal Description: BLUE QUAIL RIDGE 3RD 016 003 |
| Photo & Sketch (if available) | Comp Sales (ordered by relevancy) |
|
||||||||||||||||||
|
||||||||||||||||||||
| Value History (*The County Treasurer 405-713-1300 posts & collects actual tax amounts. Contact information HERE) | |||||||||||||
|---|---|---|---|---|---|---|---|---|---|---|---|---|---|
| Year | Market Value | Taxable Mkt Value | Gross Assessed | Exemption | Net Assessed | Millage | Est. Tax | Tax Savings | |||||
|
2026 |
344,000 |
266,868 |
29,355 |
1,000 |
28,355 |
120.32 |
$3,412 |
$1,141 |
|||||
|
2025 |
335,500 |
259,096 |
28,500 |
1,000 |
27,500 |
120.32 |
$3,309 |
$1,132 |
|||||
|
2024 |
320,000 |
251,550 |
27,669 |
1,000 |
26,669 |
119.96 |
$3,199 |
$1,023 |
|||||
|
2023 |
305,500 |
244,224 |
26,864 |
1,000 |
25,864 |
119.02 |
$3,078 |
$921 |
|||||
|
2022 |
266,000 |
237,111 |
26,081 |
1,000 |
25,081 |
120.10 |
$3,012 |
$502 |
|||||
| Property Account Status/Adjustments/Exemptions | ||
|---|---|---|
| Account # | Exemption Description | Amount |
|
R201331220 |
3% Cap Homestead |
0 |
|
R201331220 |
Homestead |
1,000 |
| Property Deed Transaction History (Recorded in the County Clerk's Office) | |||||||
|---|---|---|---|---|---|---|---|
| Date | Type | Book | Page | Price | Grantor | Grantee | |
|
5/11/2005 |
|
Deeds |
$0 |
STRONG LESIA G & IONA J |
STRONG LESIA G |
||
|
1/22/2001 |
|
Deeds |
$159,500 |
DAVID A MUNSELL INC |
STRONG LESIA G & IONA J |
||
|
4/26/2000 |
|
Deeds |
$24,000 |
BLUE QUAIL RIDGE COMPANY LTD |
DAVID A MUNSELL INC |
||
| Last Mailed Notice of Value (N.O.V.) Information/History | ||||||||
|---|---|---|---|---|---|---|---|---|
| Year | Date | Market Value | Taxable Market Value | Gross Assessed | Exemption | Net Assessed | ||
|
2026 |
02/23/2026 |
344,000 |
266,868 |
29,355 |
1,000 |
28,355 |
||
|
2025 |
02/14/2025 |
335,500 |
259,096 |
28,500 |
1,000 |
27,500 |
||
|
2024 |
02/13/2024 |
320,000 |
251,550 |
27,669 |
1,000 |
26,669 |
||
|
2023 |
02/14/2023 |
305,500 |
244,224 |
26,864 |
1,000 |
25,864 |
||
|
2022 |
03/15/2022 |
266,000 |
237,111 |
26,081 |
1,000 |
25,081 |
||
| Property Building Permit History | ||||||
|---|---|---|---|---|---|---|
| Issued | Permit # | Provided by | Bldg # | Description | Est Construction Cost | Status |
|
5/15/2000 |
10269925 |
OKLAHOMA CITY |
1 |
Main Dwellin |
160,000 |
Inactive |
| Click button on building number to access detailed information: | ||||||
|---|---|---|---|---|---|---|
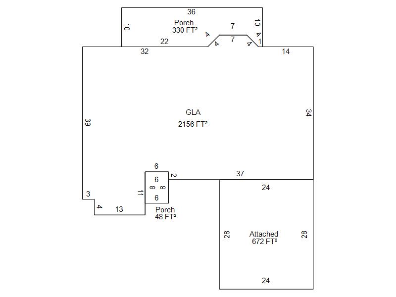
| Bldg # | Vacant/Improved Land | Bldg Description | Year Built | SqFt | # Stories | |
|
1 |
Improved |
Ranch 1 Story |
2000 |
2,156 |
1 Stories |
|