|
|
|
| Larry Stein Oklahoma County Assessor (405) 713-1200 - Public Access System |
|
|
|
|
|
|
| Real Property Display - Screen Produced 4/2/2026 11:23:15 PM | ||||
|---|---|---|---|---|
| Account: R126521160 | Type: Residential | Location: |
14616 COLLINGWOOD LN |
|
| Building Name/Occupant: |
|
OKLAHOMA CITY |
||
| Owner Name 1: | ZINK MICHAEL J & DEBRA ANN |
Parcel PIN#: |
3629-12-652-1160 |
|
| Owner Name 2: | 1/4 section #: |
3629 |
||
| Owner Name 3: | Parent Acct: |
|
||
| Billing Address: | 14616 COLLINGWOOD LN | Tax District: |
|
|
| City, State, Zip | EDMOND, OK 73013-1516 | School System: |
Edmond #12 |
|
|
Country: (If noted) |
Land Size: |
0.4718 Acres |
||
|
Land Value: 64,470 |
|
|||
|
Sect 8-T13N-R3W Qtr NE |
BRASSWOOD SEC 2 REPLAT
Block
013
Lot
005
|
|||
| Full Legal Description: BRASSWOOD SEC 2 REPLAT 013 005 |
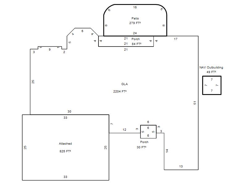
| Photo & Sketch (if available) | Comp Sales (ordered by relevancy) |
|
||||||||||||||||||
|
||||||||||||||||||||
| Value History (*The County Treasurer 405-713-1300 posts & collects actual tax amounts. Contact information HERE) | |||||||||||||
|---|---|---|---|---|---|---|---|---|---|---|---|---|---|
| Year | Market Value | Taxable Mkt Value | Gross Assessed | Exemption | Net Assessed | Millage | Est. Tax | Tax Savings | |||||
|
2026 |
370,500 |
305,076 |
33,558 |
1,000 |
32,558 |
120.32 |
$3,917 |
$986 |
|||||
|
2025 |
362,500 |
296,191 |
32,580 |
1,000 |
31,580 |
120.32 |
$3,800 |
$998 |
|||||
|
2024 |
335,500 |
287,565 |
31,631 |
1,000 |
30,631 |
119.96 |
$3,675 |
$752 |
|||||
|
2023 |
341,000 |
279,190 |
30,710 |
1,000 |
29,710 |
119.02 |
$3,536 |
$928 |
|||||
|
2022 |
292,500 |
271,059 |
29,816 |
1,000 |
28,816 |
120.10 |
$3,461 |
$403 |
|||||
| Property Account Status/Adjustments/Exemptions | ||
|---|---|---|
| Account # | Exemption Description | Amount |
|
R126521160 |
3% Cap Homestead |
0 |
|
R126521160 |
Homestead |
1,000 |
| Property Deed Transaction History (Recorded in the County Clerk's Office) | ||||||||||
|---|---|---|---|---|---|---|---|---|---|---|
| Date | Type | Book | Page | Price | Grantor | Grantee | ||||
|
8/18/2005 |
|
Deeds |
$0 |
ZINK MICHAEL J |
ZINK MICHAEL J & DEBRA ANN |
|||||
|
8/20/2003 |
|
Deeds |
$198,250 |
SHAW WILLIAM L & PATRICIA A |
ZINK MICHAEL J |
|||||
|
9/29/1999 |
|
Deeds |
$180,000 |
MACK THOMAS C & MARY P |
SHAW WILLIAM L & PATRICIA A |
|||||
|
9/29/1998 |
|
Historical |
$177,500 |
SMITH DANNY H |
MACK THOMAS C & MARY P |
|||||
|
12/6/1993 |
|
Historical |
$0 |
K C HOMES INC |
SMITH DANNY H |
|||||
| Last Mailed Notice of Value (N.O.V.) Information/History | ||||||||
|---|---|---|---|---|---|---|---|---|
| Year | Date | Market Value | Taxable Market Value | Gross Assessed | Exemption | Net Assessed | ||
|
2026 |
02/23/2026 |
370,500 |
305,076 |
33,558 |
1,000 |
32,558 |
||
|
2025 |
02/14/2025 |
362,500 |
296,191 |
32,580 |
1,000 |
31,580 |
||
|
2024 |
02/13/2024 |
335,500 |
287,565 |
31,631 |
1,000 |
30,631 |
||
|
2023 |
02/14/2023 |
341,000 |
279,190 |
30,710 |
1,000 |
29,710 |
||
|
2022 |
03/15/2022 |
292,500 |
271,059 |
29,816 |
1,000 |
28,816 |
||
| Property Building Permit History | ||||||
|---|---|---|---|---|---|---|
| Issued | Permit # | Provided by | Bldg # | Description | Est Construction Cost | Status |
|
8/13/1993 |
10215376 |
OKLAHOMA CITY |
1 |
Main Dwellin |
135,000 |
Inactive |
|
7/6/1993 |
10215375 |
OKLAHOMA CITY |
1 |
Other |
0 |
Inactive |
| Click button on building number to access detailed information: | ||||||
|---|---|---|---|---|---|---|
| Bldg # | Vacant/Improved Land | Bldg Description | Year Built | SqFt | # Stories | |
|
1 |
Improved |
Ranch 1 Story |
1993 |
2,204 |
1 Stories |
|