|
|
|
| Larry Stein Oklahoma County Assessor (405) 713-1200 - Public Access System |
|
|
|
|
|
|
| Real Property Display - Screen Produced 4/1/2026 4:50:29 AM | ||||
|---|---|---|---|---|
| Account: R141021190 | Type: Residential | Location: |
14020 JEFFERY DR |
|
| Building Name/Occupant: |
|
OKLAHOMA CITY |
||
| Owner Name 1: | ROBERTS TODD A &MICHELLE M |
Parcel PIN#: |
3643-14-102-1190 |
|
| Owner Name 2: | 1/4 section #: |
3643 |
||
| Owner Name 3: | Parent Acct: |
|
||
| Billing Address: | 14020 JEFFERY DR | Tax District: |
|
|
| City, State, Zip | EDMOND, OK 73013-4758 | School System: |
Edmond #12 |
|
|
Country: (If noted) |
Land Size: |
0.1415 Acres |
||
|
Land Value: 20,036 |
|
|||
|
Sect 11-T13N-R3W Qtr SW |
NORTHGATE 1ST
Block
010
Lot
002
|
|||
| Full Legal Description: NORTHGATE 1ST 010 002 |
| Photo & Sketch (if available) | Comp Sales (ordered by relevancy) |
|
||||||||||||||||||
|
||||||||||||||||||||
| Value History (*The County Treasurer 405-713-1300 posts & collects actual tax amounts. Contact information HERE) | |||||||||||||
|---|---|---|---|---|---|---|---|---|---|---|---|---|---|
| Year | Market Value | Taxable Mkt Value | Gross Assessed | Exemption | Net Assessed | Millage | Est. Tax | Tax Savings | |||||
|
2026 |
158,500 |
134,500 |
14,794 |
1,000 |
13,794 |
120.32 |
$1,660 |
$438 |
|||||
|
2025 |
158,000 |
130,583 |
14,363 |
1,000 |
13,363 |
120.32 |
$1,608 |
$483 |
|||||
|
2024 |
157,000 |
126,780 |
13,945 |
1,000 |
12,945 |
119.96 |
$1,553 |
$519 |
|||||
|
2023 |
150,500 |
123,088 |
13,539 |
1,000 |
12,539 |
119.02 |
$1,492 |
$478 |
|||||
|
2022 |
126,500 |
119,503 |
13,143 |
1,000 |
12,143 |
120.10 |
$1,459 |
$213 |
|||||
| Property Account Status/Adjustments/Exemptions | ||
|---|---|---|
| Account # | Exemption Description | Amount |
|
R141021190 |
3% Cap Homestead |
0 |
|
R141021190 |
Homestead |
1,000 |
| Property Deed Transaction History (Recorded in the County Clerk's Office) | |||||||
|---|---|---|---|---|---|---|---|
| Date | Type | Book | Page | Price | Grantor | Grantee | |
|
4/10/2003 |
|
Deeds |
$0 |
ROBERTS TODD A |
ROBERTS TODD A &MICHELLE M |
||
|
2/16/2000 |
|
Deeds |
$65,000 |
RAMER JACK R & ELODEE |
ROBERTS TODD A |
||
|
2/4/1999 |
|
Historical |
$0 |
DEAN ROGER |
RAMER JACK R & ELODEE |
||
|
4/28/1995 |
|
Historical |
$50,000 |
RAMER JACK R & ELODEE |
DEAN ROGER |
||
|
6/1/1978 |
|
Historical |
$0 |
|
RAMER JACK R & ELODEE |
||
| Last Mailed Notice of Value (N.O.V.) Information/History | ||||||||
|---|---|---|---|---|---|---|---|---|
| Year | Date | Market Value | Taxable Market Value | Gross Assessed | Exemption | Net Assessed | ||
|
2026 |
02/23/2026 |
158,500 |
134,500 |
14,794 |
1,000 |
13,794 |
||
|
2025 |
02/14/2025 |
158,000 |
130,583 |
14,363 |
1,000 |
13,363 |
||
|
2024 |
02/13/2024 |
157,000 |
126,780 |
13,945 |
1,000 |
12,945 |
||
|
2023 |
02/14/2023 |
150,500 |
123,088 |
13,539 |
1,000 |
12,539 |
||
|
2022 |
03/15/2022 |
126,500 |
119,503 |
13,143 |
1,000 |
12,143 |
||
| Property Building Permit History | |||||||||||
|---|---|---|---|---|---|---|---|---|---|---|---|
| Issued | Permit # | Provided by | Bldg # | Description | Est Construction Cost | Status | |||||
| No Building Permit records returned. | |||||||||||
| Click button on building number to access detailed information: | ||||||
|---|---|---|---|---|---|---|
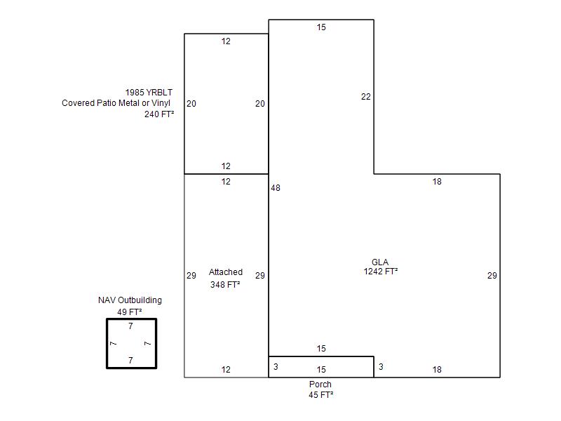
| Bldg # | Vacant/Improved Land | Bldg Description | Year Built | SqFt | # Stories | |
|
1 |
Improved |
Ranch 1 Story |
1965 |
1,242 |
1 Stories |
|