|
|
|
| Larry Stein Oklahoma County Assessor (405) 713-1200 - Public Access System |
|
|
|
|
|
|
| Real Property Display - Screen Produced 3/23/2026 5:35:34 AM | ||||
|---|---|---|---|---|
| Account: R180611490 | Type: Residential | Location: |
14012 CROSSING WAY EAST |
|
| Building Name/Occupant: |
|
OKLAHOMA CITY |
||
| Owner Name 1: | PRESTON REBEKAH LYNNE |
Parcel PIN#: |
3643-18-061-1490 |
|
| Owner Name 2: | 1/4 section #: |
3643 |
||
| Owner Name 3: | Parent Acct: |
|
||
| Billing Address: | 14012 CROSSING WAY E | Tax District: |
|
|
| City, State, Zip | EDMOND, OK 73013-4730 | School System: |
Edmond #12 |
|
|
Country: (If noted) |
Land Size: |
0.0574 Acres |
||
|
Land Value: 19,500 |
|
|||
|
Sect 11-T13N-R3W Qtr SW |
THE CROSSING SEC 1
Block
001
Lot
050
|
|||
| Full Legal Description: THE CROSSING SEC 1 001 050 |
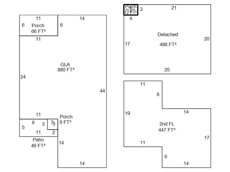
| Photo & Sketch (if available) | Comp Sales (ordered by relevancy) |
|
||||||||||||||||||
|
||||||||||||||||||||
| Value History (*The County Treasurer 405-713-1300 posts & collects actual tax amounts. Contact information HERE) | |||||||||||||
|---|---|---|---|---|---|---|---|---|---|---|---|---|---|
| Year | Market Value | Taxable Mkt Value | Gross Assessed | Exemption | Net Assessed | Millage | Est. Tax | Tax Savings | |||||
|
2025 |
191,000 |
149,987 |
16,498 |
1,000 |
15,498 |
120.32 |
$1,865 |
$663 |
|||||
|
2024 |
188,500 |
145,619 |
16,017 |
1,000 |
15,017 |
119.96 |
$1,802 |
$686 |
|||||
|
2023 |
185,000 |
141,378 |
15,550 |
1,000 |
14,550 |
119.02 |
$1,732 |
$690 |
|||||
|
2022 |
144,000 |
137,261 |
15,097 |
0 |
15,097 |
120.10 |
$1,813 |
$89 |
|||||
|
2021 |
133,500 |
130,725 |
14,379 |
0 |
14,379 |
118.88 |
$1,709 |
$36 |
|||||
| Property Account Status/Adjustments/Exemptions | ||
|---|---|---|
| Account # | Exemption Description | Amount |
|
R180611490 |
Homestead |
1,000 |
|
R180611490 |
3% Cap Homestead |
0 |
| Property Deed Transaction History (Recorded in the County Clerk's Office) | ||||||||||
|---|---|---|---|---|---|---|---|---|---|---|
| Date | Type | Book | Page | Price | Grantor | Grantee | ||||
|
1/30/2026 |
|
Deeds |
$195,000 |
RUGGS JODY M |
PRESTON REBEKAH LYNNE |
|||||
|
5/29/2018 |
|
Deeds |
$123,500 |
DORRIS RONALD E & PATRICIA J |
RUGGS JODY M |
|||||
|
8/8/2016 |
|
Deeds |
$118,500 |
GREGG AMY J |
DORRIS RONALD E & PATRICIA J |
|||||
|
5/11/2011 |
|
Deeds |
$96,500 |
BOLDMAN MICHAEL I & SARAH KAY |
GREGG AMY J |
|||||
|
7/21/2008 |
|
Deeds |
$109,000 |
VAUGHN ALICE K |
BOLDMAN MICHAEL I & SARAH KAY |
|||||
| Last Mailed Notice of Value (N.O.V.) Information/History | ||||||||
|---|---|---|---|---|---|---|---|---|
| Year | Date | Market Value | Taxable Market Value | Gross Assessed | Exemption | Net Assessed | ||
|
2026 |
02/23/2026 |
183,500 |
154,486 |
16,992 |
1,000 |
15,992 |
||
|
2025 |
02/14/2025 |
191,000 |
149,987 |
16,498 |
1,000 |
15,498 |
||
|
2024 |
02/13/2024 |
188,500 |
145,619 |
16,017 |
1,000 |
15,017 |
||
|
2023 |
02/14/2023 |
185,000 |
141,378 |
15,550 |
1,000 |
14,550 |
||
|
2022 |
03/15/2022 |
144,000 |
137,261 |
15,097 |
0 |
15,097 |
||
| Property Building Permit History | |||||||||||
|---|---|---|---|---|---|---|---|---|---|---|---|
| Issued | Permit # | Provided by | Bldg # | Description | Est Construction Cost | Status | |||||
| No Building Permit records returned. | |||||||||||
| Click button on building number to access detailed information: | ||||||
|---|---|---|---|---|---|---|
| Bldg # | Vacant/Improved Land | Bldg Description | Year Built | SqFt | # Stories | |
|
1 |
Improved |
Townhouse One half Story |
1981 |
1,327 |
1.5 Stories |
|