|
|
|
| Larry Stein Oklahoma County Assessor (405) 713-1200 - Public Access System |
|
|
|
|
|
|
| Real Property Display - Screen Produced 3/25/2026 5:25:49 AM | ||||
|---|---|---|---|---|
| Account: R180611770 | Type: Residential | Location: |
14003 CROSSING WAY EAST |
|
| Building Name/Occupant: |
|
OKLAHOMA CITY |
||
| Owner Name 1: | MAUDE ANN LEES LLC |
Parcel PIN#: |
3643-18-061-1770 |
|
| Owner Name 2: | 1/4 section #: |
3643 |
||
| Owner Name 3: | Parent Acct: |
|
||
| Billing Address: | PO BOX 82219 | Tax District: |
|
|
| City, State, Zip | OKLAHOMA CITY, OK 73148-0219 | School System: |
Edmond #12 |
|
|
Country: (If noted) |
Land Size: |
0.0574 Acres |
||
|
Land Value: 19,500 |
|
|||
|
Sect 11-T13N-R3W Qtr SW |
THE CROSSING SEC 1
Block
002
Lot
007
|
|||
| Full Legal Description: THE CROSSING SEC 1 002 007 |
| Photo & Sketch (if available) | Comp Sales (ordered by relevancy) |
|
||||||||||||||||||
|
||||||||||||||||||||
| Value History (*The County Treasurer 405-713-1300 posts & collects actual tax amounts. Contact information HERE) | |||||||||||||
|---|---|---|---|---|---|---|---|---|---|---|---|---|---|
| Year | Market Value | Taxable Mkt Value | Gross Assessed | Exemption | Net Assessed | Millage | Est. Tax | Tax Savings | |||||
|
2025 |
153,000 |
125,074 |
13,758 |
0 |
13,758 |
120.32 |
$1,655 |
$370 |
|||||
|
2024 |
152,000 |
119,119 |
13,102 |
0 |
13,102 |
119.96 |
$1,572 |
$434 |
|||||
|
2023 |
147,000 |
113,447 |
12,478 |
0 |
12,478 |
119.02 |
$1,485 |
$439 |
|||||
|
2022 |
116,000 |
108,045 |
11,884 |
0 |
11,884 |
120.10 |
$1,427 |
$105 |
|||||
|
2021 |
106,000 |
102,900 |
11,319 |
0 |
11,319 |
118.88 |
$1,346 |
$41 |
|||||
| Property Account Status/Adjustments/Exemptions | ||
|---|---|---|
| Account # | Exemption Description | Amount |
|
R180611770 |
5% Capped Account |
0 |
| Property Deed Transaction History (Recorded in the County Clerk's Office) | |||||||
|---|---|---|---|---|---|---|---|
| Date | Type | Book | Page | Price | Grantor | Grantee | |
|
3/19/2009 |
|
Hmstd Off & |
$0 |
LEES MAUDE ANN |
MAUDE ANN LEES LLC |
||
|
6/29/1995 |
|
Historical |
$0 |
SPENCER CARL H & JIMME NELL |
LEES MAUDE ANN |
||
|
3/1/1986 |
|
Historical |
$47,500 |
|
SPENCER CARL H & JIMME NELL |
||
| Last Mailed Notice of Value (N.O.V.) Information/History | ||||||||
|---|---|---|---|---|---|---|---|---|
| Year | Date | Market Value | Taxable Market Value | Gross Assessed | Exemption | Net Assessed | ||
|
2026 |
02/23/2026 |
150,500 |
131,327 |
14,445 |
0 |
14,445 |
||
|
2025 |
02/14/2025 |
153,000 |
125,074 |
13,758 |
0 |
13,758 |
||
|
2024 |
02/13/2024 |
152,000 |
119,119 |
13,102 |
0 |
13,102 |
||
|
2023 |
02/14/2023 |
147,000 |
113,447 |
12,478 |
0 |
12,478 |
||
|
2022 |
03/15/2022 |
116,000 |
108,045 |
11,884 |
0 |
11,884 |
||
| Property Building Permit History | |||||||||||
|---|---|---|---|---|---|---|---|---|---|---|---|
| Issued | Permit # | Provided by | Bldg # | Description | Est Construction Cost | Status | |||||
| No Building Permit records returned. | |||||||||||
| Click button on building number to access detailed information: | ||||||
|---|---|---|---|---|---|---|
| Bldg # | Vacant/Improved Land | Bldg Description | Year Built | SqFt | # Stories | |
|
1 |
Improved |
Townhouse One Story |
1981 |
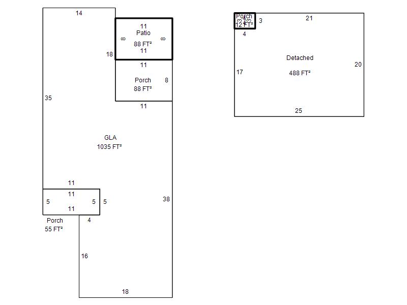
1,035 |
1 Stories |
|