|
|
|
| Larry Stein Oklahoma County Assessor (405) 713-1200 - Public Access System |
|
|
|
|
|
|
| Real Property Display - Screen Produced 3/22/2026 4:17:31 AM | ||||
|---|---|---|---|---|
| Account: R182571120 | Type: Residential | Location: |
3432 BAIRD DR |
|
| Building Name/Occupant: |
|
EDMOND |
||
| Owner Name 1: | WOOTEN JON M & STEPHANIE |
Parcel PIN#: |
3645-18-257-1120 |
|
| Owner Name 2: | 1/4 section #: |
3645 |
||
| Owner Name 3: | Parent Acct: |
|
||
| Billing Address: | 3432 BAIRD DR | Tax District: |
|
|
| City, State, Zip | EDMOND, OK 73013-6327 | School System: |
Edmond #12 |
|
|
Country: (If noted) |
Land Size: |
0.2238 Acres |
||
|
Land Value: 37,050 |
|
|||
|
Sect 12-T13N-R3W Qtr NE |
SMILING HILL
Block
002
Lot
009
|
|||
| Full Legal Description: SMILING HILL 002 009 |
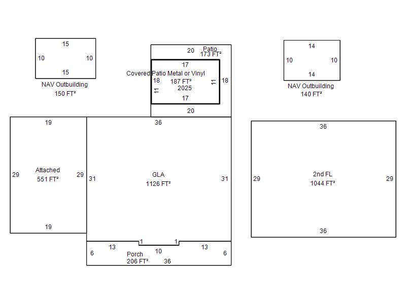
| Photo & Sketch (if available) | Comp Sales (ordered by relevancy) |
|
||||||||||||||||||
|
||||||||||||||||||||
| Value History (*The County Treasurer 405-713-1300 posts & collects actual tax amounts. Contact information HERE) | |||||||||||||
|---|---|---|---|---|---|---|---|---|---|---|---|---|---|
| Year | Market Value | Taxable Mkt Value | Gross Assessed | Exemption | Net Assessed | Millage | Est. Tax | Tax Savings | |||||
|
2025 |
313,500 |
244,025 |
26,841 |
1,000 |
25,841 |
105.16 |
$2,718 |
$909 |
|||||
|
2024 |
319,000 |
236,918 |
26,060 |
1,000 |
25,060 |
105.03 |
$2,632 |
$1,053 |
|||||
|
2023 |
291,000 |
230,018 |
25,301 |
1,000 |
24,301 |
104.24 |
$2,533 |
$803 |
|||||
|
2022 |
269,500 |
223,319 |
24,564 |
1,000 |
23,564 |
104.64 |
$2,466 |
$636 |
|||||
|
2021 |
217,500 |
216,815 |
23,849 |
1,000 |
22,849 |
104.15 |
$2,380 |
$112 |
|||||
| Property Account Status/Adjustments/Exemptions | ||
|---|---|---|
| Account # | Exemption Description | Amount |
|
R182571120 |
3% Cap Homestead |
0 |
|
R182571120 |
Homestead |
1,000 |
| Property Deed Transaction History (Recorded in the County Clerk's Office) | ||||||||||
|---|---|---|---|---|---|---|---|---|---|---|
| Date | Type | Book | Page | Price | Grantor | Grantee | ||||
|
9/25/2024 |
|
Deeds |
$0 |
WOOTEN JON M |
WOOTEN JON M & STEPHANIE |
|||||
|
10/31/2016 |
|
Deeds |
$187,000 |
PLANT DONALD P & JULIE R |
WOOTEN JON M |
|||||
|
12/2/2013 |
|
Deeds |
$170,000 |
SCOGGINS JEFFREY A & LINDA G CO TRS SCOGGINS C J JR TRUST |
PLANT DONALD P & JULIE R |
|||||
|
12/17/2012 |
|
Deeds |
$0 |
SCOGGINS C J JR SCOGGINS JEFFREY A |
SCOGGINS JEFFREY A & LINDA G CO TRS SCOGGINS C J JR TRUST |
|||||
|
12/3/2012 |
|
Deeds |
$0 |
SCOGGINS C J JR & NANCY SUE SCOGGINS JEFFREY A |
SCOGGINS C J JR SCOGGINS JEFFREY A |
|||||
| Last Mailed Notice of Value (N.O.V.) Information/History | ||||||||
|---|---|---|---|---|---|---|---|---|
| Year | Date | Market Value | Taxable Market Value | Gross Assessed | Exemption | Net Assessed | ||
|
2025 |
02/14/2025 |
313,500 |
244,025 |
26,841 |
1,000 |
25,841 |
||
|
2024 |
02/13/2024 |
319,000 |
236,918 |
26,060 |
1,000 |
25,060 |
||
|
2023 |
02/14/2023 |
291,000 |
230,018 |
25,301 |
1,000 |
24,301 |
||
|
2022 |
03/15/2022 |
269,500 |
223,319 |
24,564 |
1,000 |
23,564 |
||
|
2021 |
03/19/2021 |
217,500 |
216,815 |
23,849 |
1,000 |
22,849 |
||
| Property Building Permit History | |||||||||||
|---|---|---|---|---|---|---|---|---|---|---|---|
| Issued | Permit # | Provided by | Bldg # | Description | Est Construction Cost | Status | |||||
| No Building Permit records returned. | |||||||||||
| Click button on building number to access detailed information: | ||||||
|---|---|---|---|---|---|---|
| Bldg # | Vacant/Improved Land | Bldg Description | Year Built | SqFt | # Stories | |
|
1 |
Improved |
2 Story |
1963 |
2,170 |
2 Stories |
|