|
|
|
| Larry Stein Oklahoma County Assessor (405) 713-1200 - Public Access System |
|
|
|
|
|
|
| Real Property Display - Screen Produced 3/18/2026 5:29:46 AM | ||||
|---|---|---|---|---|
| Account: R182571570 | Type: Residential | Location: |
3800 BAIRD DR |
|
| Building Name/Occupant: |
|
EDMOND |
||
| Owner Name 1: | STEWART ERMA L 2003 REV LIV TRUST |
Parcel PIN#: |
3645-18-257-1570 |
|
| Owner Name 2: | 1/4 section #: |
3645 |
||
| Owner Name 3: | Parent Acct: |
|
||
| Billing Address: | 3800 BAIRD DR | Tax District: |
|
|
| City, State, Zip | EDMOND, OK 73013-6335 | School System: |
Edmond #12 |
|
|
Country: (If noted) |
Land Size: |
0.2545 Acres |
||
|
Land Value: 42,134 |
|
|||
|
Sect 12-T13N-R3W Qtr NE |
SMILING HILL
Block
006
Lot
001
|
|||
| Full Legal Description: SMILING HILL 006 001 |
| Photo & Sketch (if available) | Comp Sales (ordered by relevancy) |
|
||||||||||||||||||
|
||||||||||||||||||||
| Value History (*The County Treasurer 405-713-1300 posts & collects actual tax amounts. Contact information HERE) | |||||||||||||
|---|---|---|---|---|---|---|---|---|---|---|---|---|---|
| Year | Market Value | Taxable Mkt Value | Gross Assessed | Exemption | Net Assessed | Millage | Est. Tax | Tax Savings | |||||
|
2025 |
255,000 |
120,429 |
13,247 |
1,000 |
12,247 |
105.16 |
$1,288 |
$1,662 |
|||||
|
2024 |
252,000 |
120,429 |
13,247 |
1,000 |
12,247 |
105.03 |
$1,286 |
$1,625 |
|||||
|
2023 |
240,500 |
120,429 |
13,247 |
1,000 |
12,247 |
104.24 |
$1,277 |
$1,481 |
|||||
|
2022 |
220,000 |
120,429 |
13,247 |
1,000 |
12,247 |
104.64 |
$1,282 |
$1,251 |
|||||
|
2021 |
177,000 |
120,429 |
13,247 |
1,000 |
12,247 |
104.15 |
$1,276 |
$752 |
|||||
| Property Account Status/Adjustments/Exemptions | ||
|---|---|---|
| Account # | Exemption Description | Amount |
|
R182571570 |
Freeze Senior Valuation |
0 |
|
R182571570 |
3% Cap Homestead |
0 |
|
R182571570 |
Homestead |
1,000 |
| Property Deed Transaction History (Recorded in the County Clerk's Office) | |||||||
|---|---|---|---|---|---|---|---|
| Date | Type | Book | Page | Price | Grantor | Grantee | |
|
6/12/2003 |
|
Deeds |
$0 |
STEWART ERMA L |
STEWART ERMA L 2003 REV LIV TRUST |
||
|
9/1/1977 |
|
Historical |
$0 |
|
STEWART ERMA L |
||
| Last Mailed Notice of Value (N.O.V.) Information/History | ||||||||
|---|---|---|---|---|---|---|---|---|
| Year | Date | Market Value | Taxable Market Value | Gross Assessed | Exemption | Net Assessed | ||
|
2026 |
02/23/2026 |
259,000 |
120,429 |
13,247 |
1,000 |
12,247 |
||
|
2025 |
02/14/2025 |
255,000 |
120,429 |
13,247 |
1,000 |
12,247 |
||
|
2024 |
02/13/2024 |
252,000 |
120,429 |
13,247 |
1,000 |
12,247 |
||
|
2023 |
02/14/2023 |
240,500 |
120,429 |
13,247 |
1,000 |
12,247 |
||
|
2022 |
03/15/2022 |
220,000 |
120,429 |
13,247 |
1,000 |
12,247 |
||
| Property Building Permit History | |||||||||||
|---|---|---|---|---|---|---|---|---|---|---|---|
| Issued | Permit # | Provided by | Bldg # | Description | Est Construction Cost | Status | |||||
| No Building Permit records returned. | |||||||||||
| Click button on building number to access detailed information: | ||||||
|---|---|---|---|---|---|---|
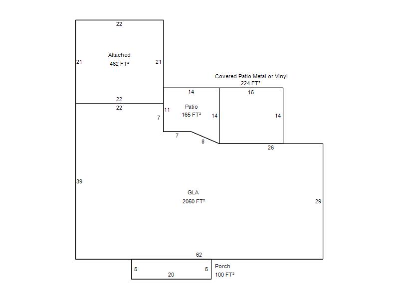
| Bldg # | Vacant/Improved Land | Bldg Description | Year Built | SqFt | # Stories | |
|
1 |
Improved |
Ranch 1 Story |
1969 |
2,050 |
1 Stories |
|