|
|
|
| Larry Stein Oklahoma County Assessor (405) 713-1200 - Public Access System |
|
|
|
|
|
|
| Real Property Display - Screen Produced 3/20/2026 5:50:01 AM | ||||
|---|---|---|---|---|
| Account: R182573680 | Type: Residential | Location: |
1305 BANNER AVE |
|
| Building Name/Occupant: |
|
EDMOND |
||
| Owner Name 1: | JONES BLAKE A & CASSIDY D |
Parcel PIN#: |
3645-18-257-3680 |
|
| Owner Name 2: | 1/4 section #: |
3645 |
||
| Owner Name 3: | Parent Acct: |
|
||
| Billing Address: | 1305 BANNER AVE | Tax District: |
|
|
| City, State, Zip | EDMOND, OK 73013 | School System: |
Edmond #12 |
|
|
Country: (If noted) |
Land Size: |
0.2681 Acres |
||
|
Land Value: 36,575 |
|
|||
|
Sect 12-T13N-R3W Qtr NE |
SMILING HILL
Block
020
Lot
012
|
|||
| Full Legal Description: SMILING HILL 020 012 |
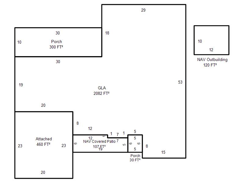
| Photo & Sketch (if available) | Comp Sales (ordered by relevancy) |
|
||||||||||||||||||
|
||||||||||||||||||||
| Value History (*The County Treasurer 405-713-1300 posts & collects actual tax amounts. Contact information HERE) | |||||||||||||
|---|---|---|---|---|---|---|---|---|---|---|---|---|---|
| Year | Market Value | Taxable Mkt Value | Gross Assessed | Exemption | Net Assessed | Millage | Est. Tax | Tax Savings | |||||
|
2025 |
278,500 |
254,677 |
28,014 |
0 |
28,014 |
105.16 |
$2,946 |
$276 |
|||||
|
2024 |
276,000 |
242,550 |
26,680 |
0 |
26,680 |
105.03 |
$2,802 |
$386 |
|||||
|
2023 |
231,000 |
231,000 |
25,410 |
0 |
25,410 |
104.24 |
$2,649 |
$0 |
|||||
|
2022 |
240,000 |
191,100 |
21,021 |
0 |
21,021 |
104.64 |
$2,200 |
$563 |
|||||
|
2021 |
182,000 |
182,000 |
20,020 |
0 |
20,020 |
104.15 |
$2,085 |
$0 |
|||||
| Property Account Status/Adjustments/Exemptions | ||
|---|---|---|
| Account # | Exemption Description | Amount |
|
R182573680 |
5% Capped Account |
0 |
| Property Deed Transaction History (Recorded in the County Clerk's Office) | |||||||
|---|---|---|---|---|---|---|---|
| Date | Type | Book | Page | Price | Grantor | Grantee | |
|
4/29/2022 |
|
Deeds |
$230,000 |
HACKETT GARY & LISA |
JONES BLAKE A & CASSIDY D |
||
|
8/26/2020 |
|
Deeds |
$175,000 |
ALLEN DEBORAH N |
HACKETT GARY & LISA |
||
|
5/23/1994 |
|
Historical |
$92,500 |
THOMPSON JOHN E & NANCY |
ALLEN DEBORAH N |
||
|
12/1/1975 |
|
Historical |
$0 |
|
THOMPSON JOHN E & NANCY |
||
| Last Mailed Notice of Value (N.O.V.) Information/History | ||||||||
|---|---|---|---|---|---|---|---|---|
| Year | Date | Market Value | Taxable Market Value | Gross Assessed | Exemption | Net Assessed | ||
|
2026 |
02/23/2026 |
283,500 |
267,410 |
29,414 |
0 |
29,414 |
||
|
2025 |
02/14/2025 |
278,500 |
254,677 |
28,014 |
0 |
28,014 |
||
|
2024 |
02/13/2024 |
276,000 |
242,550 |
26,680 |
0 |
26,680 |
||
|
2023 |
02/14/2023 |
231,000 |
231,000 |
25,410 |
0 |
25,410 |
||
|
2022 |
03/15/2022 |
240,000 |
191,100 |
21,021 |
0 |
21,021 |
||
| Property Building Permit History | |||||||||||
|---|---|---|---|---|---|---|---|---|---|---|---|
| Issued | Permit # | Provided by | Bldg # | Description | Est Construction Cost | Status | |||||
| No Building Permit records returned. | |||||||||||
| Click button on building number to access detailed information: | ||||||
|---|---|---|---|---|---|---|
| Bldg # | Vacant/Improved Land | Bldg Description | Year Built | SqFt | # Stories | |
|
1 |
Improved |
Ranch 1 Story |
1976 |
2,082 |
1 Stories |
|