|
|
|
| Larry Stein Oklahoma County Assessor (405) 713-1200 - Public Access System |
|
|
|
|
|
|
| Real Property Display - Screen Produced 3/24/2026 4:47:21 AM | ||||
|---|---|---|---|---|
| Account: R180301250 | Type: Residential | Location: |
3317 MEADOW LN |
|
| Building Name/Occupant: |
|
EDMOND |
||
| Owner Name 1: | MASQUAT SAMANTHA R |
Parcel PIN#: |
3648-18-030-1250 |
|
| Owner Name 2: | 1/4 section #: |
3648 |
||
| Owner Name 3: | Parent Acct: |
|
||
| Billing Address: | 3317 MEADOW LN | Tax District: |
|
|
| City, State, Zip | EDMOND , OK 73013-5420 | School System: |
Edmond #12 |
|
|
Country: (If noted) |
Land Size: |
0.1791 Acres |
||
|
Land Value: 34,320 |
|
|||
|
Sect 12-T13N-R3W Qtr NW |
WHISPERING HEIGHTS
Block
002
Lot
005
|
|||
| Full Legal Description: WHISPERING HEIGHTS 002 005 |
| Photo & Sketch (if available) | Comp Sales (ordered by relevancy) |
|
||||||||||||||||||
|
||||||||||||||||||||
| Value History (*The County Treasurer 405-713-1300 posts & collects actual tax amounts. Contact information HERE) | |||||||||||||
|---|---|---|---|---|---|---|---|---|---|---|---|---|---|
| Year | Market Value | Taxable Mkt Value | Gross Assessed | Exemption | Net Assessed | Millage | Est. Tax | Tax Savings | |||||
|
2025 |
198,000 |
168,346 |
18,517 |
0 |
18,517 |
105.16 |
$1,947 |
$343 |
|||||
|
2024 |
195,500 |
160,330 |
17,635 |
0 |
17,635 |
105.03 |
$1,852 |
$406 |
|||||
|
2023 |
187,500 |
152,696 |
16,795 |
0 |
16,795 |
104.24 |
$1,751 |
$399 |
|||||
|
2022 |
171,500 |
145,425 |
15,996 |
0 |
15,996 |
104.64 |
$1,674 |
$300 |
|||||
|
2021 |
138,500 |
138,500 |
15,235 |
0 |
15,235 |
104.15 |
$1,587 |
$0 |
|||||
| Property Account Status/Adjustments/Exemptions | ||
|---|---|---|
| Account # | Exemption Description | Amount |
|
R180301250 |
5% Capped Account |
0 |
| Property Deed Transaction History (Recorded in the County Clerk's Office) | ||||||||||
|---|---|---|---|---|---|---|---|---|---|---|
| Date | Type | Book | Page | Price | Grantor | Grantee | ||||
|
7/13/2018 |
|
Deeds |
$139,000 |
SITTON EMMA CHARM |
MASQUAT SAMANTHA R |
|||||
|
7/11/2013 |
|
Deeds |
$119,500 |
SHELL CINDY DAWN |
SITTON EMMA CHARM |
|||||
|
7/18/2009 |
|
Deeds |
$0 |
SHELL DONALD J SHELL SHIRLEY ANN |
SHELL CINDY DAWN |
|||||
|
7/17/2009 |
|
Deeds |
$0 |
SHELL DONALD JOE |
SHELL CINDY DAWN |
|||||
|
4/20/1998 |
|
Historical |
$71,500 |
ZANOVICH CYNTHIA L |
SHELL DONALD JOE |
|||||
| Last Mailed Notice of Value (N.O.V.) Information/History | ||||||||
|---|---|---|---|---|---|---|---|---|
| Year | Date | Market Value | Taxable Market Value | Gross Assessed | Exemption | Net Assessed | ||
|
2026 |
02/23/2026 |
202,500 |
176,763 |
19,443 |
0 |
19,443 |
||
|
2025 |
02/14/2025 |
198,000 |
168,346 |
18,517 |
0 |
18,517 |
||
|
2024 |
02/13/2024 |
195,500 |
160,330 |
17,635 |
0 |
17,635 |
||
|
2023 |
02/14/2023 |
187,500 |
152,696 |
16,795 |
0 |
16,795 |
||
|
2022 |
03/15/2022 |
171,500 |
145,425 |
15,996 |
0 |
15,996 |
||
| Property Building Permit History | |||||||||||
|---|---|---|---|---|---|---|---|---|---|---|---|
| Issued | Permit # | Provided by | Bldg # | Description | Est Construction Cost | Status | |||||
| No Building Permit records returned. | |||||||||||
| Click button on building number to access detailed information: | ||||||
|---|---|---|---|---|---|---|
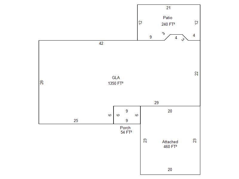
| Bldg # | Vacant/Improved Land | Bldg Description | Year Built | SqFt | # Stories | |
|
1 |
Improved |
Ranch 1 Story |
1974 |
1,350 |
1 Stories |
|