|
|
|
| Larry Stein Oklahoma County Assessor (405) 713-1200 - Public Access System |
|
|
|
|
|
|
| Real Property Display - Screen Produced 3/18/2026 9:01:41 AM | ||||
|---|---|---|---|---|
| Account: R180301340 | Type: Residential | Location: |
600 OWENS AVE |
|
| Building Name/Occupant: |
|
EDMOND |
||
| Owner Name 1: | WHITE JAMES M & DAWN BURNS |
Parcel PIN#: |
3648-18-030-1340 |
|
| Owner Name 2: | 1/4 section #: |
3648 |
||
| Owner Name 3: | Parent Acct: |
|
||
| Billing Address: | 600 OWENS AVE | Tax District: |
|
|
| City, State, Zip | EDMOND , OK 73013 | School System: |
Edmond #12 |
|
|
Country: (If noted) |
Land Size: |
0.1980 Acres |
||
|
Land Value: 37,950 |
|
|||
|
Sect 12-T13N-R3W Qtr NW |
WHISPERING HEIGHTS
Block
003
Lot
001
|
|||
| Full Legal Description: WHISPERING HEIGHTS 003 001 |
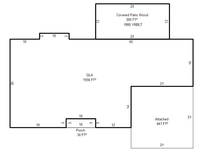
| Photo & Sketch (if available) | Comp Sales (ordered by relevancy) |
|
||||||||||||||||||
|
||||||||||||||||||||
| Value History (*The County Treasurer 405-713-1300 posts & collects actual tax amounts. Contact information HERE) | |||||||||||||
|---|---|---|---|---|---|---|---|---|---|---|---|---|---|
| Year | Market Value | Taxable Mkt Value | Gross Assessed | Exemption | Net Assessed | Millage | Est. Tax | Tax Savings | |||||
|
2025 |
217,000 |
166,574 |
18,322 |
1,000 |
17,322 |
105.16 |
$1,822 |
$688 |
|||||
|
2024 |
214,500 |
161,723 |
17,789 |
1,000 |
16,789 |
105.03 |
$1,763 |
$715 |
|||||
|
2023 |
205,000 |
157,013 |
17,271 |
1,000 |
16,271 |
104.24 |
$1,696 |
$654 |
|||||
|
2022 |
186,500 |
152,440 |
16,768 |
1,000 |
15,768 |
104.64 |
$1,650 |
$497 |
|||||
|
2021 |
148,000 |
148,000 |
16,280 |
1,000 |
15,280 |
104.15 |
$1,591 |
$104 |
|||||
| Property Account Status/Adjustments/Exemptions | ||
|---|---|---|
| Account # | Exemption Description | Amount |
|
R180301340 |
3% Cap Homestead |
0 |
|
R180301340 |
Homestead |
1,000 |
| Property Deed Transaction History (Recorded in the County Clerk's Office) | |||||||
|---|---|---|---|---|---|---|---|
| Date | Type | Book | Page | Price | Grantor | Grantee | |
|
12/21/2018 |
|
Deeds |
$137,000 |
SWANSON EDITH M TRS & 2007 REV TRUST |
WHITE JAMES M & DAWN BURNS |
||
|
11/19/2007 |
|
Deeds |
$0 |
SWANSON EDITH M HURLEY CONNIE S |
SWANSON EDITH M TRS & 2007 REV TRUST |
||
|
8/9/2001 |
|
Deeds |
$0 |
SWANSON MYRON C & E M |
SWANSON EDITH M HURLEY CONNIE S |
||
|
2/1/1974 |
|
Historical |
$0 |
|
SWANSON MYRON C & E M |
||
| Last Mailed Notice of Value (N.O.V.) Information/History | ||||||||
|---|---|---|---|---|---|---|---|---|
| Year | Date | Market Value | Taxable Market Value | Gross Assessed | Exemption | Net Assessed | ||
|
2026 |
02/23/2026 |
221,500 |
171,571 |
18,872 |
1,000 |
17,872 |
||
|
2025 |
02/14/2025 |
217,000 |
166,574 |
18,322 |
1,000 |
17,322 |
||
|
2024 |
02/13/2024 |
214,500 |
161,723 |
17,789 |
1,000 |
16,789 |
||
|
2023 |
02/14/2023 |
205,000 |
157,013 |
17,271 |
1,000 |
16,271 |
||
|
2022 |
03/15/2022 |
186,500 |
152,440 |
16,768 |
1,000 |
15,768 |
||
| Property Building Permit History | |||||||||||
|---|---|---|---|---|---|---|---|---|---|---|---|
| Issued | Permit # | Provided by | Bldg # | Description | Est Construction Cost | Status | |||||
| No Building Permit records returned. | |||||||||||
| Click button on building number to access detailed information: | ||||||
|---|---|---|---|---|---|---|
| Bldg # | Vacant/Improved Land | Bldg Description | Year Built | SqFt | # Stories | |
|
1 |
Improved |
Ranch 1 Story |
1974 |
1,556 |
1 Stories |
|