|
|
|
| Larry Stein Oklahoma County Assessor (405) 713-1200 - Public Access System |
|
|
|
|
|
|
| Real Property Display - Screen Produced 3/20/2026 4:24:40 AM | ||||
|---|---|---|---|---|
| Account: R180301610 | Type: Residential | Location: |
605 BANNER AVE |
|
| Building Name/Occupant: |
|
EDMOND |
||
| Owner Name 1: | JAR ENTERPRISE LLC |
Parcel PIN#: |
3648-18-030-1610 |
|
| Owner Name 2: | 1/4 section #: |
3648 |
||
| Owner Name 3: | Parent Acct: |
|
||
| Billing Address: | 2662 NW 222ND ST | Tax District: |
|
|
| City, State, Zip | EDMOND, OK 73025-9085 | School System: |
Edmond #12 |
|
|
Country: (If noted) |
Land Size: |
0.1826 Acres |
||
|
Land Value: 35,006 |
|
|||
|
Sect 12-T13N-R3W Qtr NW |
WHISPERING HEIGHTS
Block
003
Lot
028
|
|||
| Full Legal Description: WHISPERING HEIGHTS 003 028 |
| Photo & Sketch (if available) | Comp Sales (ordered by relevancy) |
|
||||||||||||||||||
|
||||||||||||||||||||
| Value History (*The County Treasurer 405-713-1300 posts & collects actual tax amounts. Contact information HERE) | |||||||||||||
|---|---|---|---|---|---|---|---|---|---|---|---|---|---|
| Year | Market Value | Taxable Mkt Value | Gross Assessed | Exemption | Net Assessed | Millage | Est. Tax | Tax Savings | |||||
|
2025 |
217,000 |
183,540 |
20,189 |
0 |
20,189 |
105.16 |
$2,123 |
$387 |
|||||
|
2024 |
213,000 |
174,800 |
19,227 |
0 |
19,227 |
105.03 |
$2,020 |
$441 |
|||||
|
2023 |
203,500 |
166,477 |
18,312 |
0 |
18,312 |
104.24 |
$1,909 |
$425 |
|||||
|
2022 |
186,500 |
158,550 |
17,440 |
0 |
17,440 |
104.64 |
$1,825 |
$322 |
|||||
|
2021 |
151,000 |
151,000 |
16,610 |
0 |
16,610 |
104.15 |
$1,730 |
$0 |
|||||
| Property Account Status/Adjustments/Exemptions | ||
|---|---|---|
| Account # | Exemption Description | Amount |
|
R180301610 |
5% Capped Account |
0 |
| Property Deed Transaction History (Recorded in the County Clerk's Office) | ||||||||||
|---|---|---|---|---|---|---|---|---|---|---|
| Date | Type | Book | Page | Price | Grantor | Grantee | ||||
|
9/5/2025 |
|
Hmstd Off & |
$0 |
AVILA JAIME R |
JAR ENTERPRISE LLC |
|||||
|
12/19/2008 |
|
Deeds |
$111,000 |
JACKSON STEVEN P & LEZLIE A |
AVILA JAIME R |
|||||
|
1/7/2000 |
|
Hmstd Off & |
$0 |
JACKSON STEVEN P & LEZLIE A JACKSON KENNETH F & GLORIA J |
JACKSON STEVEN P & LEZLIE A |
|||||
|
6/23/1993 |
|
Historical |
$64,500 |
DIXON STEVEN A & TERESA L |
JACKSON STEVEN P & LEZLIE A |
|||||
|
2/20/1990 |
|
Historical |
$52,100 |
SECRETARY OF HOUSING |
DIXON STEVEN A & TERESA L |
|||||
| Last Mailed Notice of Value (N.O.V.) Information/History | ||||||||
|---|---|---|---|---|---|---|---|---|
| Year | Date | Market Value | Taxable Market Value | Gross Assessed | Exemption | Net Assessed | ||
|
2026 |
02/23/2026 |
221,000 |
192,717 |
21,198 |
0 |
21,198 |
||
|
2025 |
02/14/2025 |
217,000 |
183,540 |
20,189 |
0 |
20,189 |
||
|
2024 |
02/13/2024 |
213,000 |
174,800 |
19,227 |
0 |
19,227 |
||
|
2023 |
02/14/2023 |
203,500 |
166,477 |
18,312 |
0 |
18,312 |
||
|
2022 |
03/15/2022 |
186,500 |
158,550 |
17,440 |
0 |
17,440 |
||
| Property Building Permit History | |||||||||||
|---|---|---|---|---|---|---|---|---|---|---|---|
| Issued | Permit # | Provided by | Bldg # | Description | Est Construction Cost | Status | |||||
| No Building Permit records returned. | |||||||||||
| Click button on building number to access detailed information: | ||||||
|---|---|---|---|---|---|---|
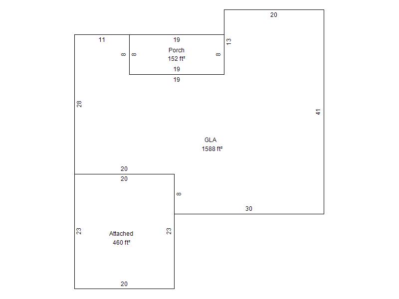
| Bldg # | Vacant/Improved Land | Bldg Description | Year Built | SqFt | # Stories | |
|
1 |
Improved |
Ranch 1 Story |
1973 |
1,588 |
1 Stories |
|