|
|
|
| Larry Stein Oklahoma County Assessor (405) 713-1200 - Public Access System |
|
|
|
|
|
|
| Real Property Display - Screen Produced 4/9/2026 2:02:38 PM | ||||
|---|---|---|---|---|
| Account: R153461055 | Type: Residential | Location: |
3017 SE 21ST ST |
|
| Building Name/Occupant: |
|
DEL CITY |
||
| Owner Name 1: | ISRAEL JENIAH SUSANNA BAHT |
Parcel PIN#: |
1428-15-346-1055 |
|
| Owner Name 2: | 1/4 section #: |
1428 |
||
| Owner Name 3: | Parent Acct: |
|
||
| Billing Address: | 3017 SE 21ST ST | Tax District: |
|
|
| City, State, Zip | DEL CITY, OK 73115 | School System: |
Mid-Del #52 |
|
|
Country: (If noted) |
Land Size: |
0.1928 Acres |
||
|
Land Value: 23,100 |
|
|||
|
Sect 7-T11N-R2W Qtr NW |
EPPERLY HEIGHTS 13TH
Block
001
Lot
006
|
|||
| Full Legal Description: EPPERLY HEIGHTS 13TH 001 006 |
| Photo & Sketch (if available) | Comp Sales (ordered by relevancy) |
|
||||||||||||||||||
|
||||||||||||||||||||
| Value History (*The County Treasurer 405-713-1300 posts & collects actual tax amounts. Contact information HERE) | |||||||||||||
|---|---|---|---|---|---|---|---|---|---|---|---|---|---|
| Year | Market Value | Taxable Mkt Value | Gross Assessed | Exemption | Net Assessed | Millage | Est. Tax | Tax Savings | |||||
|
2026 |
105,500 |
105,500 |
11,605 |
0 |
11,605 |
114.72 |
$1,331 |
$0 |
|||||
|
2025 |
104,000 |
102,375 |
11,261 |
0 |
11,261 |
114.72 |
$1,292 |
$21 |
|||||
|
2024 |
97,500 |
97,500 |
10,725 |
0 |
10,725 |
117.21 |
$1,257 |
$0 |
|||||
|
2023 |
130,000 |
130,000 |
14,300 |
0 |
14,300 |
112.46 |
$1,608 |
$0 |
|||||
|
2022 |
80,500 |
67,803 |
7,458 |
0 |
7,458 |
110.76 |
$826 |
$155 |
|||||
| Property Account Status/Adjustments/Exemptions | ||
|---|---|---|
| Account # | Exemption Description | Amount |
|
R153461055 |
5% Capped Account |
0 |
| Property Deed Transaction History (Recorded in the County Clerk's Office) | ||||||||||
|---|---|---|---|---|---|---|---|---|---|---|
| Date | Type | Book | Page | Price | Grantor | Grantee | ||||
|
11/22/2022 |
|
Deeds |
$129,000 |
BRYANT JAMES T & OZIE M |
ISRAEL JENIAH SUSANNA BAHT |
|||||
|
11/5/2012 |
|
Deeds |
$65,000 |
MENARD JOBRIETH J |
BRYANT JAMES T & OZIE M |
|||||
|
8/24/2004 |
|
Deeds |
$62,000 |
LANGAN MATTHEW D & SHELLY J |
MENARD JOBRIETH J |
|||||
|
12/2/1996 |
|
Historical |
$45,000 |
KNIGHT RYN ANNETTA |
LANGAN MATTHEW D & SHELLY J |
|||||
|
8/25/1994 |
|
Historical |
$0 |
KNIGHT LYLE DENE & RYN ANNETTA |
KNIGHT RYN ANNETTA |
|||||
| Last Mailed Notice of Value (N.O.V.) Information/History | ||||||||
|---|---|---|---|---|---|---|---|---|
| Year | Date | Market Value | Taxable Market Value | Gross Assessed | Exemption | Net Assessed | ||
|
2026 |
02/06/2026 |
105,500 |
105,500 |
11,605 |
0 |
11,605 |
||
|
2025 |
01/31/2025 |
104,000 |
102,375 |
11,261 |
0 |
11,261 |
||
|
2023 |
01/23/2023 |
130,000 |
130,000 |
14,300 |
0 |
14,300 |
||
|
2022 |
02/22/2022 |
80,500 |
67,803 |
7,458 |
0 |
7,458 |
||
|
2021 |
02/24/2021 |
70,000 |
64,575 |
7,103 |
0 |
7,103 |
||
| Property Building Permit History | |||||||||||
|---|---|---|---|---|---|---|---|---|---|---|---|
| Issued | Permit # | Provided by | Bldg # | Description | Est Construction Cost | Status | |||||
| No Building Permit records returned. | |||||||||||
| Click button on building number to access detailed information: | ||||||
|---|---|---|---|---|---|---|
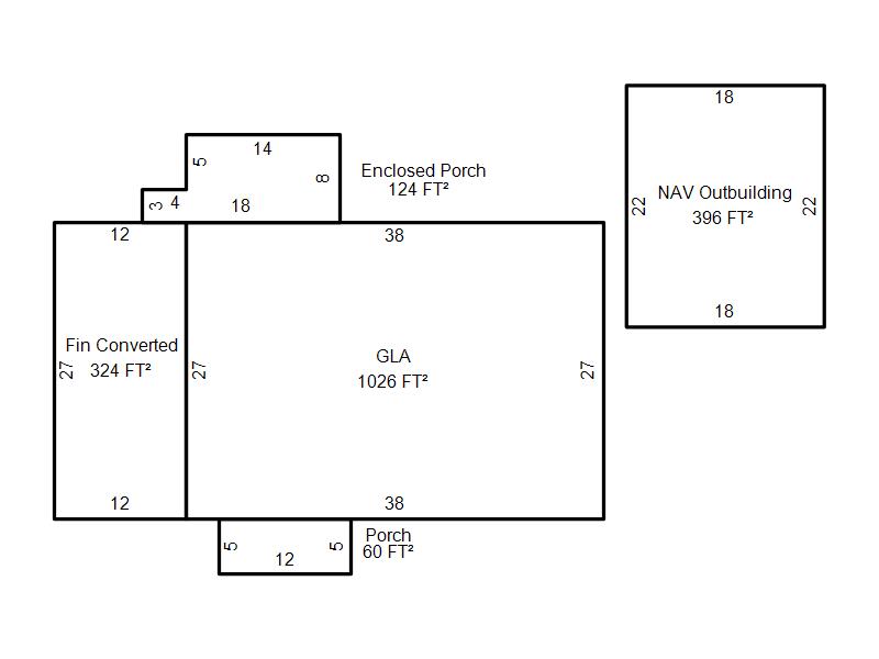
| Bldg # | Vacant/Improved Land | Bldg Description | Year Built | SqFt | # Stories | |
|
1 |
Improved |
Ranch 1 Story |
1959 |
1,026 |
1 Stories |
|