|
|
|
| Larry Stein Oklahoma County Assessor (405) 713-1200 - Public Access System |
|
|
|
|
|
|
| Real Property Display - Screen Produced 4/13/2026 5:52:24 AM | ||||
|---|---|---|---|---|
| Account: R153461065 | Type: Residential | Location: |
3013 SE 21ST ST |
|
| Building Name/Occupant: |
|
DEL CITY |
||
| Owner Name 1: | POAGE NANCY L ETAL |
Parcel PIN#: |
1428-15-346-1065 |
|
| Owner Name 2: | FORMAN JAMES E | 1/4 section #: |
1428 |
|
| Owner Name 3: | Parent Acct: |
|
||
| Billing Address: | 3013 SE 21ST ST | Tax District: |
|
|
| City, State, Zip | DEL CITY, OK 73115 | School System: |
Mid-Del #52 |
|
|
Country: (If noted) |
Land Size: |
0.1928 Acres |
||
|
Land Value: 23,100 |
|
|||
|
Sect 7-T11N-R2W Qtr NW |
EPPERLY HEIGHTS 13TH
Block
001
Lot
007
|
|||
| Full Legal Description: EPPERLY HEIGHTS 13TH 001 007 |
| Photo & Sketch (if available) | Comp Sales (ordered by relevancy) |
|
||||||||||||||||||
|
||||||||||||||||||||
| Value History (*The County Treasurer 405-713-1300 posts & collects actual tax amounts. Contact information HERE) | |||||||||||||
|---|---|---|---|---|---|---|---|---|---|---|---|---|---|
| Year | Market Value | Taxable Mkt Value | Gross Assessed | Exemption | Net Assessed | Millage | Est. Tax | Tax Savings | |||||
|
2026 |
104,000 |
30,468 |
3,351 |
2,000 |
1,351 |
114.72 |
$155 |
$1,157 |
|||||
|
2025 |
99,500 |
30,468 |
3,351 |
2,000 |
1,351 |
114.72 |
$155 |
$1,101 |
|||||
|
2024 |
91,000 |
30,468 |
3,351 |
2,000 |
1,351 |
117.21 |
$158 |
$1,015 |
|||||
|
2023 |
80,000 |
30,468 |
3,351 |
2,000 |
1,351 |
112.46 |
$152 |
$838 |
|||||
|
2022 |
73,500 |
30,468 |
3,350 |
2,000 |
1,350 |
110.76 |
$150 |
$746 |
|||||
| Property Account Status/Adjustments/Exemptions | ||
|---|---|---|
| Account # | Exemption Description | Amount |
|
R153461065 |
Freeze Senior Valuation |
0 |
|
R153461065 |
Homestead |
1,000 |
|
R153461065 |
Senior Additional Homestead |
1,000 |
|
R153461065 |
3% Cap Homestead |
0 |
| Property Deed Transaction History (Recorded in the County Clerk's Office) | |||||||
|---|---|---|---|---|---|---|---|
| Date | Type | Book | Page | Price | Grantor | Grantee | |
|
1/13/2021 |
|
Hmstd Off & |
$0 |
POAGE NANCY LOUISE ETAL |
POAGE NANCY L ETAL |
||
|
2/6/2020 |
|
Hmstd Off & |
$0 |
FORMAN MARITA I CO TRS |
AKHTER MARITA JEAN ETAL |
||
|
6/7/2012 |
|
Deeds |
$0 |
FORMAN MARITA I |
FORMAN MARITA I CO TRS |
||
|
1/17/1997 |
|
Historical |
$0 |
FORMAN WILLIAM E & MARITA I |
FORMAN MARITA I |
||
|
11/11/1911 |
|
Historical |
$0 |
|
FORMAN WILLIAM E & MARITA I |
||
| Last Mailed Notice of Value (N.O.V.) Information/History | ||||||||
|---|---|---|---|---|---|---|---|---|
| Year | Date | Market Value | Taxable Market Value | Gross Assessed | Exemption | Net Assessed | ||
|
2026 |
02/06/2026 |
104,000 |
30,468 |
3,351 |
2,000 |
1,351 |
||
|
2025 |
01/31/2025 |
99,500 |
30,468 |
3,351 |
2,000 |
1,351 |
||
|
2024 |
01/22/2024 |
91,000 |
30,468 |
3,351 |
2,000 |
1,351 |
||
|
2023 |
01/23/2023 |
80,000 |
30,468 |
3,351 |
2,000 |
1,351 |
||
|
2022 |
02/22/2022 |
73,500 |
31,060 |
3,415 |
0 |
3,415 |
||
| Property Building Permit History | |||||||||||
|---|---|---|---|---|---|---|---|---|---|---|---|
| Issued | Permit # | Provided by | Bldg # | Description | Est Construction Cost | Status | |||||
| No Building Permit records returned. | |||||||||||
| Click button on building number to access detailed information: | ||||||
|---|---|---|---|---|---|---|
| Bldg # | Vacant/Improved Land | Bldg Description | Year Built | SqFt | # Stories | |
|
1 |
Improved |
Ranch 1 Story |
1953 |
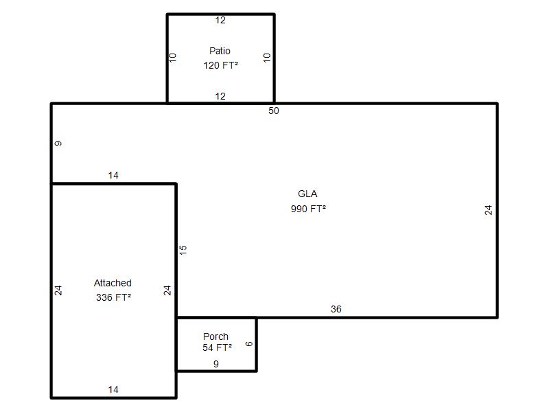
990 |
1 Stories |
|