|
|
|
| Larry Stein Oklahoma County Assessor (405) 713-1200 - Public Access System |
|
|
|
|
|
|
| Real Property Display - Screen Produced 4/13/2026 5:52:24 AM | ||||
|---|---|---|---|---|
| Account: R153461135 | Type: Residential | Location: |
3024 SE 21ST ST |
|
| Building Name/Occupant: |
|
DEL CITY |
||
| Owner Name 1: | GOOLSBY JANE D |
Parcel PIN#: |
1428-15-346-1135 |
|
| Owner Name 2: | GOOLSBY TODD | 1/4 section #: |
1428 |
|
| Owner Name 3: | HOLT SHELLIE JAYNE | Parent Acct: |
|
|
| Billing Address: | 3024 SE 21ST ST | Tax District: |
|
|
| City, State, Zip | DEL CITY, OK 73115 | School System: |
Mid-Del #52 |
|
|
Country: (If noted) |
Land Size: |
0.1928 Acres |
||
|
Land Value: 23,100 |
|
|||
|
Sect 7-T11N-R2W Qtr NW |
EPPERLY HEIGHTS 13TH
Block
002
Lot
004
|
|||
| Full Legal Description: EPPERLY HEIGHTS 13TH 002 004 |
| Photo & Sketch (if available) | Comp Sales (ordered by relevancy) |
|
||||||||||||||||||
|
||||||||||||||||||||
| Value History (*The County Treasurer 405-713-1300 posts & collects actual tax amounts. Contact information HERE) | |||||||||||||
|---|---|---|---|---|---|---|---|---|---|---|---|---|---|
| Year | Market Value | Taxable Mkt Value | Gross Assessed | Exemption | Net Assessed | Millage | Est. Tax | Tax Savings | |||||
|
2026 |
114,500 |
43,506 |
4,785 |
1,000 |
3,785 |
114.72 |
$434 |
$1,011 |
|||||
|
2025 |
111,500 |
43,506 |
4,785 |
1,000 |
3,785 |
114.72 |
$434 |
$973 |
|||||
|
2024 |
105,500 |
43,506 |
4,785 |
1,000 |
3,785 |
117.21 |
$444 |
$917 |
|||||
|
2023 |
93,500 |
43,506 |
4,785 |
1,000 |
3,785 |
112.46 |
$426 |
$731 |
|||||
|
2022 |
86,000 |
43,506 |
4,785 |
1,000 |
3,785 |
110.76 |
$419 |
$628 |
|||||
| Property Account Status/Adjustments/Exemptions | ||
|---|---|---|
| Account # | Exemption Description | Amount |
|
R153461135 |
Freeze Senior Valuation |
0 |
|
R153461135 |
3% Cap Homestead |
0 |
|
R153461135 |
Homestead |
1,000 |
| Property Deed Transaction History (Recorded in the County Clerk's Office) | |||||||
|---|---|---|---|---|---|---|---|
| Date | Type | Book | Page | Price | Grantor | Grantee | |
|
9/24/2010 |
|
Deeds |
$0 |
GOOLSBY JANE D |
GOOLSBY JANE D |
||
|
7/1/1980 |
|
Historical |
$0 |
|
GOOLSBY JANE D |
||
| Last Mailed Notice of Value (N.O.V.) Information/History | ||||||||
|---|---|---|---|---|---|---|---|---|
| Year | Date | Market Value | Taxable Market Value | Gross Assessed | Exemption | Net Assessed | ||
|
2026 |
02/06/2026 |
114,500 |
43,506 |
4,785 |
1,000 |
3,785 |
||
|
2025 |
01/31/2025 |
111,500 |
43,506 |
4,785 |
1,000 |
3,785 |
||
|
2024 |
01/22/2024 |
105,500 |
43,506 |
4,785 |
1,000 |
3,785 |
||
|
2023 |
01/23/2023 |
93,500 |
43,506 |
4,785 |
1,000 |
3,785 |
||
|
2022 |
02/22/2022 |
86,000 |
43,506 |
4,785 |
1,000 |
3,785 |
||
| Property Building Permit History | |||||||||||
|---|---|---|---|---|---|---|---|---|---|---|---|
| Issued | Permit # | Provided by | Bldg # | Description | Est Construction Cost | Status | |||||
| No Building Permit records returned. | |||||||||||
| Click button on building number to access detailed information: | ||||||
|---|---|---|---|---|---|---|
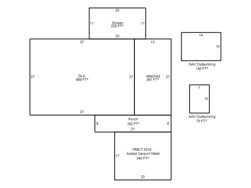
| Bldg # | Vacant/Improved Land | Bldg Description | Year Built | SqFt | # Stories | |
|
1 |
Improved |
Ranch 1 Story |
1959 |
999 |
1 Stories |
|