|
|
|
| Larry Stein Oklahoma County Assessor (405) 713-1200 - Public Access System |
|
|
|
|
|
|
| Real Property Display - Screen Produced 4/13/2026 5:52:24 AM | ||||
|---|---|---|---|---|
| Account: R153461195 | Type: Residential | Location: |
2200 S BRYANT AVE |
|
| Building Name/Occupant: |
|
DEL CITY |
||
| Owner Name 1: | SHORT TIMOTHY |
Parcel PIN#: |
1428-15-346-1195 |
|
| Owner Name 2: | SHORT ADAM | 1/4 section #: |
1428 |
|
| Owner Name 3: | Parent Acct: |
|
||
| Billing Address: | 6102 NW ELM AVE | Tax District: |
|
|
| City, State, Zip | LAWTON , OK 73505 | School System: |
Mid-Del #52 |
|
|
Country: (If noted) |
Land Size: |
0.2123 Acres |
||
|
Land Value: 25,427 |
|
|||
|
Sect 7-T11N-R2W Qtr NW |
EPPERLY HEIGHTS 13TH
Block
002
Lot
010
|
|||
| Full Legal Description: EPPERLY HEIGHTS 13TH 002 010 |
| Photo & Sketch (if available) | Comp Sales (ordered by relevancy) |
|
||||||||||||||||||
|
||||||||||||||||||||
| Value History (*The County Treasurer 405-713-1300 posts & collects actual tax amounts. Contact information HERE) | |||||||||||||
|---|---|---|---|---|---|---|---|---|---|---|---|---|---|
| Year | Market Value | Taxable Mkt Value | Gross Assessed | Exemption | Net Assessed | Millage | Est. Tax | Tax Savings | |||||
|
2026 |
136,000 |
83,927 |
9,231 |
0 |
9,231 |
114.72 |
$1,059 |
$657 |
|||||
|
2025 |
130,500 |
79,931 |
8,791 |
0 |
8,791 |
114.72 |
$1,009 |
$638 |
|||||
|
2024 |
123,000 |
76,125 |
8,373 |
0 |
8,373 |
117.21 |
$981 |
$604 |
|||||
|
2023 |
111,000 |
72,500 |
7,975 |
2,000 |
5,975 |
112.46 |
$672 |
$701 |
|||||
|
2022 |
101,000 |
72,500 |
7,975 |
2,000 |
5,975 |
110.76 |
$662 |
$569 |
|||||
| Property Account Status/Adjustments/Exemptions | ||
|---|---|---|
| Account # | Exemption Description | Amount |
|
R153461195 |
5% Capped Account |
0 |
| Property Deed Transaction History (Recorded in the County Clerk's Office) | |||||||
|---|---|---|---|---|---|---|---|
| Date | Type | Book | Page | Price | Grantor | Grantee | |
|
2/2/2023 |
|
Hmstd Off & |
$0 |
SHORT TIMOTHY |
SHORT TIMOTHY |
||
|
1/20/2023 |
|
Hmstd Off & |
$0 |
SHORT RAYMOND L |
SHORT TIMOTHY |
||
|
2/9/2022 |
|
Deeds |
$0 |
SHORT RAYMOND L & JENNIE E |
SHORT RAYMOND L |
||
|
3/1/1977 |
|
Historical |
$0 |
|
SHORT RAYMOND L & JENNIE E |
||
| Last Mailed Notice of Value (N.O.V.) Information/History | ||||||||
|---|---|---|---|---|---|---|---|---|
| Year | Date | Market Value | Taxable Market Value | Gross Assessed | Exemption | Net Assessed | ||
|
2026 |
02/06/2026 |
136,000 |
83,927 |
9,231 |
0 |
9,231 |
||
|
2025 |
01/31/2025 |
130,500 |
79,931 |
8,791 |
0 |
8,791 |
||
|
2024 |
01/22/2024 |
123,000 |
76,125 |
8,373 |
0 |
8,373 |
||
|
2023 |
01/23/2023 |
111,000 |
72,500 |
7,975 |
2,000 |
5,975 |
||
|
2023 |
03/02/2023 |
111,000 |
72,500 |
7,975 |
2,000 |
5,975 |
||
| Property Building Permit History | |||||||||||
|---|---|---|---|---|---|---|---|---|---|---|---|
| Issued | Permit # | Provided by | Bldg # | Description | Est Construction Cost | Status | |||||
| No Building Permit records returned. | |||||||||||
| Click button on building number to access detailed information: | ||||||
|---|---|---|---|---|---|---|
| Bldg # | Vacant/Improved Land | Bldg Description | Year Built | SqFt | # Stories | |
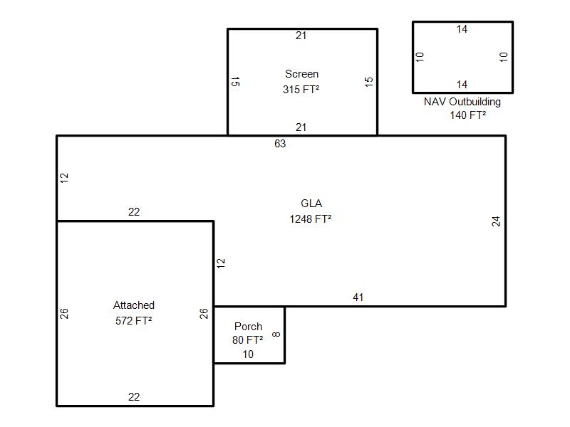
|
1 |
Improved |
Ranch 1 Story |
1961 |
1,248 |
1 Stories |
|