|
|
|
| Larry Stein Oklahoma County Assessor (405) 713-1200 - Public Access System |
|
|
|
|
|
|
| Real Property Display - Screen Produced 4/2/2026 10:24:22 AM | ||||
|---|---|---|---|---|
| Account: R134855855 | Type: Residential | Location: |
12421 N BRYANT AVE |
|
| Building Name/Occupant: |
|
OKLAHOMA CITY |
||
| Owner Name 1: | MEYER GRACE M |
Parcel PIN#: |
3650-13-485-5855 |
|
| Owner Name 2: | 1/4 section #: |
3650 |
||
| Owner Name 3: | Parent Acct: |
|
||
| Billing Address: | 12421 N BRYANT AVE | Tax District: |
|
|
| City, State, Zip | EDMOND, OK 73013-7502 | School System: |
Oklahoma City #89 |
|
|
Country: (If noted) |
UNITED STATES |
Land Size: |
1.0000 Acres |
|
|
Land Value: 78,547 |
|
|||
|
Sect 13-T13N-R3W Qtr SE |
UNPLTD PT SEC 13 13N 3W
Block
000
Lot
000
|
|||
| Full Legal Description: UNPLTD PT SE4 SEC 13 13N 3W BEG 545FT S NE/C SE4 SE4 TH W294.32FT S148FT E294.32FT N148FT TO BEG |
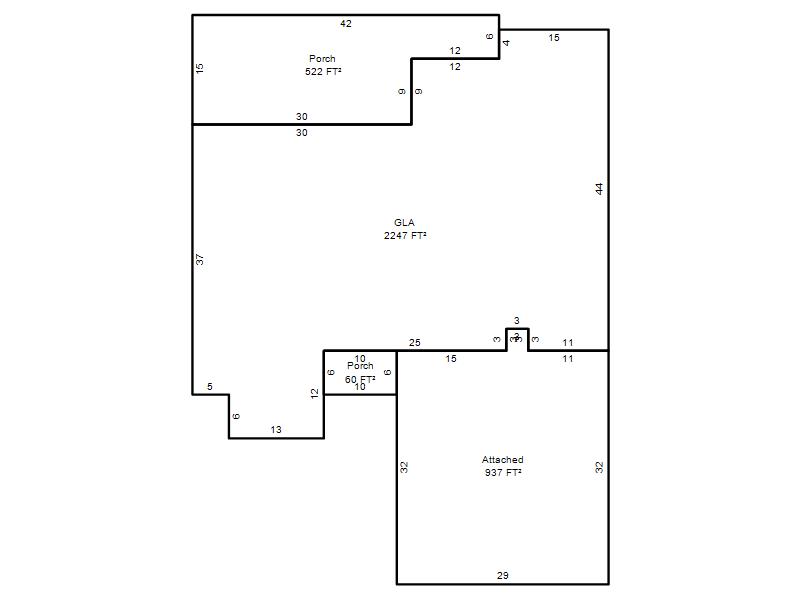
| Photo & Sketch (if available) | Comp Sales (ordered by relevancy) |
|
||||||||||||||||||
|
||||||||||||||||||||
| Value History (*The County Treasurer 405-713-1300 posts & collects actual tax amounts. Contact information HERE) | |||||||||||||
|---|---|---|---|---|---|---|---|---|---|---|---|---|---|
| Year | Market Value | Taxable Mkt Value | Gross Assessed | Exemption | Net Assessed | Millage | Est. Tax | Tax Savings | |||||
|
2026 |
744,000 |
535,621 |
58,918 |
1,000 |
57,918 |
122.90 |
$7,118 |
$2,940 |
|||||
|
2025 |
742,521 |
520,021 |
57,202 |
1,000 |
56,202 |
122.90 |
$6,907 |
$3,131 |
|||||
|
2024 |
583,500 |
504,875 |
55,535 |
1,000 |
54,535 |
123.89 |
$6,756 |
$1,195 |
|||||
|
2023 |
564,500 |
490,170 |
53,918 |
1,000 |
52,918 |
122.82 |
$6,499 |
$1,127 |
|||||
|
2022 |
439,000 |
439,000 |
48,290 |
1,000 |
47,290 |
117.63 |
$5,563 |
$118 |
|||||
| Property Account Status/Adjustments/Exemptions | ||
|---|---|---|
| Account # | Exemption Description | Amount |
|
R134855855 |
Homestead |
1,000 |
|
R134855855 |
3% Cap Homestead |
0 |
| Property Deed Transaction History (Recorded in the County Clerk's Office) | |||||||
|---|---|---|---|---|---|---|---|
| Date | Type | Book | Page | Price | Grantor | Grantee | |
|
7/12/2024 |
|
Deeds |
$0 |
MEYER GRACE M |
WOLF JESSICA N |
||
|
5/30/2024 |
|
Deeds |
$0 |
MEYER DOUG R |
MEYER GRACE M |
||
|
7/12/2018 |
|
Deeds |
$50,000 |
WATTS ROBERT L & JANICE M |
MEYER DOUG R & GRACE M |
||
|
11/29/2010 |
|
Deeds |
$0 |
WATTS ROBERT L & JANICE M |
WATTS ROBERT L & JANICE M |
||
|
10/1/1978 |
|
Historical |
$0 |
|
WATTS ROBERT L & JANICE M |
||
| Last Mailed Notice of Value (N.O.V.) Information/History | ||||||||
|---|---|---|---|---|---|---|---|---|
| Year | Date | Market Value | Taxable Market Value | Gross Assessed | Exemption | Net Assessed | ||
|
2026 |
02/23/2026 |
744,000 |
535,621 |
58,918 |
1,000 |
57,918 |
||
|
2025 |
02/14/2025 |
779,500 |
520,021 |
57,202 |
1,000 |
56,202 |
||
|
2024 |
02/13/2024 |
583,500 |
504,875 |
55,535 |
1,000 |
54,535 |
||
|
2023 |
03/02/2023 |
564,500 |
490,170 |
53,918 |
1,000 |
52,918 |
||
|
2022 |
03/15/2022 |
488,500 |
480,574 |
52,862 |
1,000 |
51,862 |
||
| Property Building Permit History | ||||||
|---|---|---|---|---|---|---|
| Issued | Permit # | Provided by | Bldg # | Description | Est Construction Cost | Status |
|
3/14/2022 |
POOL-2022-00062 |
|
1 |
Swimming Pool |
|
Inactive |
|
1/14/2021 |
BLDD-2020-08188 |
|
1 |
Demolish |
|
Inactive |
|
12/17/2020 |
BLDR-2020-08311 |
|
1 |
Main Dwellin |
217,000 |
Inactive |
| Click button on building number to access detailed information: | ||||||
|---|---|---|---|---|---|---|
| Bldg # | Vacant/Improved Land | Bldg Description | Year Built | SqFt | # Stories | |
|
1 |
Improved |
Ranch 1 Story |
2021 |
2,247 |
1 Stories |
|