|
|
|
| Larry Stein Oklahoma County Assessor (405) 713-1200 - Public Access System |
|
|
|
|
|
|
| Real Property Display - Screen Produced 4/1/2026 3:41:50 AM | ||||
|---|---|---|---|---|
| Account: R120141650 | Type: Residential | Location: |
2417 SHADY TREE LN |
|
| Building Name/Occupant: |
|
OKLAHOMA CITY |
||
| Owner Name 1: | HEWES JONATHAN & KATHY L TRS |
Parcel PIN#: |
3652-12-014-1650 |
|
| Owner Name 2: | HEWES REV TRUST | 1/4 section #: |
3652 |
|
| Owner Name 3: | Parent Acct: |
|
||
| Billing Address: | 2417 SHADY TREE LN | Tax District: |
|
|
| City, State, Zip | EDMOND , OK 73013 | School System: |
Edmond #12 |
|
|
Country: (If noted) |
Land Size: |
0.1768 Acres |
||
|
Land Value: 35,035 |
|
|||
|
Sect 13-T13N-R3W Qtr NW |
NORTHWOOD ADDN IV
Block
017
Lot
018
|
|||
| Full Legal Description: NORTHWOOD ADDN IV 017 018 |
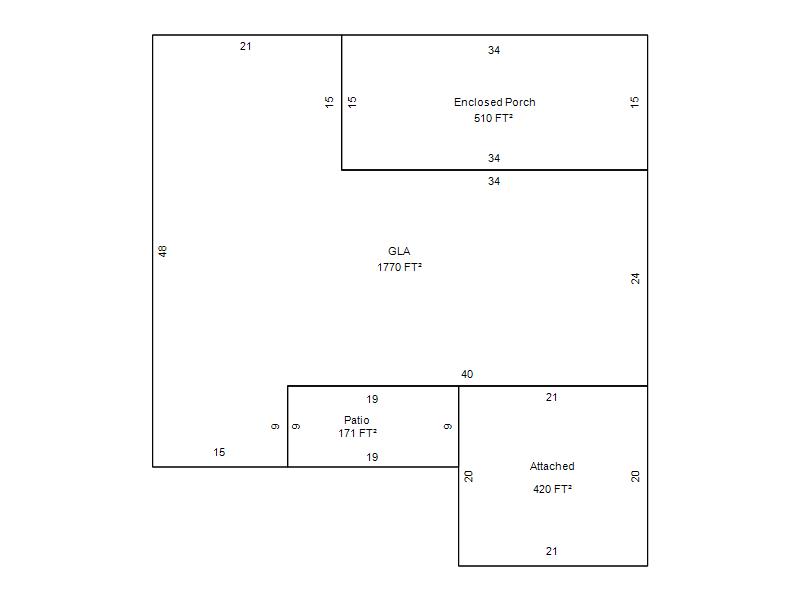
| Photo & Sketch (if available) | Comp Sales (ordered by relevancy) |
|
||||||||||||||||||
|
||||||||||||||||||||
| Value History (*The County Treasurer 405-713-1300 posts & collects actual tax amounts. Contact information HERE) | |||||||||||||
|---|---|---|---|---|---|---|---|---|---|---|---|---|---|
| Year | Market Value | Taxable Mkt Value | Gross Assessed | Exemption | Net Assessed | Millage | Est. Tax | Tax Savings | |||||
|
2026 |
249,500 |
198,210 |
21,803 |
1,000 |
20,803 |
120.32 |
$2,503 |
$799 |
|||||
|
2025 |
243,500 |
192,437 |
21,167 |
1,000 |
20,167 |
120.32 |
$2,427 |
$796 |
|||||
|
2024 |
236,500 |
186,833 |
20,551 |
1,000 |
19,551 |
119.96 |
$2,345 |
$775 |
|||||
|
2023 |
227,000 |
181,392 |
19,952 |
1,000 |
18,952 |
119.02 |
$2,256 |
$716 |
|||||
|
2022 |
206,500 |
176,109 |
19,371 |
1,000 |
18,371 |
120.10 |
$2,206 |
$522 |
|||||
| Property Account Status/Adjustments/Exemptions | ||
|---|---|---|
| Account # | Exemption Description | Amount |
|
R120141650 |
3% Cap Homestead |
0 |
|
R120141650 |
Homestead |
1,000 |
| Property Deed Transaction History (Recorded in the County Clerk's Office) | |||||||
|---|---|---|---|---|---|---|---|
| Date | Type | Book | Page | Price | Grantor | Grantee | |
|
7/30/2019 |
|
Deeds |
$0 |
HEWES JONATHAN D & KATHY L |
HEWES JONATHAN & KATHY L TRS |
||
|
3/31/1987 |
|
Historical |
$0 |
HEWES JONATHAN D |
HEWES JONATHAN D & KATHY L |
||
|
4/1/1985 |
|
Historical |
$78,500 |
|
HEWES JONATHAN D |
||
| Last Mailed Notice of Value (N.O.V.) Information/History | ||||||||
|---|---|---|---|---|---|---|---|---|
| Year | Date | Market Value | Taxable Market Value | Gross Assessed | Exemption | Net Assessed | ||
|
2026 |
02/23/2026 |
249,500 |
198,210 |
21,803 |
1,000 |
20,803 |
||
|
2025 |
02/14/2025 |
243,500 |
192,437 |
21,167 |
1,000 |
20,167 |
||
|
2024 |
02/13/2024 |
236,500 |
186,833 |
20,551 |
1,000 |
19,551 |
||
|
2023 |
02/14/2023 |
227,000 |
181,392 |
19,952 |
1,000 |
18,952 |
||
|
2022 |
03/15/2022 |
206,500 |
176,109 |
19,371 |
1,000 |
18,371 |
||
| Property Building Permit History | ||||||
|---|---|---|---|---|---|---|
| Issued | Permit # | Provided by | Bldg # | Description | Est Construction Cost | Status |
|
12/8/1992 |
10206178 |
OKLAHOMA CITY |
1 |
Add On |
15,555 |
Inactive |
| Click button on building number to access detailed information: | ||||||
|---|---|---|---|---|---|---|
| Bldg # | Vacant/Improved Land | Bldg Description | Year Built | SqFt | # Stories | |
|
1 |
Improved |
Ranch 1 Story |
1982 |
1,770 |
1 Stories |
|