|
|
|
| Larry Stein Oklahoma County Assessor (405) 713-1200 - Public Access System |
|
|
|
|
|
|
| Real Property Display - Screen Produced 4/1/2026 9:26:15 PM | ||||
|---|---|---|---|---|
| Account: R122831020 | Type: Residential | Location: |
1625 GREY FOX RUN |
|
| Building Name/Occupant: |
|
OKLAHOMA CITY |
||
| Owner Name 1: | PORTER HUNTER L |
Parcel PIN#: |
3653-12-283-1020 |
|
| Owner Name 2: | 1/4 section #: |
3653 |
||
| Owner Name 3: | Parent Acct: |
|
||
| Billing Address: | 1625 GREY FOX RUN | Tax District: |
|
|
| City, State, Zip | OKLAHOMA CITY, OK 73131-1219 | School System: |
Edmond #12 |
|
|
Country: (If noted) |
Land Size: |
0.1488 Acres |
||
|
Land Value: 37,260 |
|
|||
|
Sect 14-T13N-R3W Qtr NE |
FOX CREEK
Block
001
Lot
000
|
|||
| Full Legal Description: FOX CREEK 001 000 E27FT LOT 3 & W27FT LOT 4 |
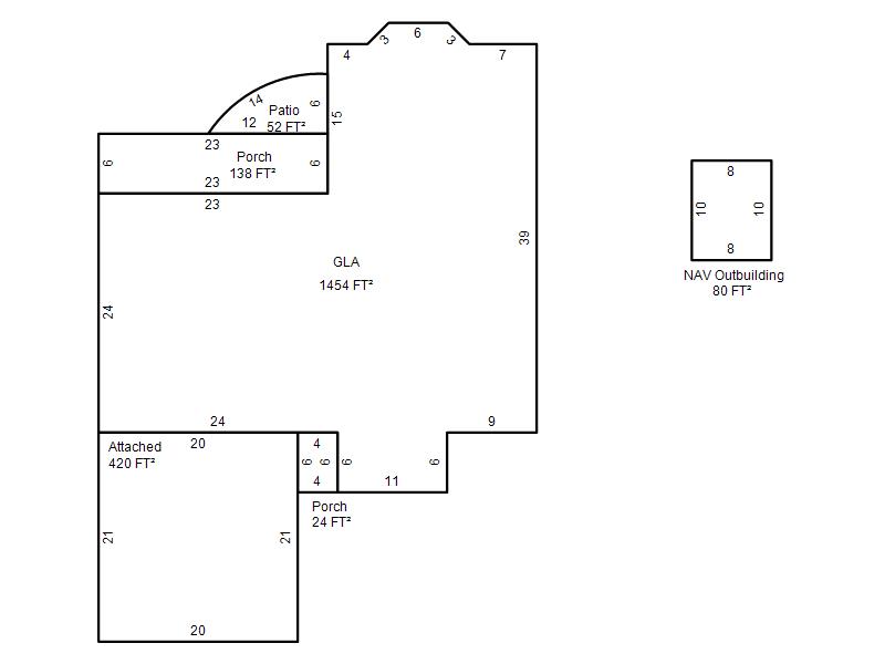
| Photo & Sketch (if available) | Comp Sales (ordered by relevancy) |
|
||||||||||||||||||
|
||||||||||||||||||||
| Value History (*The County Treasurer 405-713-1300 posts & collects actual tax amounts. Contact information HERE) | |||||||||||||
|---|---|---|---|---|---|---|---|---|---|---|---|---|---|
| Year | Market Value | Taxable Mkt Value | Gross Assessed | Exemption | Net Assessed | Millage | Est. Tax | Tax Savings | |||||
|
2026 |
232,500 |
209,723 |
23,069 |
0 |
23,069 |
120.32 |
$2,776 |
$301 |
|||||
|
2025 |
229,000 |
199,737 |
21,970 |
0 |
21,970 |
120.32 |
$2,644 |
$387 |
|||||
|
2024 |
228,000 |
190,226 |
20,924 |
0 |
20,924 |
119.96 |
$2,510 |
$498 |
|||||
|
2023 |
222,000 |
181,168 |
19,927 |
0 |
19,927 |
119.02 |
$2,372 |
$535 |
|||||
|
2022 |
189,500 |
172,541 |
18,978 |
0 |
18,978 |
120.10 |
$2,279 |
$224 |
|||||
| Property Account Status/Adjustments/Exemptions | ||
|---|---|---|
| Account # | Exemption Description | Amount |
|
R122831020 |
5% Capped Account |
0 |
| Property Deed Transaction History (Recorded in the County Clerk's Office) | ||||||||||
|---|---|---|---|---|---|---|---|---|---|---|
| Date | Type | Book | Page | Price | Grantor | Grantee | ||||
|
10/27/2016 |
|
Deeds |
$149,000 |
SHORES SHERI MICHELLE |
PORTER HUNTER L |
|||||
|
6/22/2016 |
|
Deeds |
$0 |
SHORES SHERI M & DAVID |
SHORES SHERI MICHELLE |
|||||
|
2/19/2003 |
|
Deeds |
$0 |
STARK SHERI M |
SHORES SHERI M & DAVID |
|||||
|
7/28/2002 |
|
Hmstd Off & |
$0 |
HUDDLESTON RICHARD & SHERI M |
STARK SHERI M |
|||||
|
3/21/1994 |
|
Historical |
$79,000 |
ARCADIA PROPERTIES INC |
HUDDLESTON RICHARD & SHERI M |
|||||
| Last Mailed Notice of Value (N.O.V.) Information/History | ||||||||
|---|---|---|---|---|---|---|---|---|
| Year | Date | Market Value | Taxable Market Value | Gross Assessed | Exemption | Net Assessed | ||
|
2026 |
02/23/2026 |
232,500 |
209,723 |
23,069 |
0 |
23,069 |
||
|
2025 |
02/14/2025 |
229,000 |
199,737 |
21,970 |
0 |
21,970 |
||
|
2024 |
02/13/2024 |
228,000 |
190,226 |
20,924 |
0 |
20,924 |
||
|
2023 |
02/14/2023 |
222,000 |
181,168 |
19,927 |
0 |
19,927 |
||
|
2022 |
03/15/2022 |
189,500 |
172,541 |
18,978 |
0 |
18,978 |
||
| Property Building Permit History | ||||||
|---|---|---|---|---|---|---|
| Issued | Permit # | Provided by | Bldg # | Description | Est Construction Cost | Status |
|
9/23/1993 |
10209095 |
OKLAHOMA CITY |
1 |
Main Dwellin |
80,000 |
Inactive |
|
8/3/1993 |
10209094 |
OKLAHOMA CITY |
1 |
Main Dwellin |
80,000 |
Inactive |
| Click button on building number to access detailed information: | ||||||
|---|---|---|---|---|---|---|
| Bldg # | Vacant/Improved Land | Bldg Description | Year Built | SqFt | # Stories | |
|
1 |
Improved |
Ranch 1 Story |
1994 |
1,454 |
1 Stories |
|